Amsterdamsestraatweg 48, Halfweg
VerkochtBeschrijving
Aan een ventweg, op het rustige gedeelte van de Amsterdamsestraatweg staat dit verrassend ruime en sfeervolle 2-onder 1 kap gezinshuis met zonnige tuin, oprit en vrijstaande stenen garage. De woning is met behoud van originele details stijlvol gemoderniseerd en is zo te betrekken. Binnen vind je een ruime woonkamer, een moderne keuken en drie royale slaapkamers verdeeld over de eerste en tweede verdieping. De 1e verdieping biedt daarnaast een grote waskamer, een moderne badkamer en een praktische walk-in closet die vanuit beide slaapkamers te bereiken is. Aan de voorzijde van de woning vind je een voortuin, een oprit met de mogelijkheid voor het plaatsen van 2 auto’s en een zijpoort naar de zonnige en fraai aangelegde achtertuin met een vrijstaande stenen garage, een houten schuur en een gezellige veranda waar je heerlijk kunt loungen. De achtertuin is extra breed en door de gunstige ligging geniet je hier de hele dag van de zon. Wat het wonen hier extra prettig maakt, is de ligging. Op nog geen vijf minuten fietsen van station Halfweg–Zwanenburg en met een busverbinding die praktisch voor de deur stopt. Ideaal voor wie graag snel in Haarlem of Amsterdam is. Ook winkels, scholen en sportvoorzieningen liggen op korte afstand, waardoor dit huis een fijne plek vormt voor een gezin dat centraal wil wonen.
Indeling
Parterre: entree, hal met alarminstallatie, trapkast en modern zwevend toilet voorzien van fontein, ruime, lichte woonkamer met zijcorner voorzien van sier openhaard, parketvloer, erker, glas-in-lood bovenramen, en openslaande deuren naar tuin, moderne half open keuken met enig inbouwapparatuur w.o. 5-pits gasfornuis en deur naar de tuin, via hal trap naar….
1e Verdieping: overloop met sfeervol glas-in-loodraam en modern zwevend toilet, slaapkamer aan voorzijde met gezellige zitvensterbank, ornamenten plafond en toegang naar walk-in closet, slaapkamer aan achterzijde met openslaande deuren naar loggia, inbouwkast, toegang naar walk-in closet en toegang naar waskamer voorzien van wasmachine/droger aansluiting, moderne badkamer met ligbad, inloopdouche, wastafelmeubel en handdoekradiator, via overloop trap naar….
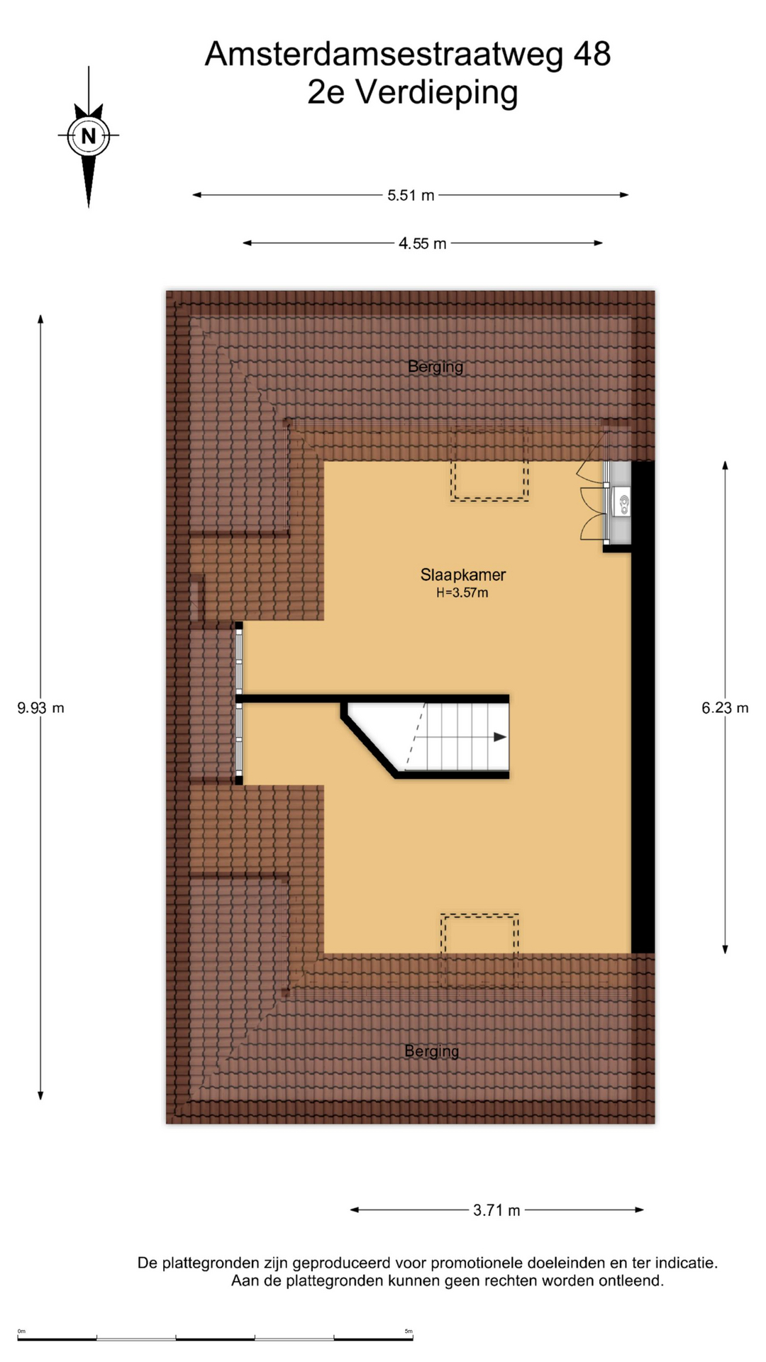
2e Verdieping: royale slaapkamer met dakkapel, 2 dakramen, kast met cv en verrassend veel bergruimte aanwezig.
Bijzonderheden:
* Woonoppervlakte ca. 135 m2, inhoud ca. 504 m3 en 242 m2 eigen grond
* Goed geïsoleerd, energielabel D
* Ruime oprit
* Vrijstaande stenen garage
* Zonnige tuin
* Vrij zicht aan voorzijde
* Voor indeling en maatvoering zie plattegronden
* Oplevering in overleg
Algemeen
- Plaats
- Halfweg
- Status
- Verkocht
- Buurt
- Halfweg
- Aantal kamers
- 5
- Aantal slaapkamers
- 3
- Aantal badkamers
- 1
- Woonoppervlakte
- 135 m2
- Perceel oppervlakte
- 242 m2
- Ligging
- In woonwijk
- Bouwjaar
- 1930
- Isolatie
- Dubbelglas
- Type verwarming
- CV ketel
- Onderhoud buiten
- Goed
- Onderhoud binnen
- Goed
- Voorzieningen
- alarminstallatie, TV kabel, Buitenzonwering, Dakraam
- Energieklasse
- D
- Soort dak
- Schilddak
- Parkeer faciliteiten
- Op eigen terrein
- Schuur/bergruimte
- 1
- Woning type
- Woonhuis


