Belgiëlaan 44, Haarlem
VerkochtBeschrijving
PUUR* wonen in dit lichte, ruime appartement van ca. 61 m2, gelegen op de eerste verdieping aan de Belgiëlaan 44 in Haarlem. Misschien is dit wel het appartement waar je naar zoekt! Je kunt hier namelijk rekenen op een ruime woonkamer, twee slaapkamers, twee balkons, waarvan één gelegen is op het zuiden.
Kortom, dit leuke appartement gelegen op een zeer centrale locatie, dichtbij het winkelcentrum en nabij uitvalswegen, kan misschien wel jouw nieuwe thuis worden!
Goed om te weten:
– Energielabel B;
– Vloeren, badkamer en keuken onlangs gerenoveerd
– Eigen berging op de begane grond;
– Uitvalswegen en OV naar Amsterdam en Schiphol in de directe nabijheid;
– Haarlem centrum op ca. 10 minuten fietsafstand;
– Winkelcentrum Schalkwijk bevindt zich op ca. 5 minuten fietsen.
– Servicekosten bedragen ca. € 220,79,- per maand, inclusief voorschot stookkosten;
– Niet bewoners clausule van toepassing
– Vrijstelling overdrachtsbelasting voor starters
– Overdracht kan snel
Indeling
Eerste verdieping:
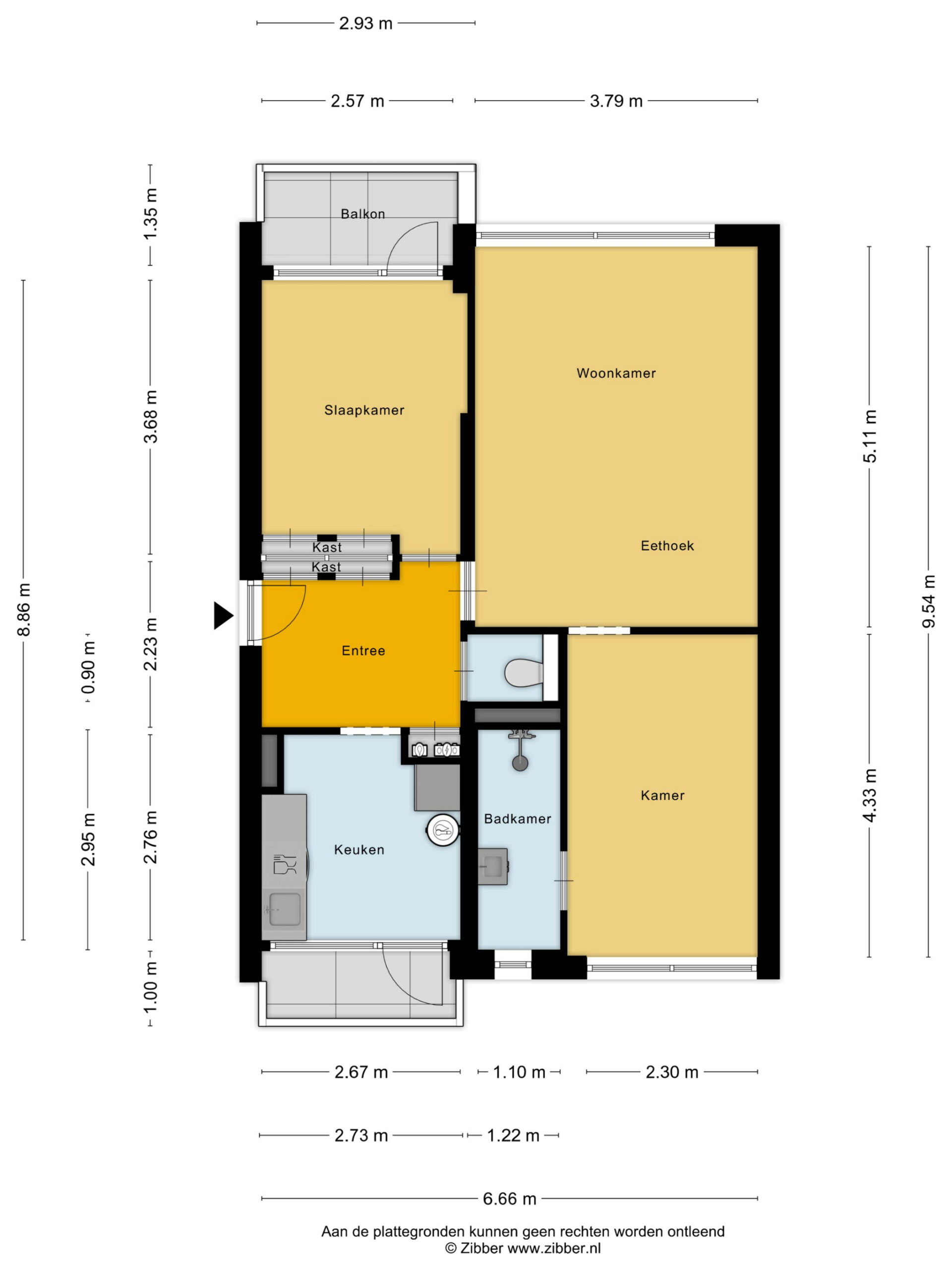
Je komt het appartement binnen in de hal waar zich het toilet, de meterkast en twee inbouwkasten bevinden. Vanuit de hal lopen we door naar de woonkamer.
De ruime woonkamer biedt de mogelijkheid om een gezellige zit- en eethoek te creëren. Daarnaast komt er veel natuurlijk licht binnen door de grote ramen aan beide zijden van het appartement. Dit zorgt voor een warme en uitnodigende sfeer.
De keuken inclusief inbouwvaatwasser is geplaatst in een wandopstelling en biedt voldoende werk- en opslagruimte. Tevens heb je hier toegang tot het balkon aan de voorzijde.
De twee slaapkamers zijn goed van formaat. Een van de kamers heeft zelfs toegang tot een zonnig balkon op het zuiden, perfect voor het nuttigen van een vroege ochtend koffie. De andere slaapkamer is voorzien van een handige inbouwkast.
De badkamer is voorzien van een douche, wasmachineaansluiting en een wastafelmeubel.
Externe berging op begane grond voor fietsen en dergelijke.
Locatie
Gelegen in Europawijk. Dichtbij voorzieningen zoals diverse scholen, sportclubs, supermarkten (Vomar, aan de overkant). Winkelcentrum Schalkwijk bevindt zich op loopafstand en het gezellige centrum van Haarlem met leuke bars, restaurants en musea bevindt zich op ongeveer 10 minuten fietsen. Tevens zijn de verbindingen naar Amsterdam en Schiphol goed: uitvalswegen dichtbij en goede verbindingen met het openbaar vervoer!
*ENGLISH BELOW*
PURE* living in this bright, spacious flat of approx. 61 m2, located on the first floor at Belgiëlaan 44 in Haarlem. This could be the flat you are looking for! It features a spacious living room, two bedrooms, and two balconies, one of which faces south.
In short, this lovely flat in a very central location, close to the shopping centre and major roads, could be your new home!
Good to know:
– Energy label B;
– Floors, bathroom and kitchen recently renovated
– Private storage room on the ground floor;
– Major roads and public transport to Amsterdam and Schiphol Airport in the immediate vicinity;
– Haarlem city centre approx. 10 minutes by bike;
– Schalkwijk shopping centre approx. 5 minutes by bike.
– Service charges approx. €220.79 per month, including advance heating costs;
– Non-resident clause applies
– Transfer tax exemption for first-time buyers
– Transfer can take place quickly
Layout
First floor:
You enter the apartment into the hall, where you will find the toilet, the meter cupboard and two built-in cupboards. From the hall, we walk through to the living room.
The spacious living room offers the possibility to create a cosy sitting and dining area. In addition, a lot of natural light enters through the large windows on both sides of the apartment. This creates a warm and inviting atmosphere.
The kitchen, including a built-in dishwasher, is located in a wall unit and offers ample work and storage space. It also provides access to the balcony at the front.
The two bedrooms are a good size. One of the rooms even has access to a sunny south-facing balcony, perfect for enjoying an early morning coffee. The other bedroom has a handy built-in wardrobe.
The bathroom has a shower, washing machine connection and a washbasin.
External storage room on the ground floor for bicycles and suchlike.
Location
Located in Europawijk. Close to amenities such as various schools, sports clubs and supermarkets (Vomar, across the street). Schalkwijk shopping centre is within walking distance and the lively centre of Haarlem with its bars, restaurants and museums is about a 10-minute bike ride away. There are also good connections to Amsterdam and Schiphol: major roads are nearby and there are good public transport links!
Algemeen
- Plaats
- Haarlem
- Status
- Verkocht
- Buurt
- Landenbuurt
- Aantal kamers
- 3
- Aantal slaapkamers
- 2
- Aantal badkamers
- 1
- Woonoppervlakte
- 61 m2
- Ligging
- Aan rustige weg, In woonwijk
- Bouwjaar
- 1961
- Type verwarming
- Blokverwarming
- Onderhoud buiten
- Goed
- Onderhoud binnen
- Goed
- Voorzieningen
- Natuurlijke ventilatie
- Energieklasse
- B
- Soort dak
- Plat dak
- Parkeer faciliteiten
- Openbaar parkeren
- Schuur/bergruimte
- 1
- Woning type
- Appartement


























