Bos en Lommerweg 335-1, Amsterdam
Onder bodPrijs: € 485.000,-
Beschrijving
PUUR* Makelaars!
Op een levendige locatie in Amsterdam-West bieden wij dit charmante, instapklare appartement aan van circa 75 m², gelegen op eeuwigdurend afgekochte erfpachtgrond en een terras op het zuiden! De woning beschikt over een lichte woonkamer, een moderne keuken van slechts 2 jaar oud, twee slaapkamers, twee badkamers én een balkon aan zowel de voor- als achterzijde. Hierdoor kun je de hele dag van de zon genieten. Dankzij de grote raampartijen valt er volop natuurlijk licht binnen, een heerlijke plek om thuis te komen!
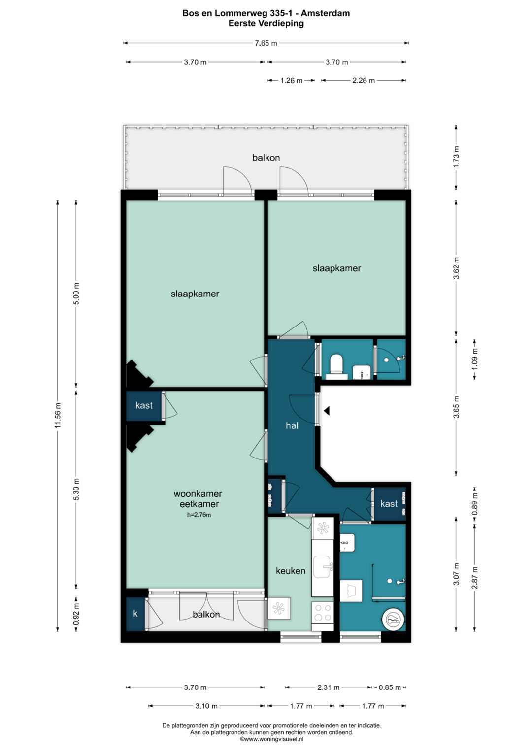
INDELING
Via de gezamenlijke entree bereik je het appartement op de eerste verdieping. Je komt binnen in de hal, die toegang geeft tot alle vertrekken. In de hal vind je ook twee praktische inbouwkasten, handig en ruimtebesparend.
Aan de voorzijde van de woning ligt de lichte woonkamer met voldoende ruimte voor een zit- en eetgedeelte. Ook hier is een handige inbouwkast aanwezig, ideaal voor extra bergruimte. Aansluitend vind je de moderne keuken, die is uitgerust met een vaatwasser en inbouwapparatuur zoals een elektrische kookplaat, oven en koelkast. De keuken is strak afgewerkt en biedt veel opbergruimte. De badkamer aan de voorkant is zeer ruim en recent geschilderd. Deze badkamer zou eventueel omgebouwd kunnen worden tot slaap-, kinder-, werk- of logeerkamer.
De grootste slaapkamer ligt aan de achterzijde en biedt toegang tot het balkon. De tweede slaapkamer ligt ernaast en is perfect te gebruiken als kinder-, werk- of logeerkamer. Ook deze kamer biedt toegang tot het balkon. De tweede badkamer is praktisch ingedeeld met een douche, wastafel en toilet.
OMGEVING
De woning ligt midden in het bruisende Bos en Lommer, een wijk die de laatste jaren enorm in populariteit is toegenomen. De buurt heeft een levendige sfeer met een fijne mix van karakteristieke jaren ’30 panden, hippe cafés, restaurants en culturele hotspots.
Om de hoek vind je onder andere Markt 40/45, Theatercafé Mozaïek en allerlei winkels en supermarkten aan het Bos en Lommerplein. Voor ontspanning kun je terecht in het Erasmuspark, Westerpark of Rembrandtpark, allemaal op loop- of fietsafstand.
Met de fiets ben je in tien minuten in de Jordaan of het centrum. En met de auto zit je zó op de ring A10, de bereikbaarheid is uitstekend. In de buurt zijn voldoende parkeermogelijkheden, er is altijd plek.
BIJZONDERHEDEN
* Gelegen op eeuwigdurend afgekochte erfpachtgrond;
* Woonoppervlakte ca. 75,4 m² (NEN 2580 meetrapport aanwezig);
* Lichte woonkamer;
* Moderne keuken (2024);
* Twee slaapkamers;
* Balkon aan voor- én achterzijde;
* Meerdere handige inbouwkasten;
* Badkamer recent geschilderd;
* Energielabel D;
* Fijne, professioneel beheerde VvE;
* Zeer centrale ligging in Amsterdam-West;
* Oplevering in overleg.
***English***
PURE* Living!
In a vibrant location in Amsterdam-West, we proudly present this charming, move-in ready apartment of approximately 75 m², situated on perpetually bought-off leasehold land. The property features a bright living room, a modern kitchen (only 2 years old), two bedrooms, two bathrooms, and balconies at both the front and rear, allowing you to enjoy the sun all day long. Thanks to the large windows, natural light floods the space, making it a wonderfully inviting home.
LAYOUT
Via the shared entrance, you reach the apartment on the first floor. You enter into a hallway that provides access to all rooms. There are also two built-in closets in the hallway, practical and space-saving.
At the front of the apartment is the bright living room, with ample space for both a sitting and dining area. Another built-in closet here provides extra storage space. Adjacent is the modern kitchen, equipped with a dishwasher and built-in appliances including an electric cooktop, oven, and refrigerator. The kitchen is sleekly finished and offers plenty of storage.
The front bathroom is very spacious and was recently repainted. This bathroom could potentially be converted into a bedroom, children’s room, home office, or guest room.
The main bedroom is located at the rear and provides access to the back balcony. Next to it is the second bedroom, which is perfect as a children’s room, guest room, or office. this room provides access to the back balcony as well. The second bathroom is efficiently laid out with a shower, sink, and toilet.
SURROUNDINGS
This home is situated in the lively Bos en Lommer neighborhood, an area that has seen a significant rise in popularity in recent years. The neighborhood offers a dynamic atmosphere with a great mix of characteristic 1930s architecture, trendy cafés, restaurants, and cultural hotspots.
Just around the corner, you’ll find Markt 40/45, Theatercafé Mozaïek, and a variety of shops and supermarkets on Bos en Lommerplein. For outdoor relaxation, you’re close to Erasmus Park, Westerpark, and Rembrandtpark, all within walking or biking distance.
By bike, you can reach the Jordaan or city center in just ten minutes. And with quick access to the A10 ring road, the location is also ideal by car. There is ample parking in the area, and you’ll always find a spot.
HIGHLIGHTS
* Situated on perpetually bought-off leasehold land;
* Living area approx. 75.4 m² (NEN 2580 measurement report available);
* Bright living room;
* Modern kitchen (2024);
* Two bedrooms;
* Balconies at both front and rear;
* Several convenient built-in closets;
* Bathroom recently painted;
* Energy label D;
* Professionally managed and active homeowners’ association (VvE);
* Very central location in Amsterdam-West;
* Transfer date in consultation.
Kenmerken
- Koopprijs
- € 485.000,-
- Plaats
- Amsterdam
- Status
- Onder bod
- Buurt
- Erasmusparkbuurt West
- Aantal kamers
- 3
- Aantal slaapkamers
- 2
- Woonoppervlakte
- 75 m2
- Ligging
- Aan drukke weg, In centrum
- Bouwjaar
- 1940
- Isolatie
- Dubbelglas
- Type verwarming
- CV ketel
- Onderhoud buiten
- Goed tot uitstekend
- Onderhoud binnen
- Goed
- Voorzieningen
- TV kabel
- Energieklasse
- D
- Soort dak
- Plat dak
- Parkeer faciliteiten
- Betaald parkeren, Parkeervergunningen
- Woning type
- Appartement
Plattegronden
Uitzicht op straat
Zoek de locatie
kom jij kijken?
Een bezoek vertelt het meest. Onze makelaars nemen graag de tijd voor een rustige rondleiding.
Contacteer ons nu































