Eslaan 11, Bussum
Onder bodPrijs: € 1.875.000,-
Beschrijving
Sfeervolle vrijstaande villa uit 1882 op een ruim perceel van 1165 m2, met koetshuis, garage en zonnige tuin in hartje Bussum! Perfect familiehuis met veel ruimte, privacy en mogelijkheden.
Aan een rustige, groene laan in het centrum van Bussum ligt deze sfeervolle vrijstaande villa (ca. 254 m²) op een ruim perceel van 1.165 m². Een huis met karakter, stijl en historie, gebouwd in 1882 en met zorg gerenoveerd. Authentieke details zoals luiken, paneeldeuren, glas-in-loodramen, hoge plafonds en marmeren vloeren zijn behouden, terwijl het comfort van nu volledig is geïntegreerd. De woning beschikt over een moderne woonkeuken (2017), vijf slaapkamers, twee badkamers, een vrijstaand koetshuis (ca. 40 m²) en een stenen garage. De prachtige tuin op het zuiden biedt optimale privacy en meerdere terrassen. Op eigen terrein is ruime parkeergelegenheid aanwezig.
Gelegen op loopafstand van het centrum, het NS-station, scholen, sportvoorzieningen en de Vesting Naarden. Ook de natuur en uitvalswegen zijn dichtbij.
Indeling
Begane grond: Entree met dubbele voordeur, vestibule met marmeren vloer en lambrisering. Ruime hal met aan de rechterkant de prachtige 2e woonkamer met schouw en open haard en ensuite serrekamer met originele mozaïekvloer. Links van de hal is de woonkamer en suite met parketvloer, open haard en openslaande deuren naar de tuin. Aan de achterzijde van het huis is de moderne woonkeuken (2017) met marmeren vloer en openslaande deuren naar de tuin. Vanuit de hal toegang tot de kelder met cv-installatie en originele wijnkasten.
Eerste verdieping:
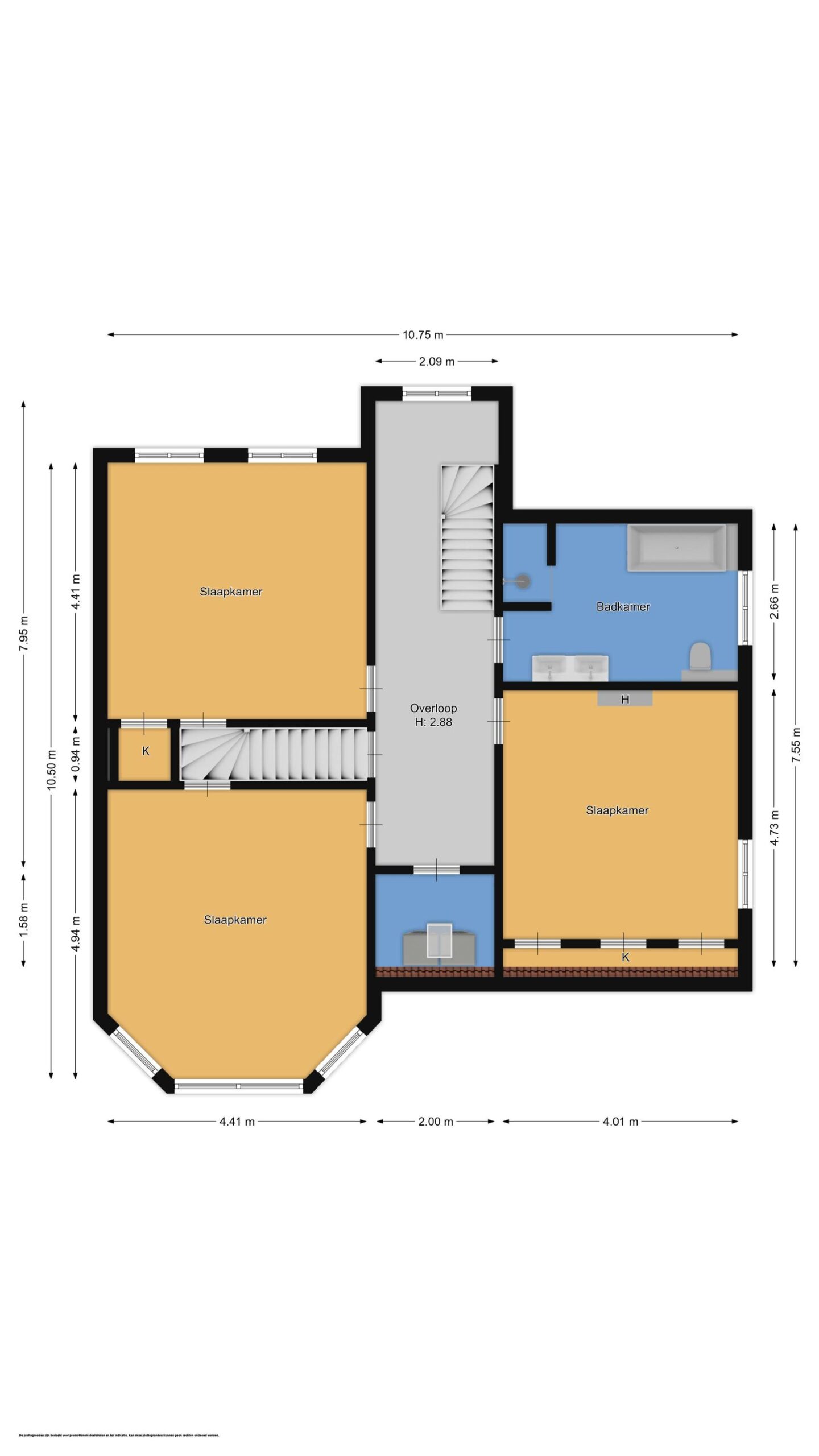
Ruime overloop, drie slaapkamers met vaste kasten, grote badkamer met ligbad, douche, toilet en wastafel. Aparte waskamer met wasmachine-/drogeraansluiting. Vrijwel overal nieuwe houten draai-/kiepramen en houten vloeren.
Tweede verdieping:
Overloop met vaste kasten, vierde slaapkamer (torenkamer), vijfde slaapkamer aan de achterzijde en tweede badkamer met vloerverwarming, inloopdouche, wastafel en toilet.
Bijzonderheden:
• Bouwjaar 1882
• Woonoppervlakte ca. 254 m²
• Perceeloppervlakte 1.165 m²
• Nieuw dak met isolatie (2011)
• Cv-installatie (2023)
• Energielabel D (dak-, vloer- en deels muurisolatie, grotendeels dubbel glas/HR++)
• Airconditioning op zolder
• Volledig vernieuwde elektrische installatie (2002)
• Alarmsysteem in gehele woning
• Schilderwerk buitenzijde: september 2025
• Gemeentelijke aanduiding “cultuurhistorische waarde”
Kortom: Een karaktervolle villa met authentieke details, moderne voorzieningen en een prachtige ligging in het centrum van Bussum. Perfect familiehuis met veel ruimte, privacy en mogelijkheden – ook geschikt voor praktijk aan huis.
Kenmerken
- Koopprijs
- € 1.875.000,-
- Plaats
- Bussum
- Status
- Onder bod
- Buurt
- Raadhuisplein
- Aantal kamers
- 8
- Aantal slaapkamers
- 5
- Aantal badkamers
- 2
- Woonoppervlakte
- 254 m2
- Perceel oppervlakte
- 1.165 m2
- Ligging
- Aan rustige weg, In centrum, In woonwijk, Beschutte ligging
- Bouwjaar
- 1882
- Isolatie
- Dakisolatie, Vloerisolatie, Dubbelglas, Gedeeltelijk dubbelglas, Voorzetramen
- Type verwarming
- CV ketel, Open haard, Vloerverwarming gedeeltelijk
- Onderhoud buiten
- Goed
- Onderhoud binnen
- Goed
- Voorzieningen
- alarminstallatie, TV kabel, Airconditioning, Rookkanaal, Dakraam, Glasvezel kabel
- Energieklasse
- D
- Soort dak
- Zadeldak
- Parkeer faciliteiten
- Op eigen terrein
- Schuur/bergruimte
- 1
- Woning type
- Woonhuis
Plattegronden
Uitzicht op straat
Zoek de locatie
kom jij kijken?
Een bezoek vertelt het meest. Onze makelaars nemen graag de tijd voor een rustige rondleiding.
Contacteer ons nu






















































