Franz Schubertlaan 10, Heemstede
VerkochtBeschrijving
In deze mooie, brede laan, komt niet vaak een woning beschikbaar en dat met een zeer diepe tuin en de mogelijkheid om het huis helemaal naar je eigen stijl te verbouwen maakt deze kans extra bijzonder.
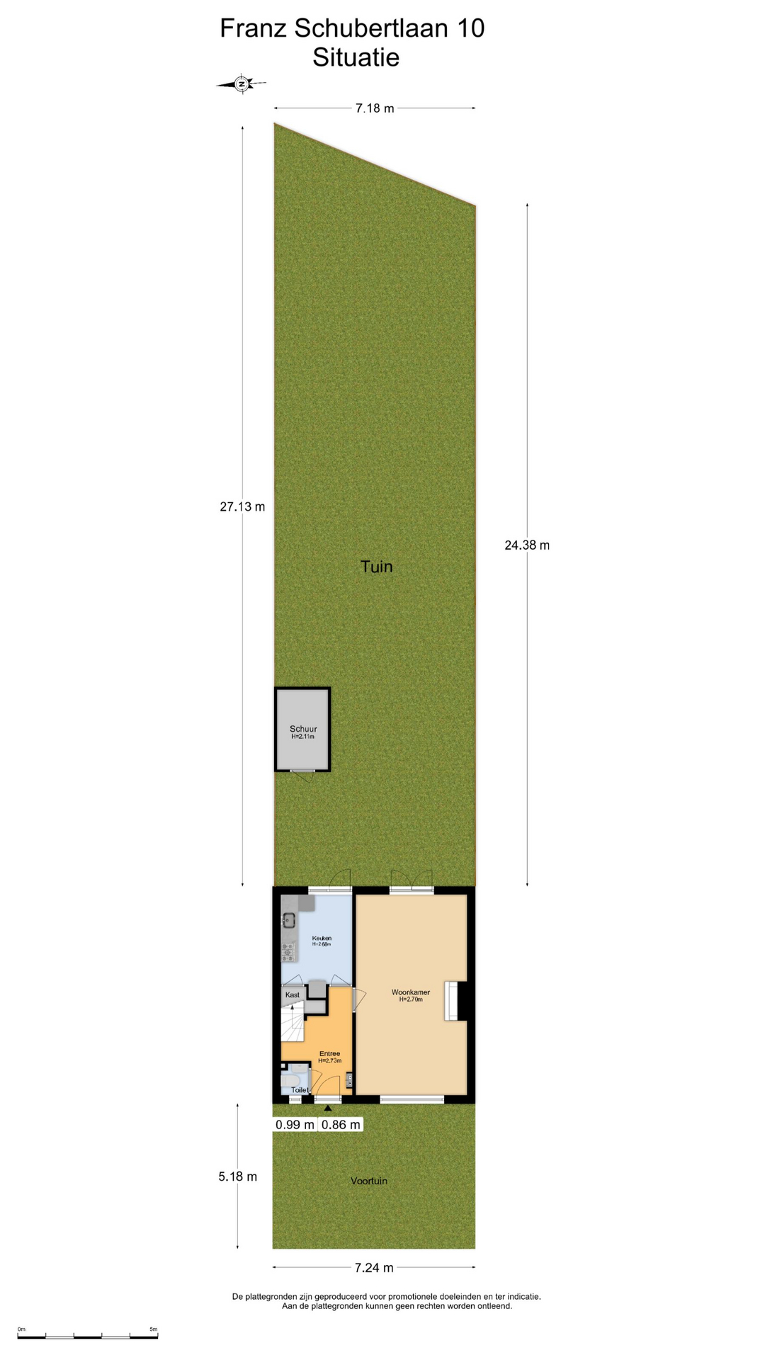
Dit leuke gezinshuis staat met een vrij gevoel aan de achterzijde, in de geliefde, kindvriendelijke Componistenbuurt. De parterre bestaat o.a. uit een ruime hal, een lichte woonkamer en een keuken. Op de 1e en 2e verdieping heb je 4 slaapkamers en een badkamer. Het huis is netjes bewoond maar is gedateerd en biedt volop mogelijkheden om het geheel naar eigen smaak te moderniseren. Heb je behoefte aan meer ruimte dan zijn er uitstekende uitbreidingsmogelijkheden. Zo heb je de uitstekende mogelijkheid voor een uitbouw aan de achterzijde en de realisatie van een volwaardige tweede etage door middel van een dakopbouw. Aan de voorzijde ligt een zonnige voortuin op het westen en aan de achterzijde een zonnige tuin van ca. 25 meter diep op het oosten waar je ‘s zomers tot in de avond van de zon kan genieten. De achtertuin is mooi groen en is voorzien van een vrijstaande stenen schuur, een vijverpartij en een zonnig terras gelegen aan de woning. Voor gezinnen is dit de fijne plek om te wonen. Met enkele minuten loop je naar de Binnenweg, de Raadhuisstraat of fiets je naar de Jan van Goyenstraat. In deze winkelstraten kun je uitstekend terecht voor je dagelijkse boodschappen, vind je veel leuke boetieks, cafés en restaurants en is een wekelijkse markt te vinden. Dichtbij liggen diverse basisscholen waarvan 1 om de hoek, middelbaar en hoger onderwijs, de bibliotheek, diverse sportfaciliteiten, een overdekt zwembad en wandelbos Groenendaal met een molen, een kinderboerderij en een leuke speeltuin. Het historische en bruisende stadshart van Haarlem met een rijk aanbod aan winkels, cultuur en uitgaansgelegenheden, het NS-station met directe verbinding naar o.a. Amsterdam, Leiden en Den Haag, vele natuurgebieden, het strand en de zee vind je op zeer korte fietsafstand. En ook zijn diverse uitvalswegen eenvoudig bereikbaar.
Indeling:
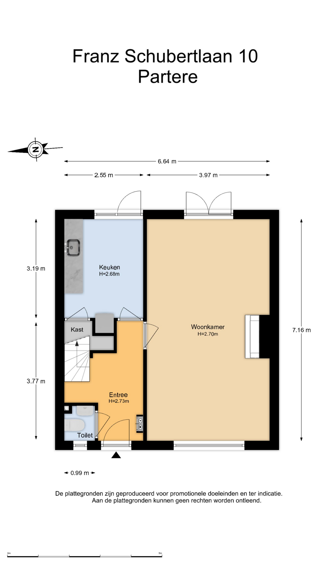
Parterre: entree, hal voorzien van net toilet met fontein, lichte woonkamer met openslaande deuren naar tuin, brede keuken met kelderkast en deur naar tuin, via hal trap naar….
1e Verdieping: overloop met zeer royale berging, twee slaapkamers aan voorzijde waarvan 1 met wastafel, slaapkamer aan achterzijde met wastafel en openslaande deuren naar balkon, nette gedateerde badkamer voorzien van ligbad, douche, wastafel en toilet, via overloop trap naar…..
2e Verdieping: overloop, slaapkamer met dakkapel
Bijzonderheden:
* Woonoppervlakte ca. 112 m2 (inclusief 2e verdieping ca. 17 m2 overige inpandige ruimte), inhoud ca. 398 m3 en 269 m2 eigen grond
* Zeer diepe zonnige tuin
* Vrijere ligging achterzijde
* Modernisering vereist
* Uit- en opbouwmogelijkheden
* Voor indeling en maatvoering zie plattegronden
* Oplevering in overleg
Algemeen
- Plaats
- Heemstede
- Status
- Verkocht
- Buurt
- Heemsteedse Dreef, Schildersbuurt en omgeving
- Aantal kamers
- 5
- Aantal slaapkamers
- 4
- Aantal badkamers
- 1
- Woonoppervlakte
- 112 m2
- Perceel oppervlakte
- 269 m2
- Ligging
- Aan rustige weg, In woonwijk
- Bouwjaar
- 1955
- Isolatie
- Dubbelglas
- Type verwarming
- Gaskachels
- Onderhoud buiten
- Redelijk tot goed
- Onderhoud binnen
- Redelijk tot goed
- Voorzieningen
- TV kabel, Buitenzonwering
- Energieklasse
- G
- Soort dak
- Zadeldak
- Parkeer faciliteiten
- Openbaar parkeren
- Schuur/bergruimte
- 1
- Woning type
- Woonhuis


