Glipper Dreef 44, Heemstede
VerkochtBeschrijving
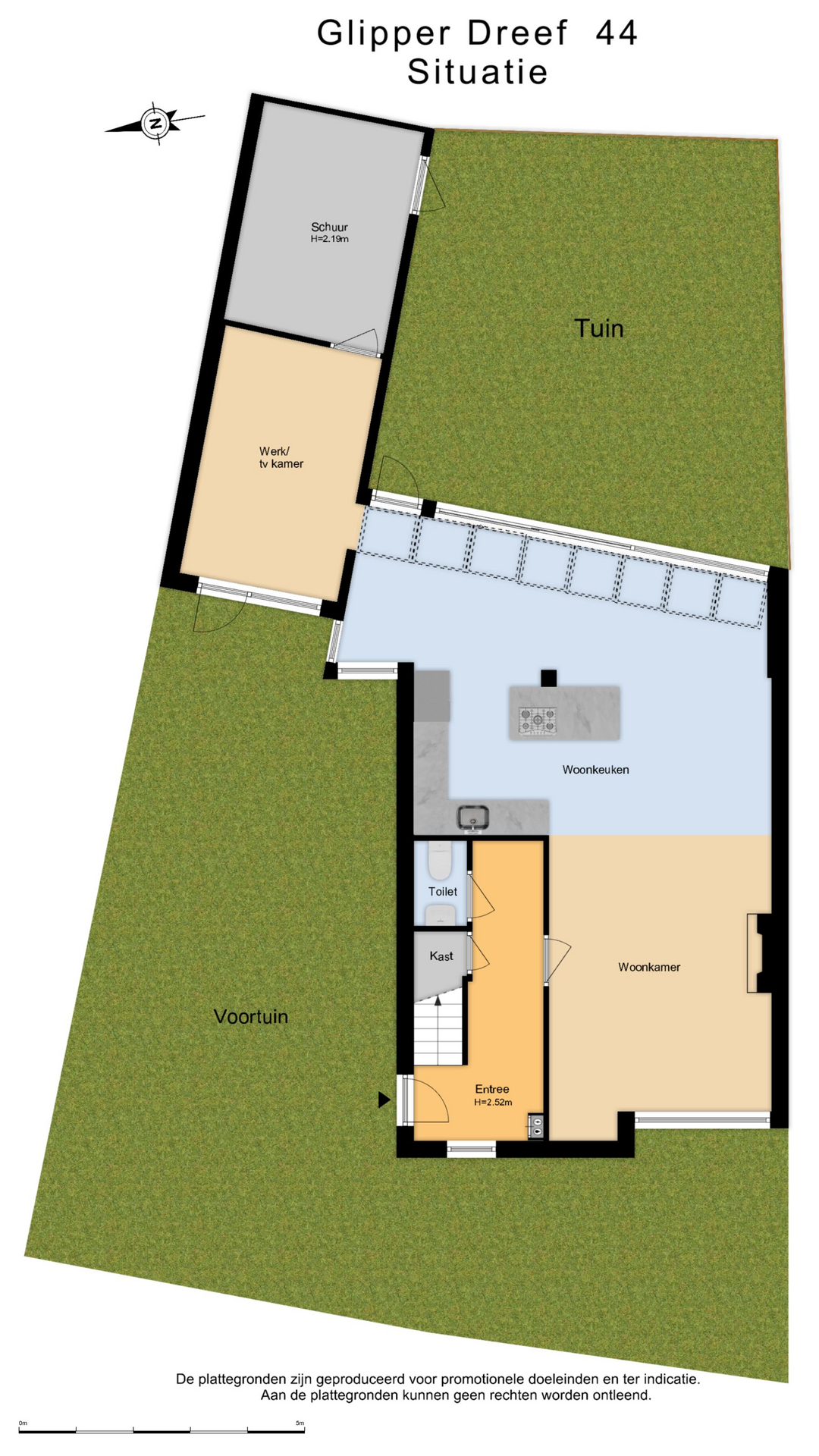
Op het brede en zeer rustige gedeelte ligt op de grens van Heemstede en Bennebroek dit ideale hoekgezinshuis met zonnige tuin en oprit. Binnen is de woning met veel aandacht gemoderniseerd. De achterzijde is op de parterre over de volle breedte uitgebouwd, waardoor er een royale leefruimte is ontstaan. Daarnaast is de voormalige garage omgetoverd tot een werk-/speelkamer met een extra eigen entree. Perfect voor een praktijk aan huis, een thuiswerkplek of juist een plek waar de kinderen kunnen spelen of tv kijken.
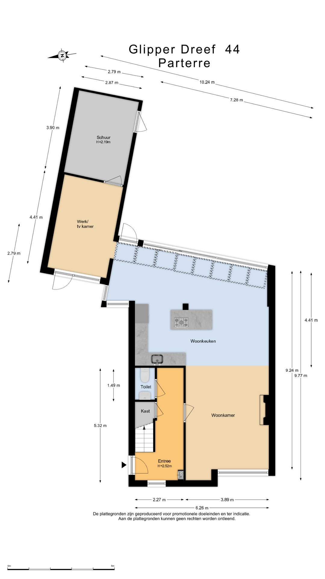
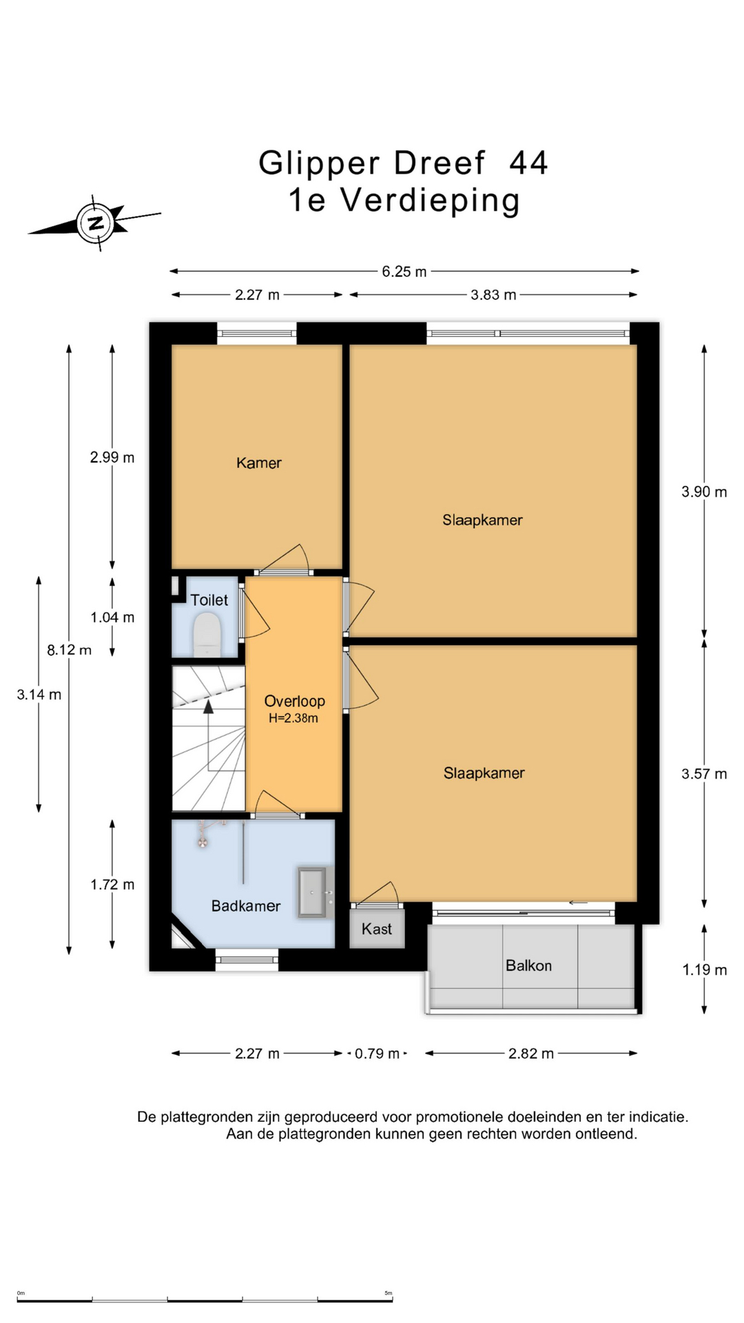
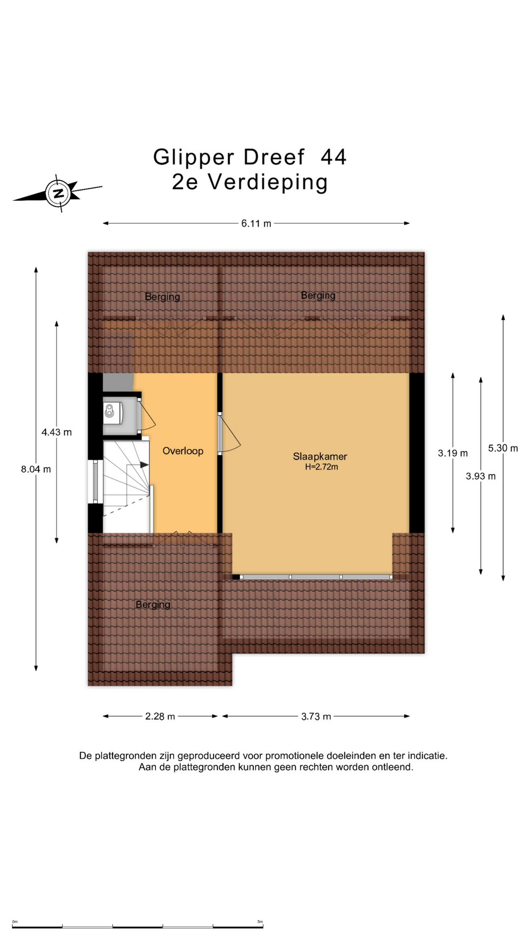
Op de parterre vind je een ruime woonkamer, een luxe open keuken met schuifpui naar de tuin en de werk/tv kamer. De 1e verdieping bestaat uit 3 kamers en een badkamer en op de 2e verdieping is een ruime overloop met was-/stook- en bergruimte en een royale slaapkamer. Door het plaatsen van een dakkapel aan de achterzijde heb je de mogelijkheid om bijv. een extra slaap- en/of badkamer te realiseren. Aan de voorzijde vind je een tuin en een ruime oprit waar je de mogelijkheid hebt om meerdere voertuigen te plaatsen. De zonnige achtertuin is op het oosten gelegen en is voorzien van een achterom en een ruime stenen berging. Deze hoekwoning ligt aan de rustige parallelweg met groen zicht aan de voorzijde. Direct aan de overkant is o.a. een supermarkt en een slagerij voor je dagelijkse boodschappen. Dichtbij ligt het centrum van Heemstede, maar ook het historische stadshart van Haarlem, diverse wandel- en natuurgebieden, Europa’s grootste speeltuin Linnaeushof, scholen, sportfaciliteiten en uitvalswegen liggen in de nabijheid van dit fijne gezinshuis.
Indeling:
Parterre: entree, hal met trapkast en modern zwevend toilet met fontein, ruime woonkamer met open haard, moderne open keuken voorzien van kookeiland, diverse inbouwapparatuur en schuifpui naar tuin, werk-/tvkamer met deur naar voortuin, via hal trap naar……
1e Verdieping: overloop met modern zwevend toilet, slaapkamer aan voorzijde met inbouwkast en deur naar balkon, slaapkamer aan achterzijde, zijkamer thans in gebruik als kleedkamer, moderne badkamer voorzien van wastafelmeubel en inloopdouche met handdouche en rainshower, via overloop trap naar…..
2e Verdieping: ruime overloop met wasmachine/droger aansluiting, kast met cv-ketel en goede bergruimte, slaapkamer met dakkapel en bergruimte
Bijzonderheden:
* Woonoppervlakte ca. 153 m2, inhoud ca. 581 m3 en 265 m2 eigen grond
* Fijn gezinshuis met 6 kamers
* Aan achterzijde over volle breedte uitgebouwd
* Parterre grotendeels voorzien van natuurstenen vloer met vloerverwarming
* Mogelijkheid om extra slaap- en/of badkamer te realiseren
* Zonnige tuin met achterom
* Ruime oprit
* Voor indeling en maatvoering zie plattegronden
* Oplevering in overleg
Algemeen
- Plaats
- Heemstede
- Status
- Verkocht
- Buurt
- Glipper Dreef en Staatsliedenbuurt
- Aantal kamers
- 6
- Aantal slaapkamers
- 4
- Aantal badkamers
- 1
- Woonoppervlakte
- 153 m2
- Perceel oppervlakte
- 265 m2
- Ligging
- Aan rustige weg, In woonwijk
- Bouwjaar
- 1958
- Isolatie
- Dakisolatie, Vloerisolatie, Dubbelglas
- Type verwarming
- CV ketel, Open haard, Vloerverwarming gedeeltelijk
- Onderhoud buiten
- Goed
- Onderhoud binnen
- Goed
- Voorzieningen
- TV kabel, Buitenzonwering, Rookkanaal, Schuifpui
- Energieklasse
- C
- Soort dak
- Zadeldak
- Parkeer faciliteiten
- Op eigen terrein
- Schuur/bergruimte
- 1
- Woning type
- Woonhuis








































