Kleine Houtweg 16B, Haarlem
VerkochtBeschrijving
Uniek licht en karaktervol appartement (bruto ca. 140 m²) in stijlvol herenhuis (1905) met mogelijkheid privé parkeerplaats, berging én zonnig balkon – aan de rand van het centrum van Haarlem!
Ben je op zoek naar een bijzonder ruim en licht appartement met historie én modern comfort? Dit prachtige dubbele bovenhuis is gelegen op de bovenste twee verdiepingen van een statig herenhuis aan de rustige Kleine Houtweg, direct naast het bruisende stadscentrum van Haarlem.
Highlights:
* Royale, lichte leefruimte met grote ramen en extra dakramen
* Loftachtige indeling – gemakkelijk aan te passen naar meerdere slaapkamers
* Hoge plafonds, originele details zoals marmeren vloeren en glas-in-loodramen
* Moderne, op maat gemaakte houten keuken met kookeiland en bar
* Zonnig balkon op het westen, bereikbaar via openslaande deuren
* Eigen parkeerplaats op afgesloten terrein (optioneel te koop)
* Ruime berging met elektra, ideaal voor (het opladen van) een elektrische auto
* Energielabel B
* Uitstekende locatie: rustig wonen op loopafstand van winkels, restaurants, De Haarlemmerhout, culturele hotspots, supermarkten en het NS-station
Indeling:
Parterre: Afgesloten entree, stijlvolle gemeenschappelijke hal met marmeren vloeren en glas-in-loodramen. Trappenhuis naar boven.
2e verdieping: Entree van het appartement, hal met modern zwevend toilet en fontein, zeer lichte en ruime woonkamer met eikenhouten vloer, extra dakramen, luxe houten keuken met diverse inbouwapparatuur, kookeiland met bar en openslaande deuren naar het balkon. Ruime slaapkamer met vaste kast. Moderne badkamer met inloopdouche, dubbele wastafel, wasmachineaansluiting en dakraam. Vanuit de woonkamer een elegante spiltrap naar…
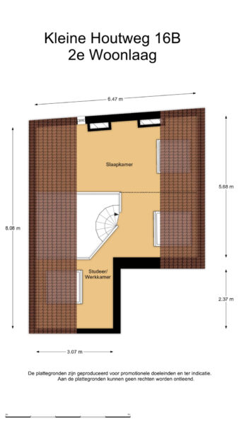
3e verdieping: Overloop met werk-/studeerkamer en extra slaapkamer.
Bijzonderheden:
* Bruto woonoppervlakte ca. 140 m²
* Licht, ruim en sfeervol appartement in monumentaal pand
* Loftachtige indeling met mogelijkheid tot twee of meer slaapkamers
* Energielabel B
* Parkeerplaats op eigen terrein, separaat te koop (vraagprijs € 39.000,= kk)
* Ruime berging met elektra, geschikt voor opladen elektrische auto
* Servicekosten: thans €200 per maand
* Zie plattegronden voor indeling en maatvoering
* Oplevering in overleg
Hier woon je op een unieke locatie waar rust, ruimte, historie en stadsleven samenkomen – kom kijken en laat je verrassen!
————————————————————-
Unique, light, and characterful apartment (approx. 140 m² gross floor area) in a stylish mansion (1905) with the possibility of private parking, storage space, and a sunny balcony—on the edge of Haarlem city center!
Are you looking for a particularly spacious and light apartment with history and modern comfort? This beautiful double upper house is located on the top two floors of a stately mansion on the quiet Kleine Houtweg, right next to the bustling city center of Haarlem.
Highlights:
* Spacious, light living space with large windows and extra skylights
* Loft-like layout – easily convertible into multiple bedrooms
* High ceilings, original details such as marble floors and stained glass windows
* Modern, custom-made wooden kitchen with cooking island and bar
* Sunny west-facing balcony, accessible via French doors
* Private parking space on enclosed grounds (optional purchase)
* Spacious storage room with electricity, ideal for (charging) an electric car
* Energy label B
* Excellent location: quiet living within walking distance of shops, restaurants, De Haarlemmerhout, cultural hotspots, supermarkets, and the train station
Layout:
Ground floor: Enclosed entrance, stylish communal hall with marble floors and stained glass windows. Staircase to the upper floors.
Second floor: Entrance to the apartment, hall with modern floating toilet and washbasin, very bright and spacious living room with oak flooring, extra skylights, luxurious wooden kitchen with various built-in appliances, cooking island with bar and French doors to the balcony. Spacious bedroom with built-in closet. Modern bathroom with walk-in shower, double sink, washing machine connection, and skylight. From the living room, an elegant spiral staircase leads to…
3rd floor: Landing with office/study and extra bedroom.
Details:
* Gross living area approx. 140 m²
* Bright, spacious, and attractive apartment in a monumental building
* Loft-like layout with the possibility of two or more bedrooms
* Energy label B
* Parking space on site, sold separately (asking price €39,000, costs payable by buyer)
* Spacious storage room with electricity, suitable for charging electric cars
* Service costs: currently €200 per month
* See floor plans for layout and dimensions
* Delivery in consultation
Here you will live in a unique location where peace, space, history, and city life come together—come and see for yourself and be surprised!
Algemeen
- Plaats
- Haarlem
- Status
- Verkocht
- Buurt
- Welgelegen
- Aantal kamers
- 4
- Aantal slaapkamers
- 2
- Aantal badkamers
- 1
- Woonoppervlakte
- 89 m2
- Ligging
- In centrum
- Bouwjaar
- 1905
- Isolatie
- Dakisolatie, Grotendeels dubbelglas
- Type verwarming
- CV ketel
- Onderhoud buiten
- Goed
- Onderhoud binnen
- Goed
- Voorzieningen
- TV kabel, Dakraam
- Energieklasse
- B
- Soort dak
- Zadeldak
- Parkeer faciliteiten
- Parkeervergunningen, Op eigen terrein
- Schuur/bergruimte
- 1
- Woning type
- Appartement



































