Kuipersstraat 69A 1, Amsterdam
Verkocht onder voorbehoudPrijs: € 500.000,-
Beschrijving
PUUR* wonen!
Licht en goed ingedeeld 3-kamerappartement met zonnig terras op het zuiden in de populaire Pijp.
Welkom bij dit fijne en goed onderhouden appartement aan de Kuipersstraat 69 A 1!
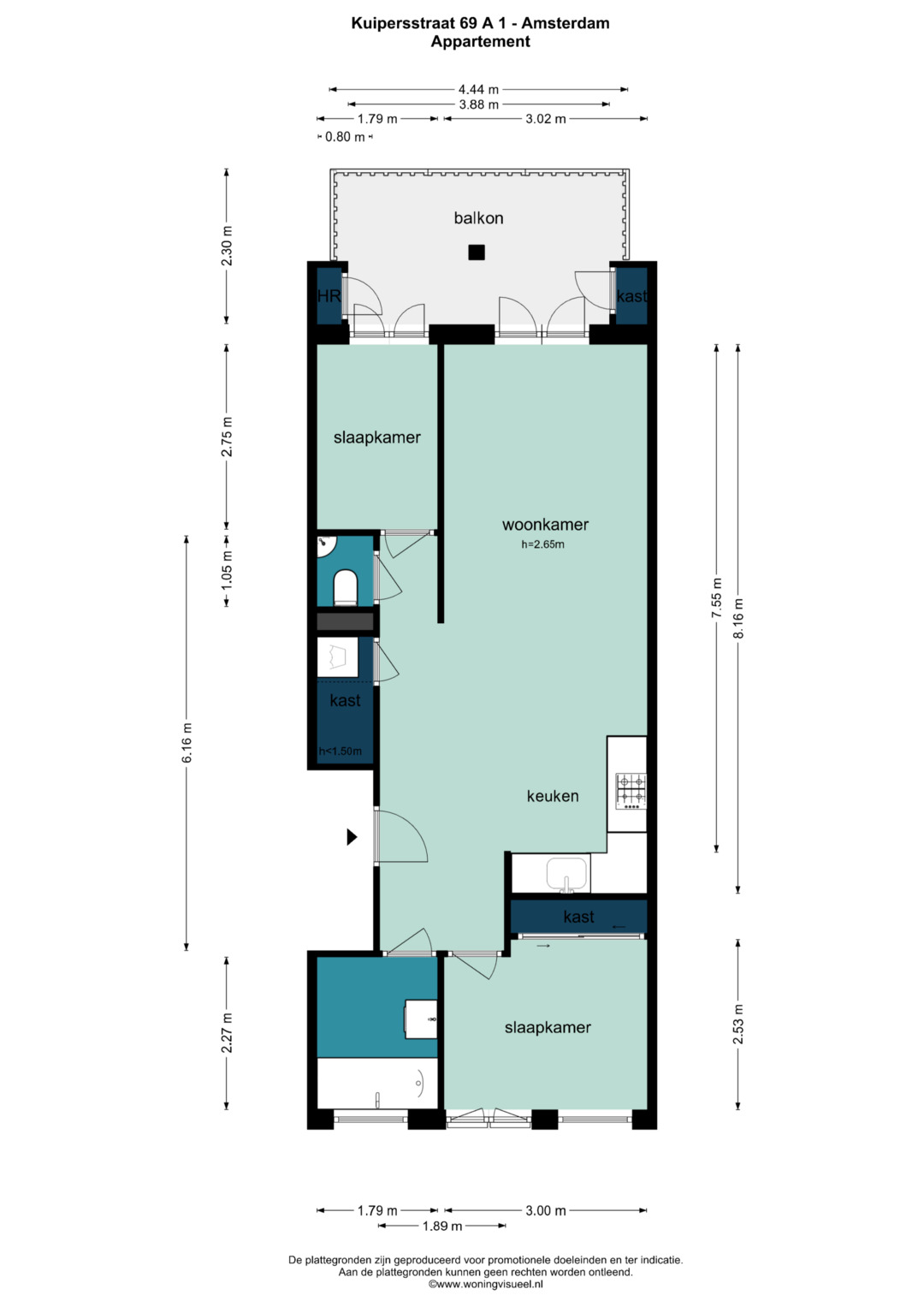
Deze heerlijke woning van ca. 52 m2 is gelegen op de eerste verdieping van een karakteristiek pand in het hart van De Pijp. De ruime woon- en eetruimte met open keuken, twee volwaardige slaapkamers en het zonnige terras aan de achterzijde zorgen voor een prettige en sfeervolle woonplek met veel mogelijkheden om naar eigen wens in te richten.
Bovendien ligt de woning op EIGEN GROND, géén erfpacht dus!
Perfect voor woning delers (aangezien de slaapkamer niet aan elkaar grenzen) starters, stellen of als pied-à-terre in de stad. Nieuwsgierig geworden? Neem contact met ons op voor een bezichtiging!
INDELING
Via het gemeenschappelijke trappenhuis bereikt u op de eerste verdieping de voordeur van het appartement. Vanuit de hal heeft u toegang tot de verschillende vertrekken.
Aan de achterzijde bevindt zich de ruime woon- en eetkamer met open keuken, voorzien van een mooie houten vloer en openslaande deuren naar het zonnige terras op het zuiden. Dankzij de grote raampartijen valt er veel natuurlijk licht binnen en is er voldoende ruimte voor zowel een comfortabele zithoek als een grote eettafel.
Het terras is afgewerkt met hardhouten vlonders, beschikt over een praktische bergkast en biedt uitzicht op de groene binnentuinen; een rustige plek midden in de stad.
De moderne open keuken is uitgevoerd in een praktische L-opstelling en voorzien van diverse inbouwapparatuur, waaronder een vaatwasser, koelkast met vriesvak, RVS gasfornuis, combi-oven/magnetron, RVS afzuigkap en een stijlvol zwart granieten werkblad.
Aan de voorzijde ligt de hoofdslaapkamer, voorzien van een Frans balkon en voldoende ruimte voor een tweepersoonsbed en kledingkast. Aan de achterzijde bevindt zich de tweede slaapkamer, die ook toegang biedt tot het terras, ideaal als werkkamer, logeerkamer of kinderkamer.
De badkamer ligt naast de hoofdslaapkamer en is uitgerust met een ligbad, aparte douche, handdoekradiator en wastafelmeubel. Vanuit de hal is tevens het separate toilet met fontein bereikbaar. Onder het trappenhuis bevindt zich een kast met aansluiting voor wasmachine en droger.
OMGEVING EN BEREIKBAARHEID
De Kuipersstraat ligt in het hart van De Pijp, één van de meest geliefde en levendige buurten van Amsterdam. De straat zelf is rustig, maar om de hoek vindt u het bruisende leven van de stad. De Albert Cuypmarkt, het Sarphatipark, de Utrechtsestraat en de Amstel liggen allemaal op loopafstand. Ook vindt u in de directe omgeving een groot aanbod aan gezellige cafés, restaurants en winkels.
De bereikbaarheid is uitstekend. De Noord/Zuidlijn (metrostation De Pijp) ligt om de hoek, net als diverse tram- en busverbindingen richting het Centrum, Zuidas en Amsterdam Amstel. Met de fiets bent u binnen enkele minuten bij het Museumplein, Vondelpark of de Amstel.
De uitvalswegen richting de A10, A1, A2 en A9 zijn goed bereikbaar. Parkeren kan via het vergunningsstelsel van stadsdeel Zuid (vergunningsgebied De Pijp/Rivierenbuurt).
BIJZONDERHEDEN
* Ca. 52 m² woonoppervlak (meetrapport aanwezig);
* 2 ruime slaapkamers;
* Energielabel A;
* Gelegen op EIGEN GROND, géén erfpacht;
* Ruime woon- en eetruimte met open keuken;
* Zonnig terras op het zuiden met bergkast;
* Twee slaapkamers;
* Luxe open keuken met inbouwapparatuur;
* Nette badkamer met ligbad en aparte douche;
* Houten vloer en verzorgde afwerking;
* Actieve en gezonde VvE;
* Maandelijkse Vve bijdrage van € 90,-;
* Oplevering in overleg, kan snel.
***English***
PUUR* living!
Bright and well-laid-out 2-bedroom apartment with sunny south-facing terrace in the popular Pijp neighborhood
Welcome to this charming and well-maintained apartment at Kuipersstraat 69 A 1!
This lovely home of approximately 52 m² is located on the first floor of a characteristic building in the heart of De Pijp. The spacious living and dining area with open kitchen, two full-sized bedrooms, and the sunny terrace at the rear provide a pleasant and atmospheric living space with plenty of opportunities to personalize according to your own taste.
Additionally, the property is situated on FREEHOLD land, meaning no leasehold!
Perfect for first-time buyers, couples, or as a pied-à-terre in the city. Curious? Contact us to arrange a viewing!
LAYOUT
Via the communal staircase, you reach the front door of the apartment on the first floor. From the hallway, you have access to the various rooms.
At the rear is the spacious living and dining room with an open kitchen, featuring beautiful wooden flooring and French doors leading to the sunny south-facing terrace. Thanks to the large windows, plenty of natural light fills the room, and there is ample space for both a comfortable seating area and a large dining table.
The terrace is finished with hardwood decking, includes a practical storage closet, and offers views of the green inner courtyards, a peaceful spot right in the city.
The modern open kitchen is designed in a practical L-shape and equipped with various built-in appliances, including a dishwasher, fridge with freezer compartment, stainless steel gas stove, combination oven/microwave, stainless steel extractor hood, and a stylish black granite countertop.
At the front is the master bedroom, featuring a French balcony and enough space for a double bed and wardrobe. At the rear is the second bedroom, which also has access to the terrace; ideal as a home office, guest room, or child’s bedroom.
The bathroom is located next to the master bedroom and is equipped with a bathtub, separate shower, towel radiator, and washbasin unit. From the hallway, the separate toilet with a washbasin is also accessible. Under the staircase is a cupboard with connections for a washing machine and dryer.
SURROUNDINGS AND ACCESSIBILITY
Kuipersstraat is located in the heart of De Pijp, one of Amsterdam’s most beloved and vibrant neighborhoods. The street itself is quiet, but just around the corner you’ll find the bustling city life. The Albert Cuyp Market, Sarphatipark, Utrechtsestraat, and the Amstel River are all within walking distance. In the immediate vicinity, you’ll also find a wide range of cozy cafés, restaurants, and shops.
Accessibility is excellent. The Noord/Zuid metro line (De Pijp station) is just around the corner, as are several tram and bus connections to the city center, Zuidas, and Amsterdam Amstel. By bike, you can reach Museumplein, Vondelpark, or the Amstel within minutes.
The highways A10, A1, A2, and A9 are easily accessible. Parking is regulated through the permit system of the Zuid district (De Pijp/Rivierenbuurt permit zone).
HIGHLIGHTS
* Approx. 52 m² living space (measurement report available);
* 3-room apartment;
* Energy label A;
* Situated on FREEHOLD land, no leasehold;
* Spacious living and dining area with open kitchen;
* Sunny south-facing terrace with storage closet;
* Two bedrooms;
* Luxury open kitchen with built-in appliances;
* Neat bathroom with bathtub and separate shower;
* Wooden floor and well-maintained finish;
* Active and healthy homeowners’ association;
* Monthly Vve contribution of € 90,-;
* Delivery in consultation, possible quickly.
Kenmerken
- Koopprijs
- € 500.000,-
- Plaats
- Amsterdam
- Status
- Verkocht onder voorbehoud
- Buurt
- Willibrordusbuurt
- Aantal kamers
- 3
- Aantal slaapkamers
- 2
- Woonoppervlakte
- 52 m2
- Ligging
- In woonwijk
- Isolatie
- Muurisolatie, Dubbelglas
- Onderhoud buiten
- Redelijk tot goed
- Onderhoud binnen
- Goed
- Voorzieningen
- TV kabel, Frans balkon, Natuurlijke ventilatie
- Energieklasse
- A
- Soort dak
- Zadeldak
- Parkeer faciliteiten
- Betaald parkeren, Parkeervergunningen
- Woning type
- Appartement
Plattegronden
Uitzicht op straat
Zoek de locatie
kom jij kijken?
Een bezoek vertelt het meest. Onze makelaars nemen graag de tijd voor een rustige rondleiding.
Contacteer ons nu
























