Voorzorgstraat 62, Haarlem
VerkochtBeschrijving
PUUR* wonen in dit te leuke huisje in de Leidsebuurt. In een rustig straatje van de sfeervolle Leidsebuurt ligt dit charmante en goed ingedeelde 3-kamerwoning met zonnige stadstuin op het westen. Voorzorgstraat 62 is compact maar verrassend compleet. De woning is uitermate geschikt voor een jong stel of iemand alleen.
Goed om te weten
* Bouwjaar 1838
* 59m2 woonoppervlakte
* Gefundeerd op staal (volgens Gemeente Haarlem)
* Schuimbeton in woonkamer
* Opbouw niet mogelijk
* Energielabel C
* Prachtige houten vloer op begane grond
* Klassieke glas-in-lood deuren
* Keuken voorzien van Bosch inbouwapparatuur en een Quooker
* Oplevering in overleg (voorkeur december/januari)
Locatie
De Leidsebuurt staat bekend om haar prettige sfeer, klassieke gevels en centrale ligging. Je loopt zó naar de binnenstad van Haarlem, de supermarkt of een koffietentje om de hoek. Station Haarlem, strand, duinen én uitvalswegen liggen allemaal binnen handbereik.
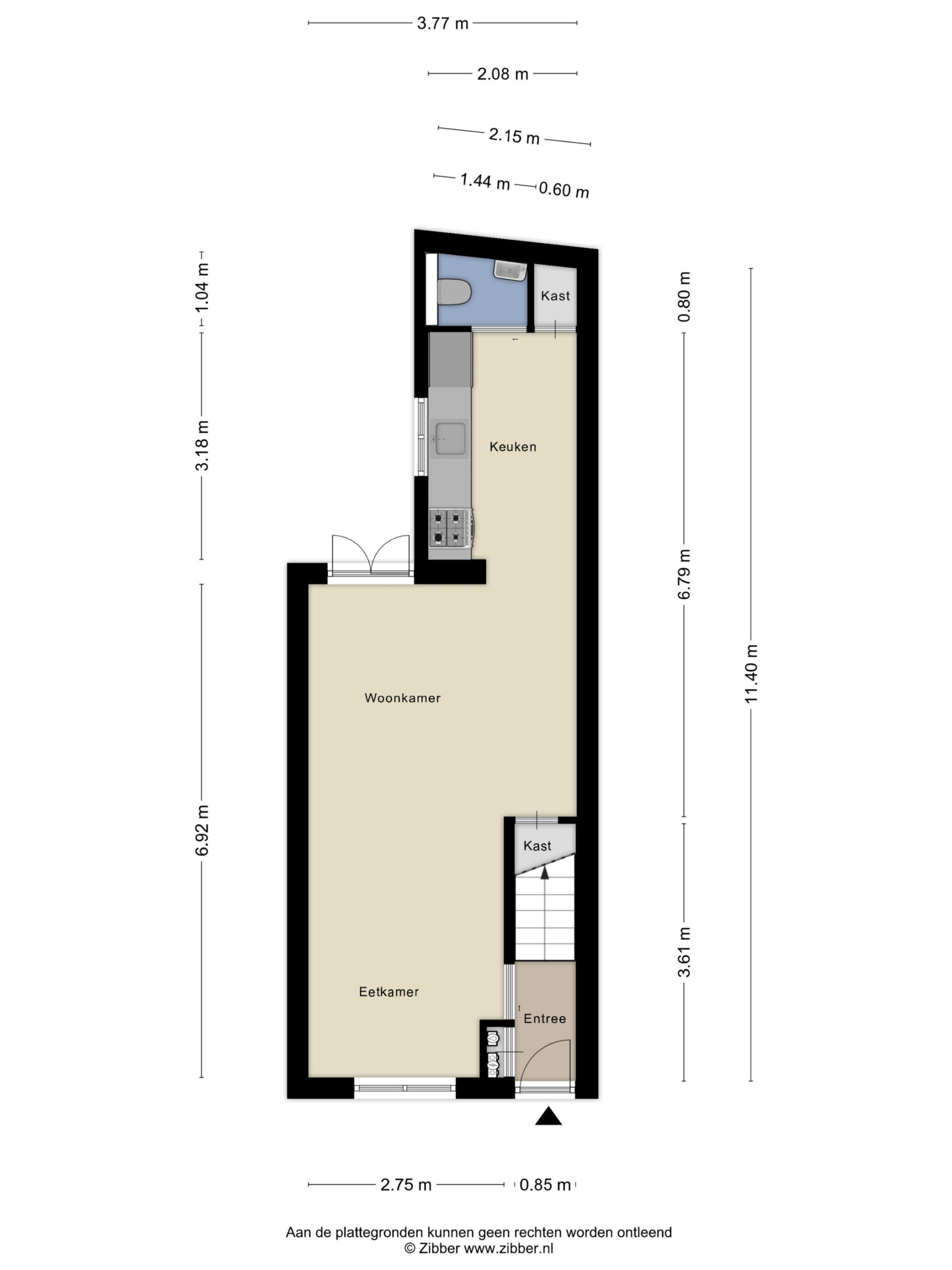
Indeling
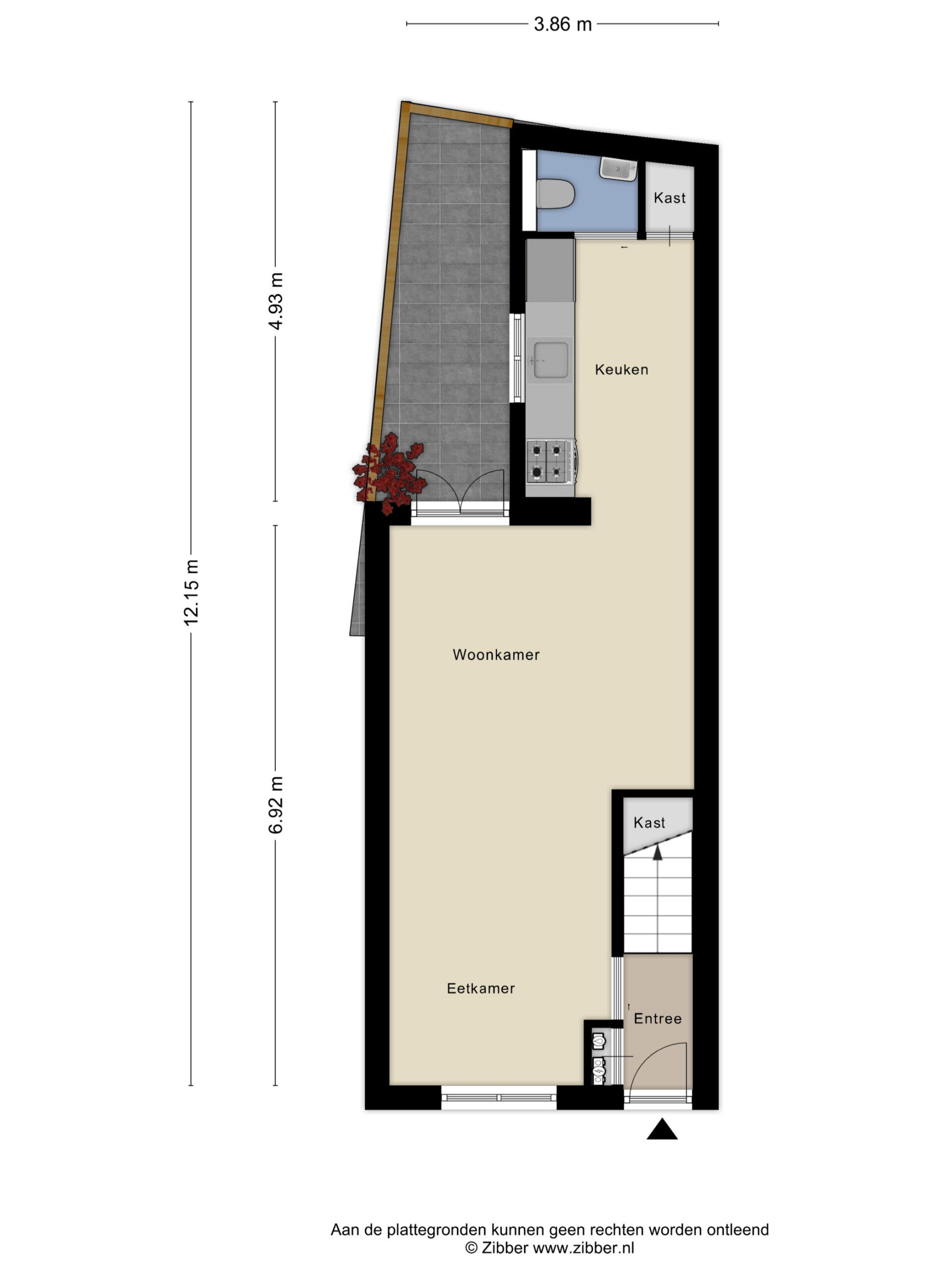
Begane grond: Entree met elektra en gasmeter, via de glas-in-lood deur kom je het woongedeelte. De woonkamer is knus en licht, met ruimte voor een zit- en eetgedeelte. Aan de achterzijde ligt de nette keuken met Quooker en diepe inbouwlades voor extra opbergruimte. Toilet vindt men aan de achterzijde van de begane grond. Vanuit de woonkamer openslaande deuren naar de zonnige tuin.
Eerste verdieping: Via de hal toegang tot de trap met de badkamer rechts, voorzien van zowel was-als droogaansluiting, inloopdouche, wastafel en designradiator. Alle kamers zijn voorzien van houten schuifdeuren zodat de ruimte optimaal benut wordt. Rechts een kleine slaapkamer die nu gebruikt wordt als inloopkast. Links de slaapkamer met mooie houten balken in het zicht en opbergruimte op de vliering.
Voor wie klein maar fijn wil wonen, is Voorzorgstraat 62 een verborgen pareltje. Kom snel kijken!
*ENGLISH BELOW*
PUUR* living in this delightful little house in the Leidsebuurt neighbourhood. This charming and well-designed 3-room house with a sunny west-facing city garden is located on a quiet street in the atmospheric Leidsebuurt neighbourhood. Voorzorgstraat 62 is compact but surprisingly complete. The house is ideal for a young couple or someone living alone.
Good to know
* Built in 1838
* 59m2 living space
* Founded on steel (according to the Municipality of Haarlem)
* Foam concrete in living room
* No possibility for extension
* Energy label C
* Beautiful wooden floor on ground floor
* Classic stained glass doors
* Kitchen equipped with Bosch built-in appliances and a Quooker
* Delivery in consultation (preferably December/Januari)
Location
The Leidsebuurt neighbourhood is known for its pleasant atmosphere, classic facades and central location. You can walk to Haarlem city centre, the supermarket or a coffee shop around the corner. Haarlem station, the beach, dunes and major roads are all within easy reach.
Layout
Ground floor: Entrance with electricity and gas meters, through the stained-glass door you enter the living area. The living room is cosy and light, with space for a sitting and dining area. At the rear is the neat kitchen with Quooker and deep built-in drawers for extra storage space. The toilet is located at the rear of the ground floor. French doors from the living room open onto the sunny garden.
First floor: The hall leads to the staircase with the bathroom on the right, equipped with washing machine and dryer connections, walk-in shower, washbasin and designer radiator. All rooms have wooden sliding doors to make optimal use of the space. On the right is a small bedroom that is currently used as a walk-in wardrobe. On the left is the bedroom with beautiful exposed wooden beams and storage space in the loft.
For those who want to live small but nice, Voorzorgstraat 62 is a hidden gem. Come and have a look!
Algemeen
- Plaats
- Haarlem
- Status
- Verkocht
- Buurt
- Leidsebuurt-west
- Aantal kamers
- 3
- Aantal slaapkamers
- 2
- Aantal badkamers
- 1
- Woonoppervlakte
- 59 m2
- Perceel oppervlakte
- 50 m2
- Ligging
- Aan rustige weg, In woonwijk, Beschutte ligging
- Bouwjaar
- 1883
- Isolatie
- Dubbelglas, HR glas
- Type verwarming
- CV ketel
- Onderhoud buiten
- Goed tot uitstekend
- Onderhoud binnen
- Goed
- Voorzieningen
- Mechanische ventilatie, TV kabel, Glasvezel kabel, Natuurlijke ventilatie
- Energieklasse
- C
- Soort dak
- Mansardedak
- Parkeer faciliteiten
- Parkeervergunningen
- Woning type
- Woonhuis































