Wilhelminastraat 47H, Amsterdam
VerkochtBeschrijving
PUUR WONEN*
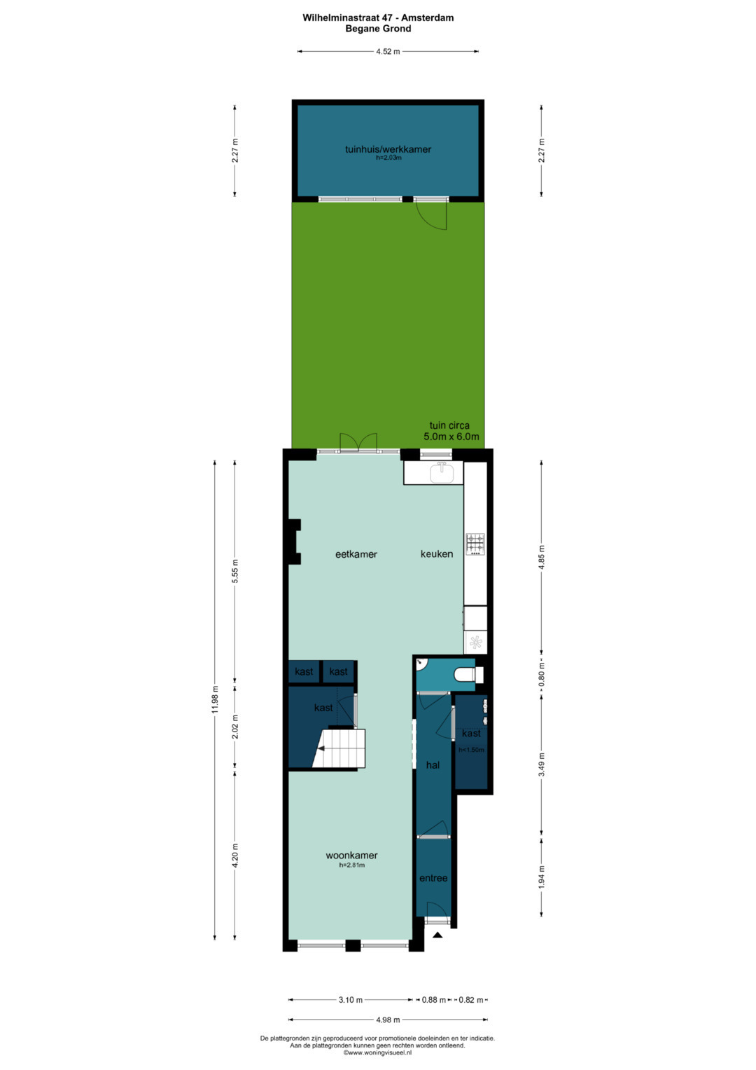
Dubbel benedenhuis van 121m2 waarvan een tuinhuis/werkplek van 10 m2 en een tuin op het zuiden van 30m2.
In het bruisende hart van Amsterdam Oud-West, op een steenworp afstand van het Vondelpark, presenteren wij dit charmante en instapklare familiehuis met 3 slaapkamers en op EIGEN GROND aan het meest gewilde stukje van de Wilhelminastraat.
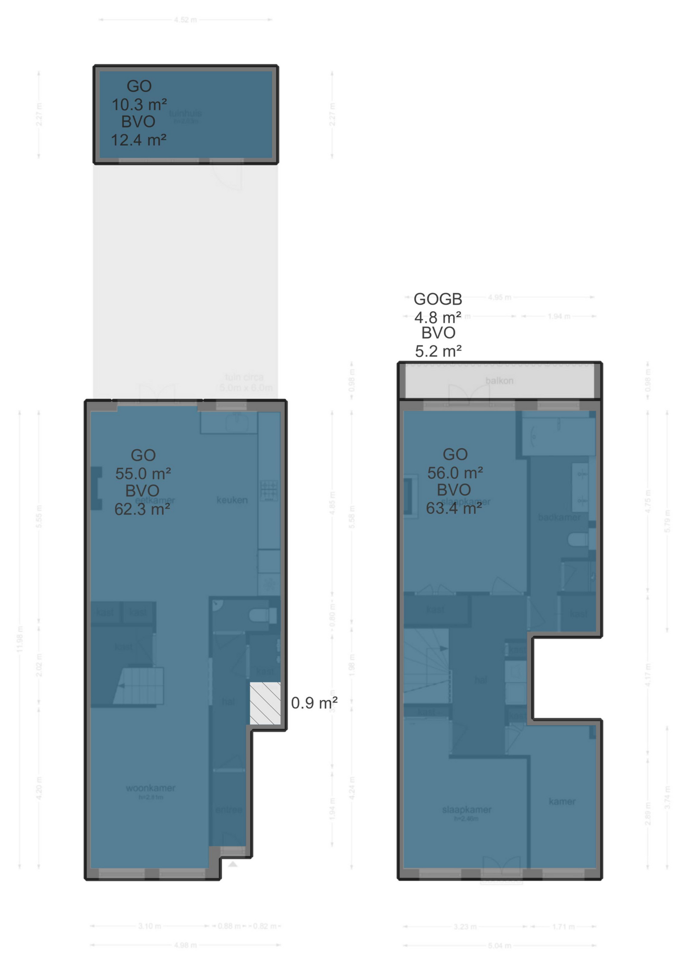
Het appartement ligt op de begane grond en beschikt over een lichte woonkamer met open keuken, uitgerust met hoogwaardige inbouwapparatuur, een echte open haard, en een prachtige eikenhouten vloer. Op de tweede verdieping bevinden zich 3 comfortabele slaapkamers, een badkamer en een zeer functioneel op maat gemaakte kast die de was- en droogmachine prachtig wegwerken.
INDELING
Bij binnenkomst via de eigen voordeur treft u de hal die toegang biedt tot de eerste woonverdieping. Aan de straatzijde bevindt zich de lichte woonkamer en aan de achterzijde de ruime open keuken, voorzien van hoogwaardige apparatuur, waaronder een oven/gasfornuis van het merk Solitaire en een Quooker. In de wintermaanden is er een gezellige open haard en zomers geeft de keuken middels openslaande deuren toegang tot de tuin met elektrisch zonnescherm en een tuinhuis die volledig is uitgerust met dubbel glas, elektra en verwarming. De gehele verdieping is afgewerkt met een mooie lichte eikenhouten vloer en biedt volop handige bergruimte, onder andere onder de trap.
Neem je de trap naar de tweede verdieping, dan valt direct het centraal geplaatste, op maat gemaakte en zeer functionele washok op de overloop op. Aan de achterzijde bevindt zich de master bedroom met een eigen inloopkast en directe toegang tot een balkon met uitzicht op de tuin. Daarnaast ligt de ruime badkamer, voorzien van vloerverwarming en een comfortabel ligbad. Aan de voorzijde van de verdieping bevinden zich nog twee slaapkamers, beide met handige ingebouwde kasten. Één van deze kamers beschikt bovendien over een charmant Frans balkon. Over de gehele verdieping ligt een nette tapijtvloer.
OMGEVING
De Wilhelminastraat 47 H is gelegen in het geliefde Oud-West, een van de meest karakteristieke buurten van Amsterdam. Op korte loopafstand vindt u het Vondelpark, de Jan Pieter Heijestraat en de Overtoom, met een breed aanbod aan gezellige cafés, restaurants, boetieks en speciaalzaken. Dankzij de gunstige ligging zijn zowel het centrum van Amsterdam als de ring A10 eenvoudig en snel bereikbaar. Openbaar vervoer is ruimschoots aanwezig, waardoor andere delen van de stad eveneens uitstekend te bereiken zijn.
BIJZONDERHEDEN:
* GELEGEN OP EIGEN GROND;
* 3 slaapkamers en functioneel tuinhuis;
* Tuin op het zuiden;
* Veel opbergruimte aanwezig;
* Houten eiken vloer over de gehele benedenverdieping;
* Badkamer voorzien van vloerverwarming;
* Energielabel C;
* Geheel voorzien van dubbele beglazing;
* Open haard in de leef-keuken;
* CV ketel uit 2020;
* Zeer gunstige ligging op een steenworp afstand van het Vondelpark;
* Actieve VVE;
* Servicekosten bedragen €225 per maand.
Algemeen
- Plaats
- Amsterdam
- Status
- Verkocht
- Buurt
- Cremerbuurt Oost
- Aantal kamers
- 5
- Aantal slaapkamers
- 3
- Woonoppervlakte
- 121 m2
- Ligging
- Aan rustige weg, In centrum
- Isolatie
- Dubbelglas
- Type verwarming
- CV ketel
- Onderhoud buiten
- Goed tot uitstekend
- Onderhoud binnen
- Goed tot uitstekend
- Voorzieningen
- Mechanische ventilatie, TV kabel
- Energieklasse
- C
- Parkeer faciliteiten
- Openbaar parkeren
- Woning type
- Appartement






































