Albert Cuypstraat 54-3, Amsterdam
Verkocht onder voorbehoudPrijs: € 500.000,-
Beschrijving
PUUR* Wonen!
Heerlijk licht woonruimte met open keuken en terras op het zuiden.
Welkom bij dit charmante dubbele bovenhuis in de gezellige Pijp! Dit fijne huis van 60m2 is gelegen aan de rustige zijde van de Albert Cuypstraat. De woning beschikt over twee goed bemeten slaapkamers, een riante woonkamer met open keuken en een zonnig balkon op het zuiden. Daarnaast is het appartement gelegen op EIGEN GROND – u hoeft hier dus geen erfpacht te betalen. Nieuwsgierig geworden? Neem contact met ons op voor een bezichtiging!
INDELING
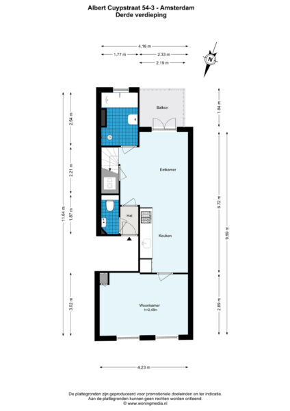
Derde verdieping
Via het gezamenlijke trappenhuis bereikt u de eigen voordeur op de derde verdieping. U komt allereerst binnen in de hal waar voldoende plek is om de jassen op te bergen. Via de hal bereikt u de zeer riante woonkamer met aan de achterzijde de open keuken en eethoek. De strakke keuken is voorzien van diverse inbouwapparatuur, waaronder een vaatwasser, oven, koelkast en 4-pits gasfornuis. Via de openslaande deuren heeft u toegang tot het ruime balkon. De ligging op het zuiden maakt dit de perfecte plek om van de zon te genieten. De gezellige zithoek is aan de voorzijde van de woning gelegen. Deze ruimte kan ook eventueel gebruikt worden als derde slaapkamer. Aan de achterzijde vindt u de badkamer die is voorzien van een douche, ligbad en wastafel. Het toilet zit separaat en is te betreden vanuit de hal.
Vierde verdieping
Via de trap in de woning bereikt u de overloop van de vierde verdieping. Hier vindt u twee goede, volwaardige slaapkamers met plek voor een tweepersoonsbed en kledingkast. Daarnaast heeft de woning ook nog een praktische eigen berging op deze etage.
OMGEVING EN BEREIKBAARHEID
De woning is gelegen aan de rustige zijde van de Albert Cuypstraat in de bruisende Pijp. Op loopafstand vindt u de altijd gezellige Albert Cuypmarkt, perfect voor de dagelijkse verse boodschappen. In de buurt vindt u een groot scala aan goede horecagelegenheden zoals Auberge en Café Picco. De groene Frans Halsstraat ligt om de hoek en kent veel leuke restaurants, koffietenten en wijnbarretjes. Voor een bezoek aan een van de theaters, bioscopen, het Concertgebouw en vele andere voorzieningen woon je hier op de juiste plek. In het nabijgelegen Sarphatipark geniet je van de rust en het prachtige groen.
De tram en metro (Noord/Zuidlijn) zorgen voor uitstekende verbindingen binnen Amsterdam en Schiphol. De treinstations Amstel, Zuid, RAI en Centraal zijn met de fiets snel te bereiken. En kunt u de auto niet missen, dan kunt u een vergunning aanvragen waarbij u ook toegang krijgt tot de parkeergarage Albert Cuyp, die zich onder het water van de Ruysdaelkade bevindt.
BIJZONDERHEDEN
– 60m2 (NEN meetrapport beschikbaar);
– EIGEN GROND;
– Dubbele bovenwoning;
– Twee volwaardige slaapkamers (derde kan makkelijk gecreëerd worden);
– Riante woonkamer met open keuken;
– Zonnig balkon op het zuiden;
– Moderne badkamer met ligbad;
– Berging op de vierde verdieping;
– Gelegen aan de rustige kant van de Albert Cuypstraat (geen markt, tram of auto’s voor de deur);
– Gloednieuwe CV-ketel (eind 2024);
– Oplevering in overleg, kan snel.
Kenmerken
- Koopprijs
- € 500.000,-
- Plaats
- Amsterdam
- Status
- Verkocht onder voorbehoud
- Buurt
- Hercules Seghersbuurt
- Aantal kamers
- 4
- Aantal slaapkamers
- 3
- Aantal badkamers
- 1
- Woonoppervlakte
- 60 m2
- Ligging
- In woonwijk
- Bouwjaar
- 1883
- Isolatie
- Dakisolatie, Muurisolatie, Dubbelglas
- Type verwarming
- CV ketel
- Onderhoud buiten
- Goed
- Onderhoud binnen
- Goed
- Voorzieningen
- TV kabel, Natuurlijke ventilatie
- Energieklasse
- C
- Parkeer faciliteiten
- Betaald parkeren, Parkeervergunningen
- Schuur/bergruimte
- 1
- Woning type
- Appartement
Plattegronden
Uitzicht op straat
Zoek de locatie
kom jij kijken?
Een bezoek vertelt het meest. Onze makelaars nemen graag de tijd voor een rustige rondleiding.
Contacteer ons nu

























