Amstelbeststraat 18, Amsterdam
VerkochtBeschrijving
PUUR* WONEN!
Deze fantastisch afgewerkte A+++ woning (123 m2) gelegen op de eerste en tweede verdieping biedt de unieke kans om riant te wonen in de stad in het populaire Amstelkwartier, met veel groen en water in de omgeving. Er zijn 3 slaapkamers, 2 badkamers en een riant terras op het zuidwesten. Door de beschutting van het terras kan er al vroeg in het jaar gebruik worden gemaakt. Het terras kijkt uit op een aantal privé tuinen.
*** See English Text below ***
Het complex, waar de woning zich in bevindt, is opgeleverd in de zomer van 2020 en is dus nog zo goed als nieuw. Er is een warmtepomp aanwezig die zorgt voor fijne binnentemperatuur. Koel in de zomer en warm in de winter zonder veel te stoken. Mede door de luxe afwerking en oog voor ieder detail is deze bijzondere high-end woning direct te betrekken!
Indeling
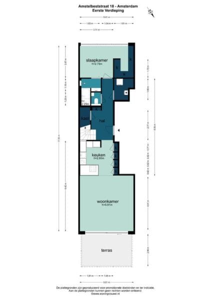
Eerste verdieping:
Via de gezamenlijke entree kun je zowel de trap als de lift naar boven nemen.
Aangekomen op de eerste verdieping van het gebouw, kom je via de voordeur binnen in de hal van de woning. De hal biedt toegang tot al de vertrekken. De grote raampartijen en het hoge plafond van 5,91 M vallen direct op als je de woonkamer inloopt. Dit zorgt voor een ruimtelijk gevoel met veel daglicht vanuit de zuid-west gelegen glazengevel. Via de schuifpui het riante terras te betreden (3 bij 5 meter). Deze is gelegen op het zuidwesten. Dit terras biedt een heerlijke plek om te ontspannen en te ontsnappen aan de drukte van de stad. De open woonkeuken is voorzien van een inductiekookplaat met afzuiging, een Quooker combi kraan en zowel een combi stoomoven als een combimagnetron.
De master bedroom bevindt zich aan de voorzijde van de woning en voelt door de grote raampartijen heerlijk ruim en licht aan. Ook is deze kamer voorzien van een walk in closet. In de luxe badkamer zit een inloopdouche, ligbad en wastafelmeubel. Ook bevindt zich op deze verdieping een separaat toilet en washok met aansluiting voor de wasmachine en droger. In de hal zit een ruime kast onder de trap. Op deze manier kom je altijd binnen in een opgeruimde hal!
Tweede verdieping:
Via de interne trap kom je op de tweede verdieping van de woning. Aan de achterzijde heb je een goede kantoor- of hobbyruimte met uitzicht over de woonkamer en de binnentuinen. Daarnaast zijn er twee slaapkamers aan de voorzijde, met op maat gemaakte ingebouwde kledingkasten, badkamer v.v. inloopdouche, wastafelmeubel en toilet.
Buitenruimte:
Naast het fijne terras op de eerste verdieping zit er ook een stuk privé tuin bij het appartement op de begane grond. De tuin beschikt over een schuur en overkapping, ligt op het zuidwesten en is via achterom te bereiken. Ook is er nog een gezamenlijk dakterras waar gebruik van gemaakt mag worden.
Parkeerplaats:
Het complex beschikt over 4 parkeerplekken die momenteel gebruikt worden door Lync deelauto’s. Deze auto’s zijn per km, per dag of zelfs per maand te huur. In het Amstelkwartier is het niet mogelijk om een parkeervergunning aan te vragen en er is alleen betaald parkeren mogelijk op straat. In het complex naast de woning is een ruime aanbod aan parkeerplekken te huur mocht u een eigen auto hebben.
Eigendomssituatie:
Het appartement is gelegen op eeuwigdurende erfpacht Amsterdam. De canon bedraagt ca. € 696,28 per maand met een 1-jaarlijkse canon indexering. Onder de meeste gevallen is de jaarlijkse canon fiscaal aftrekbaar.
Omgeving:
Naast het heerlijke terras en privé binnentuin is de woning gelegen in het populaire Amstelkwartier. De wijk is vrij nieuw. De ligging is ideaal als u houdt van drukte en het dynamische van de stad, maar ook behoefte heeft aan ruimte en rust. Om de hoek zijn diverse voorzieningen te vinden waaronder een kinderdagverblijf, een basisschool, buitenschoolse opvang, roeiverenigingen en meerdere hippe en gezellige horecagelegenheden. Op een paar minuten lopen heeft u toegang tot het van het openbaar vervoer netwerk van Amsterdam.
De ligging aan de rivier de Amstel en tevens park Somerlust is ideaal om te sporten, te wandelen of te recreëren en heeft twee speeltuinen voor de kleinere en grotere kinderen. De uitvalswegen richting Schiphol (A10/A4) en Utrecht (A2) zijn binnen no-time te bereiken en ook de verbinding met het openbaar vervoer is erg goed geregeld: metrostation Spaklerweg en treinstation Amstel bevinden zich op loop- en fietsafstand. Op de fiets ben je in enkele minuten in de Watergraafsmeer, de Rivierenbuurt of de Pijp, maar ook het centrum bereik je gemakkelijk met de fiets of de metro.
Bijzonderheden:
* 2-laags appartement op de eerste en tweede verdieping met veel natuurlijk lichtinval;
* Gebruiksoppervlakte van 123 m2;
* Bouwjaar 2020;
* Ruim wonen in de stad;
* Aanwezigheid van een lift;
* Vloerverwarming en koelcombinatie aanwezig;
* Luxe keuken en badkamer;
* Grote trapkast onder de trap;
* Drie slaapkamers;
* Zonnig terras van 15 m2 en privé tuin van 48 m2;
* Tuin via achterom te bereiken (niet direct vanuit de woning);
* Warmte terugwinning installatie;
* Zonnepanelen;
* Energielabel A +++;
* Gezonde en actieve VvE;
* Servicekosten € 209,- per maand;
* Oplevering in overleg.
Algemeen
- Plaats
- Amsterdam
- Status
- Verkocht
- Buurt
- Amstelkwartier Noord
- Aantal kamers
- 5
- Aantal slaapkamers
- 3
- Aantal badkamers
- 2
- Woonoppervlakte
- 123 m2
- Ligging
- Aan rustige weg, In woonwijk
- Bouwjaar
- 2020
- Isolatie
- Dubbelglas, Volledig geïsoleerd, HR glas
- Type verwarming
- Warmtepomp
- Onderhoud buiten
- Uitstekend
- Onderhoud binnen
- Uitstekend
- Voorzieningen
- Mechanische ventilatie, TV kabel, Lift, Zonnepanelen, Natuurlijke ventilatie
- Energieklasse
- A+++
- Soort dak
- Plat dak
- Parkeer faciliteiten
- Betaald parkeren, Parkeergarage
- Schuur/bergruimte
- 1
- Woning type
- Appartement









































