Balistraat 3-2, Amsterdam
BeschikbaarPrijs: € 475.000,-
Beschrijving
PUUR* Wonen
Dit heerlijke, lichte 4-kamer appartement (GBO 52 m²), gelegen op EIGEN GROND, bevindt zich op de tweede verdieping van een prachtig pand aan de rustige en groene Balistraat, om de hoek van de bruisende Javastraat in het hippe Amsterdam-Oost.
Het heeft een gerenoveerde badkamer, modern separaat toilet met fontein, nette open keuken voorzien van diverse inbouwapparatuur, Frans balkon aan de voorzijde en een tweede balkon aan de achterzijde.
Indeling
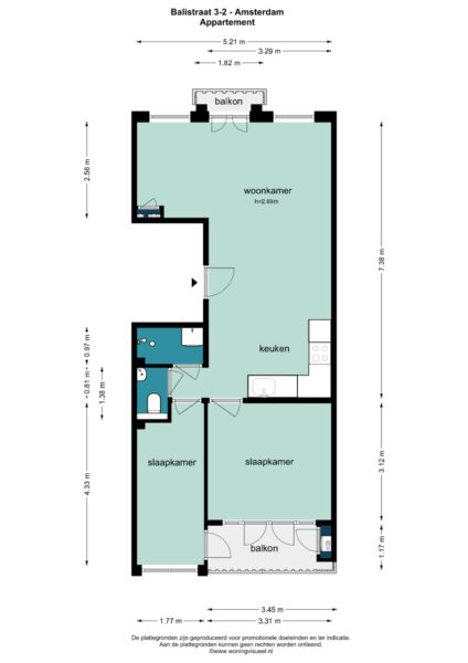
Via het verzorgde trappenhuis bereik je de entree van het appartement op de tweede verdieping.
Aan de voorzijde bevindt zich de lichte en ruime living met open keuken met drie grote ramen met Frans balkon, waar je heerlijk van de ochtendzon kunt genieten. De keuken is praktisch ingericht en voorzien van diverse inbouwapparatuur, waaronder een nieuwe afzuigkap (2023) en vaatwasser (2024).
Aan de achterzijde liggen de master bedroom en de tweede slaapkamer. De master bedroom beschikt over openslaande deuren naar het balkon, waar je in alle rust kunt genieten van de buitenlucht. De badkamer is modern afgewerkt en voorzien van een douche, wastafelmeubel en toilet. De woning is rondom voorzien van HR++ glas, beschikt over vloerisolatie, een vloer uit 2022 en is drie jaar geleden volledig geschilderd
Omgeving
De Balistraat 3-2 ligt in het hart van de populaire Indische Buurt in Amsterdam-Oost, een buurt die de perfecte mix biedt van levendigheid en rust. Op loopafstand vind je de gezellige Javastraat met haar vele winkels, cafés en restaurants. Voor ontspanning liggen het Flevopark en het Oosterpark om de hoek. De bereikbaarheid is uitstekend: station Muiderpoort bevindt zich op slechts enkele minuten lopen, en ook de Ring A10 is eenvoudig bereikbaar.
BIJZONDERHEDEN
* Woonoppervlakte circa 52 m² (NEN 2580-rapport beschikbaar)
* Gelegen op EIGEN GROND
* Nieuwe betonnen fundering uitgevoerd in 2006
* HR++ glas aan alle zijden van de woning
* Vloerisolatie aanwezig
* Vloer vernieuwd in 2022
* Woning volledig geschilderd in 2021
* Nieuwe afzuigkap in de keuken (2023)
* Nieuwe vaatwasser (2024)
* Balkon onderhoud (2025)
* Ruime slaapkamer met balkon aan de achterzijde
* Lichte woonkamer met Frans balkon aan de voorzijde
* Gelegen in een rustige, geliefde straat in de Indische Buurt
Kenmerken
- Koopprijs
- € 475.000,-
- Plaats
- Amsterdam
- Status
- Beschikbaar
- Buurt
- Noordwestkwadrant Indische buurt Zuid
- Aantal kamers
- 4
- Aantal slaapkamers
- 2
- Aantal badkamers
- 1
- Woonoppervlakte
- 52 m2
- Perceel oppervlakte
- 52 m2
- Ligging
- Aan rustige weg
- Bouwjaar
- 1902
- Isolatie
- Muurisolatie
- Type verwarming
- CV ketel
- Onderhoud buiten
- Goed tot uitstekend
- Onderhoud binnen
- Goed tot uitstekend
- Voorzieningen
- Mechanische ventilatie, TV kabel, Frans balkon
- Energieklasse
- C
- Soort dak
- Plat dak
- Parkeer faciliteiten
- Openbaar parkeren, Betaald parkeren
- Woning type
- Appartement
Plattegronden
Uitzicht op straat
Zoek de locatie
kom jij kijken?
Een bezoek vertelt het meest. Onze makelaars nemen graag de tijd voor een rustige rondleiding.
Contacteer ons nu






























