Belle van Zuylenlaan 17, Heemstede
VerkochtBeschrijving
Dit fijne gezinshuis met zonnige tuin staat aan het begin van de fijne woonwijk Merlenhoven op zeer korte afstand van het Groenendaalse bos. De woning is in ca. 1985 gebouwd en is netjes onderhouden. Het behoeft enige modernisering zodat de woning weer helemaal van deze tijd is. Op de parterre vind je een woonkamer met een gedateerde open keuken. Op de 1e verdieping zijn 3 slaapkamers en een badkamer en de 2e verdieping bestaat uit 1 kamer met was-/stookruimte. Heb je behoefte aan meer ruimte dan heb je mogelijkheden om aan de achterzijde over de volle breedte uit te bouwen, grote dakkapellen op de 1e verdieping en/of dakkapellen op de 2e verdieping te plaatsen.
Aan de voorzijde vind je een zonnige voortuin op het zuidwesten en aan de achterzijde heb je een zonnige tuin op het noordoosten met een vrijstaande stenen schuur en een achterom. In de woonwijk zijn goede parkeermogelijkheden zo kan je de auto voor de deur parkeren en aan de achterzijde is een grote parkeerplaats. De ligging van deze woning is voor het hele gezin ideaal. Zodra je de deur uitloopt wandel je zo het bos in. Hier vind je een kinderboerderij, een molen, een leuke speeltuin en een restaurant. Nagenoeg om de hoek liggen diverse sportfaciliteiten w.o. hockey- en voetbalvelden en een overdekt zwembad. De kinderen kunnen hier lekker buiten op straat spelen en dichtbij heb je een vijver waar ze in de zomer kunnen suppen of met een opblaasbootje kunnen varen. Wil je zelf even een tocht maken met de sup, in een bootje of op de schaats, via de Van Merlenvaart ben je zo op de Ringvaart (open vaarwater). Met enkele minuten fiets je naar de Valkenburgerlaan, de Raadhuisstraat en de Binnenweg waar je uitstekend terecht kunt voor je dagelijkse boodschappen, diverse boetieks vindt, kan eten in één van de vele eetgelegenheden of de wekelijkse woensdag markt kan bezoeken. Ook ben je met ca. 10 minuten in Haarlem. En niet te vergeten liggen zeer dichtbij een kinderopvang en een lager onderwijs. Maar ook overig lager-, middelbaar en hoger onderwijs, vele natuurgebieden, de grootste speeltuin van Europa Linneaushof, uitvalswegen en het NS-Station liggen op korte afstand.
Indeling:
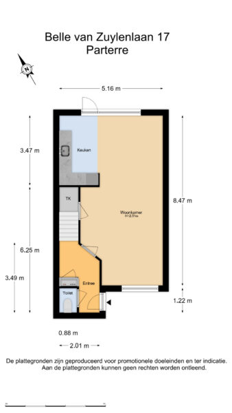
Parterre: entree, hal voorzien van toilet met fontein, lichte woonkamer met ruime trapkast en gedateerde open keuken met deur naar tuin, via hal trap naar….
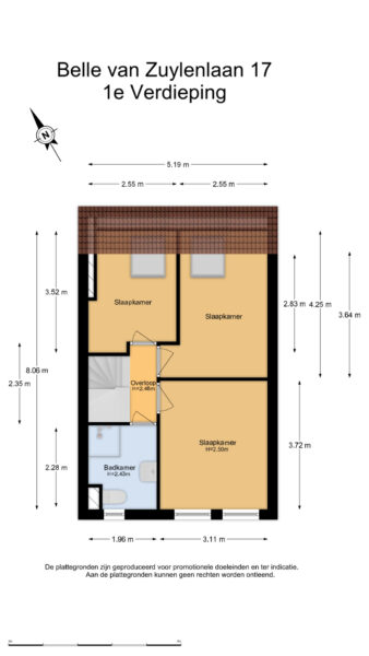
1e Verdieping: overloop, slaapkamer aan voorzijde, twee slaapkamers aan achterzijde met dakraam, nette badkamer met inloopdouche, wastafel en toilet, via overloop trap naar…..
2e Verdieping: ruime kamer (extra kamer mogelijk) met wastafel, cv-ketel, wasmachine aansluiting, dakraam en bergruimte
Bijzonderheden:
* Woonoppervlakte ca. 104 m2, inhoud ca. 350 m3 en 119 m2 eigen grond
* Fijn gezinshuis met 4 slaapkamers
* Parterre voorzien van laminaatvloer
* Uitbouwmogelijkheden
* Uitstekende mogelijkheid om dakkapellen te plaatsen
* Zonnige tuin met achterom
* Vrijstaande stenen schuur
* Voor indeling en maatvoering zie plattegronden
* Oplevering in overleg
Algemeen
- Plaats
- Heemstede
- Status
- Verkocht
- Buurt
- Oude Dorp, Indische buurt en omgeving
- Aantal kamers
- 5
- Aantal slaapkamers
- 4
- Aantal badkamers
- 1
- Woonoppervlakte
- 104 m2
- Perceel oppervlakte
- 119 m2
- Ligging
- Aan rustige weg, In woonwijk
- Bouwjaar
- 1985
- Isolatie
- Dakisolatie, Muurisolatie, Vloerisolatie, Dubbelglas
- Type verwarming
- CV ketel
- Onderhoud buiten
- Goed
- Onderhoud binnen
- Goed
- Voorzieningen
- TV kabel
- Energieklasse
- B
- Soort dak
- Zadeldak
- Parkeer faciliteiten
- Openbaar parkeren
- Schuur/bergruimte
- 1
- Woning type
- Woonhuis

































