Berckheydestraat 5ZW, Haarlem
Verkocht onder voorbehoudPrijs: € 325.000,-
Beschrijving
PUUR* wonen: in deze 2-kamer benedenwoning met ruime woonkamer en diepe (ca. 10 meter) achtertuin op het westen met achterom. De woning ligt in een rustige zijstraat van de Schotersingel, vlakbij de gezellige Cronjé-winkelstraat. Het station, het centrum en de winkels en koffiebars van het Kleverpark zijn op loopafstand. De woning dient gemoderniseerd te worden en biedt de mogelijkheid om uit te bouwen.
Locatie
De woning heeft een perfecte ligging: de levendige Cronjé-winkelstraat, diverse horecagelegenheden en sportclubs bevinden zich op loopafstand. Ook het bruisende centrum van Haarlem, de Schotersingel, het sfeervolle Kleverpark, het centraal station en meerdere busverbindingen zijn snel te bereiken, zowel te voet als per fiets. Via het nabijgelegen Kleverpark fiets je bovendien zo naar het Bloemendaalse strand. Dankzij de centrale ligging – tussen de uitvalswegen (A9), de randweg en Bloemendaal aan Zee (slechts 25 minuten fietsen) – is deze woonomgeving bijzonder geliefd.
Goed om te weten:
* Woonoppervlakte ca. 49 m² (zie meetrapport)
* Geheel naar eigen inzicht te moderniseren
* Diepe tuin op het westen met achterom
* Mogelijkheid voor uitbouw
* Fundering op staal
* Op loopafstand van de Cronjéstraat, de gezellige binnenstad en het station
* Diverse winkels om de hoek, scholen, sportvoorzieningen en openbaar vervoer
* Centrale ligging tussen verschillende uitvalswegen (A9), randweg en Station Haarlem
* Oplevering in overleg (kan snel)
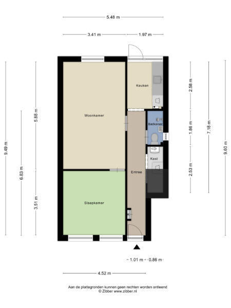
Indeling;
Begane grond:
Entree/hal met meterkast en toegang tot de badkamer, voorzien van toilet en douche. De woonkamer bevindt zich aan de achterzijde van de woning en biedt doorgang naar de slaapkamer. De keuken, eveneens aan de achterzijde gesitueerd, beschikt over een deur naar de zonnige tuin op het westen met achterom.
*ENGLISH TEXT*
PURE* living: in this 2-room ground floor apartment with spacious living room and deep (approx. 10 meters) west-facing backyard with back entrance. The property is located in a quiet side street of the Schotersingel, close to the lively Cronjé shopping street. The train station, city center, and shops and coffee bars of the Kleverpark are within walking distance. The property needs to be modernized and offers the possibility of extension.
Location
The property is perfectly located: the lively Cronjé shopping street, various restaurants and sports clubs are within walking distance. The bustling center of Haarlem, the Schotersingel, the charming Kleverpark, the central station, and several bus connections are also within easy reach, both on foot and by bike. You can also cycle to Bloemendaal beach via the nearby Kleverpark. Thanks to its central location—between the highways (A9), the ring road, and Bloemendaal aan Zee (only a 25-minute bike ride)—this residential area is particularly popular.
Good to know:
* Living area approx. 49 m² (see measurement report)
* Can be modernized entirely to your own liking
* Deep west-facing garden with back entrance
* Possibility for extension
* Steel foundation
* Within walking distance of Cronjéstraat, the lively city center, and the train station
* Various shops around the corner, schools, sports facilities, and public transportation
* Central location between various highways (A9), the ring road, and Haarlem train station
* Delivery in consultation (can be done quickly)
Layout;
Ground floor:
Entrance/hall with meter cupboard and access to the bathroom, equipped with toilet and shower. The living room is located at the rear of the house and provides access to the bedroom. The kitchen, also located at the rear, has a door to the sunny west-facing garden with back entrance.
Kenmerken
- Koopprijs
- € 325.000,-
- Plaats
- Haarlem
- Status
- Verkocht onder voorbehoud
- Buurt
- Frans Halsbuurt
- Aantal kamers
- 2
- Aantal slaapkamers
- 1
- Aantal badkamers
- 1
- Woonoppervlakte
- 49 m2
- Ligging
- Aan rustige weg, In woonwijk, Open ligging
- Bouwjaar
- 1900
- Isolatie
- Gedeeltelijk dubbelglas
- Type verwarming
- CV ketel
- Onderhoud buiten
- Redelijk
- Onderhoud binnen
- Redelijk
- Voorzieningen
- Mechanische ventilatie, Natuurlijke ventilatie
- Energieklasse
- E
- Soort dak
- Plat dak
- Parkeer faciliteiten
- Betaald parkeren, Parkeervergunningen
- Woning type
- Appartement
Plattegronden
Uitzicht op straat
Zoek de locatie
kom jij kijken?
Een bezoek vertelt het meest. Onze makelaars nemen graag de tijd voor een rustige rondleiding.
Contacteer ons nu











































