Bik- en Arnoldkade 20R, IJmuiden
BeschikbaarPrijs: € 1.195.000,-
Beschrijving
Nieuw wonen met een fantastisch panoramisch uitzicht
Met een magnifiek vrij uitzicht vind je in een zeer recent gebouwd appartementencomplex dit riante penthouse voorzien van een groot zonnig dakterras en 2 eigen parkeerplaatsen. Vanuit de vele en grote raampartijen heb je een geweldig uitzicht grotendeels over IJmuiden, de zee, de havens met vele vissersboten en o.a. de ferry naar Engeland, de sluizen met het Noordzeekanaal, de duinen naar Zandvoort en verder. Het appartement verdeeld over 2 woonlagen heeft een woonoppervlakte van maar liefst 186 m2 en is voorzien van grote raampartijen waardoor het binnen heerlijk licht is en je vanuit elk vertrek een uniek uitzicht hebt. Het bestaat o.a. uit een riante living met toegang naar het terras, een spiksplinternieuwe woonkeuken, 3 slaapkamers, 2 badkamers en 2 separate toiletten. Indien gewenst is er de ruimte om eventueel een interne lift in het appartement te plaatsen. Het grote zonnige dakterras (ca. 57 m2) met eveneens een geweldig panoramisch uitzicht is voorzien van elektra en een buitenkraan zodat er een buitenkeuken geplaatst kan worden. Het terras is op het noordwesten gesitueerd waardoor je volop kan genieten van de middag- en avondzon totdat hij onder gaat.
Het nieuwbouw complex ligt in de kop van de haven en is voorzien van een lift, een afgesloten entree met videofooninstallatie en een gemeenschappelijke fietsenberging. Aan de achterzijde van het complex ligt een afgesloten terrein met 2 eigen parkeerplaatsen. Dichtbij vind je diverse voorzieningen w.o. winkelcentrum Zeewijkpassage, winkelstraat de Lange Nieuwstraat, de Stadsschouwburg en diverse sportfaciliteiten w.o. sporthal Zeewijk, hockeyclub Strawberries, Voetbalclub Telstar en zwembad De Herenduinen. Op de fiets ben je zo in de duinen of op het strand en zodra je de deur uitloopt wandel je binnen enkele minuten naar de afslag voor verse vis. Ook diverse uitvalswegen naar Alkmaar, Amsterdam en Haarlem liggen zeer dichtbij.
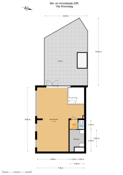
Indeling:
Parterre: brievenbussen en bellentableau met videofooninstallatie, afgesloten gemeenschappelijke hal met trappenhuis, lift en toegang naar gemeenschappelijke fietsenberging
9e Woonlaag: entree appartement, hal met garderobenis en modern zwevend toilet met fontein, ruime spiksplinternieuwe woonkeuken en voorzien van grote raampartij, royale tussenhal voorzien van kast met technische installaties, ouderslaapkamer met groot raampartij, extra zijraam en tevens toegang naar moderne badkamer voorzien van inloopdouche met handdouche en rainshower, meubel met dubbele wastafel en zwevend toilet, 2e slaapkamer met grote raampartijen, 3e slaapkamer met toegang naar eigen moderne badkamer voorzien van wastafelmeubel en inloopdouche met handdouche en rainshower, via woonkeuken trap naar…..
10e Woonlaag: zeer riante living met grote raampartijen en openslaande deuren naar dakterras, tussenhal met toegang naar modern zwevend toilet met fontein en inpandige berging/technische ruimte met wasmachine aansluiting
Bijzonderheden:
* Woonoppervlakte ca. 186 m2 en inhoud ca. 625 m3
* Uniek vrij uitzicht
* Zeer licht
* Spiksplinternieuwe Woonkeuken
* Geheel voorzien van vloerverwarming
* Vloerverwarming / verwarming per vertrek regelbaar
* Voorzien van warmte terugwininstallatie en luchtcirculatiesysteem
* Riant zonnig dakterras
* 2 Eigen parkeerplaatsen op afgesloten terrein
* Openbaar parkeren tevens mogelijk
* Lift aanwezig en mogelijkheid voor plaatsen interne lift
* Videofooninstallatie bedienbaar op beide verdiepingen
* Zonnepanelen aanwezig t.b.v. gemeenschappelijke ruimtes complex
* Servicekosten thans € 415,63 per maand plus de kosten voor het voorschot stookkosten (thans € 80,=)
* Voor indeling en maatvoering zie plattegronden
* Een uitgebreide brochure kunt u downloaden via onze site
* Oplevering in overleg
Kenmerken
- Koopprijs
- € 1.195.000,-
- Plaats
- IJmuiden
- Status
- Beschikbaar
- Buurt
- Oud-IJmuiden
- Aantal kamers
- 5
- Aantal slaapkamers
- 3
- Aantal badkamers
- 2
- Woonoppervlakte
- 186 m2
- Ligging
- Aan rustige weg, In woonwijk, Vrij uitzicht, Zeezicht
- Bouwjaar
- 2022
- Isolatie
- Volledig geïsoleerd
- Type verwarming
- Vloerverwarming geheel, Electrische verwarming, Warmtepomp, Warmte terugwininstallatie
- Onderhoud buiten
- Uitstekend
- Onderhoud binnen
- Uitstekend
- Voorzieningen
- Mechanische ventilatie, TV kabel, Lift
- Energieklasse
- A++
- Parkeer faciliteiten
- Op eigen terrein, Op afgesloten terrein
- Schuur/bergruimte
- 1
- Woning type
- Appartement
Plattegronden
Uitzicht op straat
Zoek de locatie
kom jij kijken?
Een bezoek vertelt het meest. Onze makelaars nemen graag de tijd voor een rustige rondleiding.
Contacteer ons nu

































































