Bloemhofstraat 16H, Haarlem
VerkochtBeschrijving
Starters opgelet: PUUR* wonen in een zeer net onderhouden tweekamerappartement op de bovenste woonlaag, met zonnig balkon op het zuiden en veel lichtinval. Dit appartement van circa 52 m² in 1983 gebouwd complex is in 2019 volledig gemoderniseerd. De lichte woonkamer met open keuken, de ruime slaapkamer en de praktische indeling maken dit een comfortabele stadswoning waar je zó in kunt. Dankzij de ligging op de bovenste etage geniet je van extra privacy en een prettige lichtbeleving met een separate berging op de begane grond.
De Bloemhofstraat gelegen in het Rozenprieel, een karaktervolle en stedelijke woonwijk in Haarlem-Zuid op korte afstand van het historische centrum. Op loopafstand bevinden zich diverse buurtwinkels, supermarkten en speciaalzaken, evenals horeca in en rond het centrum. Ook de Haarlemmerhout, sportvoorzieningen en scholen liggen nabij. Station Haarlem is binnen enkele minuten per fiets bereikbaar, uitvalswegen richting Schiphol, Amsterdam, Utrecht en Den Haag zijn snel en eenvoudig te bereiken.
Goed om te weten:
* Woonoppervlakte circa 52 m² (zie meetrapport)
* Ideaal en comfortabel 2-kamer (starters)appartement
* Vrijstelling van overdrachtsbelasting voor starters mogelijk (indien voldaan aan kwalificaties)
* Gelegen op de derde verdieping ( geen bovenburen )
* Balkon op het zuiden
* In 2019 geheel gemoderniseerd
* Actieve / gezonde VvE, servicekosten € 186 p/mnd
* Voorschot stookkosten € 45,56 p/mnd
* Separate stenen berging van circa 5 m²
* Rustig gelegen maar toch ‘om de hoek’ van het bruisende centrum
* Gunstig gelegen t.o.v. diverse uitvalswegen, openbaar vervoer en op fietsafstand van duin en strand
* Aanvaarding in overleg
Indeling:
Begane grond
Via de zeer nette, afgesloten portiek met bellentableau en brievenbussen bereik je het trappenhuis. Op de begane grond bevindt zich tevens de separate stenen berging van circa 5 m², ideaal voor fietsen en extra opslag.
Derde verdieping
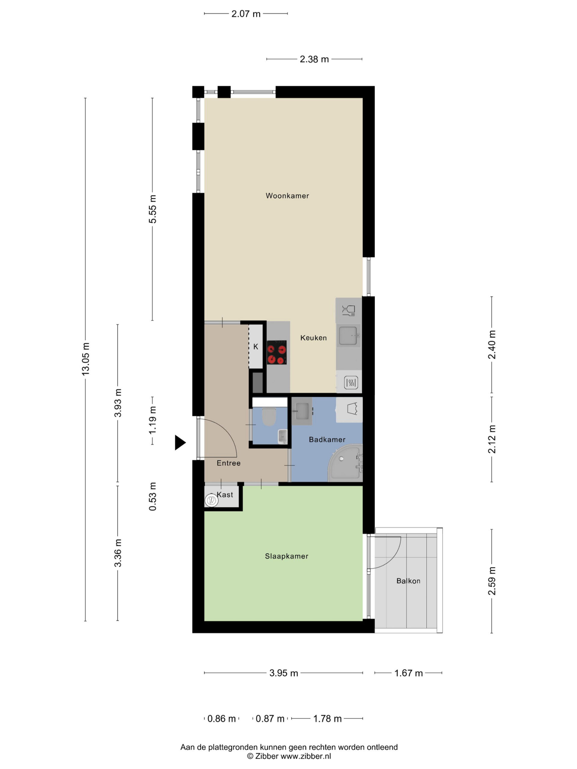
Entree van het appartement via de hal, die toegang geeft tot alle vertrekken. De lichte woonkamer is gelegen aan de voorzijde, waardoor er veel lichtinval en privacy is. De open keuken sluit aan op de woonkamer en vormt een prettige, centrale leefruimte.
De slaapkamer is ruim van opzet en biedt toegang tot het zonnige balkon op het zuiden. De badkamer is voorzien van een douche, wastafelmeubel en een praktische opstelling voor wasmachine en droger.
Bekijk de plattegronden voor de exacte indeling en maatvoering. Een uitgebreide brochure is te downloaden via onze eigen website.
*ENGLISH TEXT*
Attention first-time buyers: PUUR* living in a very well-maintained two-room apartment on the top floor, with a sunny south-facing balcony and lots of natural light. This apartment of approximately 52 m² in a complex built in 1983 was completely modernized in 2019. The bright living room with open kitchen, the spacious bedroom, and the practical layout make this a comfortable city home that is ready to move into. Thanks to its location on the top floor, you can enjoy extra privacy and a pleasant light experience with a separate storage room on the ground floor.
The Bloemhofstraat is located in the Rozenprieel, a characterful and urban residential area in Haarlem-Zuid, a short distance from the historic center. Various neighborhood shops, supermarkets, and specialty stores are within walking distance, as are restaurants and cafes in and around the center. The Haarlemmerhout, sports facilities, and schools are also nearby. Haarlem station is just a few minutes away by bike, and the roads to Schiphol, Amsterdam, Utrecht, and The Hague are quick and easy to reach.
Good to know:
* Living area approx. 52 m² (see measurement report)
* Ideal and comfortable 2-room (starter) apartment
* Exemption from transfer tax for starters possible (if qualifications are met)
* Located on the third floor (no upstairs neighbors)
* South-facing balcony
* Completely modernized in 2019
* Active/healthy owners’ association, service costs €186 per month
* Advance heating costs €45.56 per month
* Separate stone storage room of approximately 5 m²
* Quiet location, yet ‘around the corner’ from the bustling center
* Conveniently located for various roads, public transport, and within cycling distance of the dunes and beach
* Acceptance in consultation
Layout:
Ground floor
The staircase is accessed via the very neat, enclosed porch with doorbells and mailboxes. The separate stone storage room of approximately 5 m² is also located on the ground floor, ideal for bicycles and extra storage.
Third floor
Entrance to the apartment via the hall, which provides access to all rooms. The bright living room is located at the front, providing plenty of light and privacy. The open kitchen connects to the living room and forms a pleasant, central living space.
The bedroom is spacious and provides access to the sunny south-facing balcony. The bathroom has a shower, washbasin, and a practical layout for a washing machine and dryer.
See the floor plans for the exact layout and dimensions. A detailed brochure can be downloaded from our website.
Algemeen
- Plaats
- Haarlem
- Status
- Verkocht
- Buurt
- Rozenprieel-zuid
- Aantal kamers
- 2
- Aantal slaapkamers
- 1
- Aantal badkamers
- 1
- Woonoppervlakte
- 52 m2
- Ligging
- Aan rustige weg, In centrum, Vrij uitzicht
- Bouwjaar
- 1983
- Isolatie
- Dakisolatie, Muurisolatie, Dubbelglas
- Type verwarming
- Blokverwarming
- Onderhoud buiten
- Goed
- Onderhoud binnen
- Goed tot uitstekend
- Voorzieningen
- Mechanische ventilatie, TV kabel, Glasvezel kabel, Balansventilatie, Natuurlijke ventilatie
- Energieklasse
- E
- Soort dak
- Plat dak
- Parkeer faciliteiten
- Betaald parkeren, Parkeervergunningen
- Schuur/bergruimte
- 1
- Woning type
- Appartement






























