Boogstraat 20, Haarlem
VerkochtBeschrijving
PUUR* wonen aan de Boogstraat 20. Kluswoning met potentie in een gezellige woonbuurt.
Ben jij op zoek naar een woning die je helemaal naar eigen smaak kunt verbouwen en verduurzamen? Dan is deze lichte kluswoning aan de Boogstraat 20 precies wat je zoekt! Met een woonoppervlak van ca. 71 m2, 3 slaapkamers, patiotuin én dakterras biedt deze woning volop mogelijkheden en dat in een fijne, rustige buurt met alles dichtbij.
Wat maakt dit een kansrijke woning?
– Kluswoning met potentie: De woning is toe aan een opfrisbeurt, maar biedt de kans om er echt jouw thuis van te maken. Bovendien bestaat de mogelijkheid om een tweede verdieping op te bouwen, waarmee het woonoppervlak flink vergroot kan worden.
– Buitenruimte: Met een patiotuin op de begane grond en een dakterras op de eerste verdieping is er altijd een plek om buiten te zitten.
– Toplocatie: Gelegen in een rustige straat met volop voorzieningen in de buurt. Op 6 minuten fietsen van station Heemstede-Aerdenhout en in 10 minuten sta je op de Grote Markt in het centrum van Haarlem. Natuur, bos en duinen zijn ook vlakbij.
Zin om jouw droomwoning te creëren? Grijp deze kans en maak van Boogstraat 20 jouw eigen fijne stadswoning!
Goed om te weten:
* Leuke kluswoning met uitbreidingsmogelijkheden (opbouw)
* Woonoppervlak ca. 71 m2 (zie meetrapport)
* Thans 3 slaapkamers en veel bergruimte
* Patiotuin en dakterras
* Fijne woonomgeving met OV, winkels en natuur in de buurt
* Aanvaarding in overleg
* Verkoop onder voorbehoud verkrijgen verklaring van waardeloosheid
* Notaris keuze verkoper, Batenburg notaris
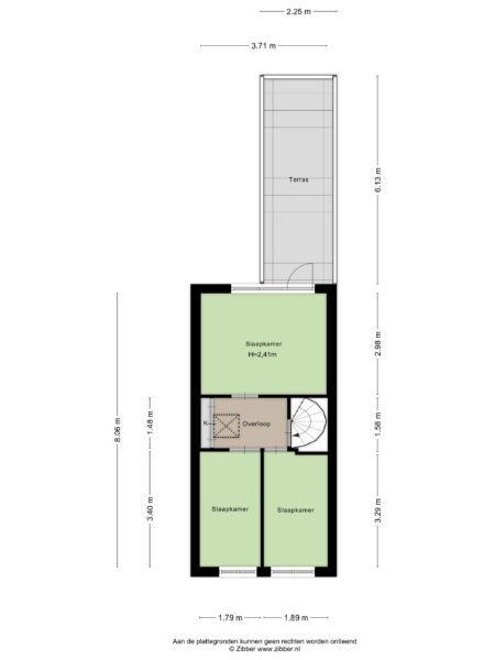
* Zie voor de indeling en de maatvoering de plattegronden
Indeling:
Begane grond: entree/gang. Lichte woonkamer met hoog plafond en open spiltrap. Dichte keuken met deur naar de patiotuin en doorloop naar de badkamer met ligbad / wastafelmeubel en toilet. Vanuit de tuin is de ruime berging bereikbaar met aansluiting voor de wasapparatuur en de cv-ketel.
1e Verdieping: overloop, 2 slaapkamers aan de voorzijde en ruime slaapkamer aan de achterzijde met deur naar het dakterras.
Vliering: via vlizotrap bereikbare vliering met veel bergruimte.
*ENGLISH*
PUUR* living at Boogstraat 20. Do-it-yourself home with potential in a pleasant residential area.
Are you looking for a home that you can renovate and make sustainable entirely to your own taste? Then this bright do-it-yourself home at Boogstraat 20 is exactly what you are looking for! With a living area of ??approx. 71 m2, 3 bedrooms, patio garden and roof terrace, this home offers plenty of possibilities in a nice, quiet neighbourhood with everything close by.
What makes this a promising home?
– Do-it-yourself home with potential: The home is in need of a makeover, but offers the opportunity to really make it your home. In addition, there is the possibility of building a second floor, which can significantly increase the living area.
– Outdoor space: With a patio garden on the ground floor and a roof terrace on the first floor, there is always a place to sit outside.
– Top location: Located in a quiet street with plenty of amenities nearby. A 6-minute bike ride from Heemstede-Aerdenhout station and in 10 minutes you are at the Grote Markt in the center of Haarlem. Nature, forest and dunes are also nearby.
Want to create your dream home? Seize this opportunity and make Boogstraat 20 your own nice city home!
Good to know:
* Nice DIY home with expansion possibilities (construction)
* Living area approx. 71 m2 (see measurement report)
* Currently 3 bedrooms and lots of storage space
* Patio garden and roof terrace
* Nice living environment with public transport, shops and nature nearby
* Acceptance in consultation
* Sale under reservation of obtaining declaration of worthlessness
* Notary’s choice of seller, Batenburg Notarissen
* See the floor plans for the layout and dimensions
Layout:
Ground floor: entrance/hallway. Bright living room with high ceiling and open spiral staircase. Closed kitchen with door to the patio garden and passage to the bathroom with bath/washbasin and toilet. The spacious storage room is accessible from the garden with connection for the washing equipment and the central heating boiler.
1st Floor: landing, 2 bedrooms at the front and spacious bedroom at the rear with door to the roof terrace.
Loft: loft accessible via loft ladder with lots of storage space.
Algemeen
- Plaats
- Haarlem
- Status
- Verkocht
- Buurt
- Natuurkundigenbuurt-oost
- Aantal kamers
- 4
- Aantal slaapkamers
- 3
- Aantal badkamers
- 1
- Woonoppervlakte
- 71 m2
- Perceel oppervlakte
- 68 m2
- Ligging
- Aan rustige weg, In woonwijk
- Bouwjaar
- 1903
- Isolatie
- Grotendeels dubbelglas
- Type verwarming
- CV ketel
- Onderhoud buiten
- Redelijk
- Onderhoud binnen
- Matig tot redelijk
- Voorzieningen
- Rookkanaal, Glasvezel kabel
- Energieklasse
- G
- Soort dak
- Samengesteld dak
- Parkeer faciliteiten
- Openbaar parkeren
- Schuur/bergruimte
- 1
- Woning type
- Woonhuis
































