Borneostraat 25-3, Amsterdam
Verkocht onder voorbehoudPrijs: € 535.000,-
Beschrijving
PUUR* Wonen!
Welkom bij dit zeer lichte en goed ingedeelde appartement op de Borneostraat! Dit fijne huis beschikt over een ruime woonkamer, separate keuken, zeer riante slaapkamer en een balkon aan de achterzijde van de woning. Daarnaast beschikt de woning over een zeer ruime zolderberging. Gelegen in de bruisende Indische Buurt in Amsterdam Oost waar u tal van gezellige horecagelegenheden en groene parken in de nabije omgeving hebt. Stap de deur uit en ontdek wat deze fijne, diverse buurt te bieden heeft. Nieuwsgierig geworden? Neem contact met ons op voor een bezichtiging!
INDELING
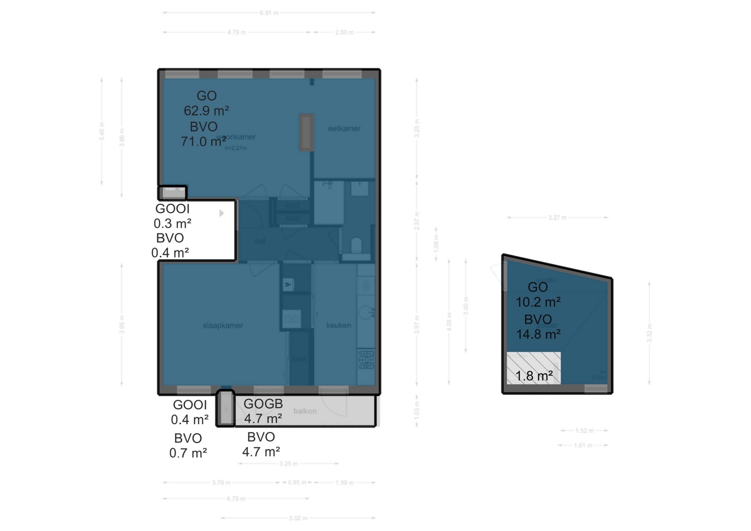
Via het gezamenlijke trappenhuis bereikt u de eigen voordeur op de derde verdieping. U komt allereerst binnen in de hal, die toegang biedt tot alle vertrekken en voorzien is van een praktische garderobekast. De woonkamer is aan de voorzijde gelegen en beschikt over voldoende plek voor een gezellige zit- en eethoek. De woonkamer is zeer licht door de grote raampartijen. De keuken is aan de achterzijde van de woning gelegen en is uitgerust met diverse inbouwapparatuur, waaronder een koel-vriescombinatie, oven, gasfornuis met 4 pitten en afzuigkap. Ook vindt u hier een praktische inbouwkast met daarin de aansluiting voor de wasmachine en droger. Via de keuken heeft u toegang tot het grote balkon.
De zeer royale slaapkamer is ook aan de rustige achterzijde gelegen. De kamer heeft meer dan genoeg plek voor een groot tweepersoonsbed en heeft een handige inbouwkast. Ook kan er gemakkelijk een tweede slaapkamer gemaakt worden bij de huidige eethoek. De badkamer is voorzien van een douche, wastafel en toilet. Bij het appartement hoort ook nog een zeer ruime berging van circa 11m2 op de vierde etage.
OMGEVING EN BEREIKBAARHEID
Deze woning bevindt zich in het levendige Amsterdam-Oost, in de karaktervolle Indische Buurt. Deze wijk staat bekend om haar bruisende karakter, met een gevarieerd aanbod aan eetgelegenheden en gezellige cafés (Het Badhuis, Bar Basquiat, le French Café). Voor uw dagelijkse boodschappen kunt u terecht bij meerdere supermarkten en speciaalzaken in de nabijgelegen Javastraat, evenals op de levendige Dappermarkt die dagelijks geopend is. Op loopafstand bevinden zich zowel het Flevopark als het Oosterpark, waar u kunt genieten van rust en groen. Daarnaast zijn er in de omgeving tal van sportfaciliteiten, basisscholen en kinderopvangcentra beschikbaar. Voor een avondje uit kunt u naar Studio/K of het Kriterion filmhuis. Daarnaast ligt de woning ook op 15 minuten fietsen van het centrum.
De bereikbaarheid met het openbaar vervoer is uitstekend: diverse tram- en buslijnen stoppen op korte afstand, en ook het Muiderpoortstation is eenvoudig te voet bereikbaar. De Borneostraat biedt voldoende parkeermogelijkheden, en dankzij de gunstige ligging zijn de belangrijkste uitvalswegen, waaronder de ringweg A10, vlot te bereiken.
BIJZONDERHEDEN
– 63m2 (NEN meetrapport aanwezig);
– Zeer lichte en goed onderhouden woning;
– Royale slaapkamer aan de rustige achterzijde;
– Breed balkon;
– Grote berging op de vierde verdieping (11m2);
– Energielabel C;
– Nieuwe CV-ketel (2024);
– Actieve en gezonde VVE;
– Oplevering in overleg.
Kenmerken
- Koopprijs
- € 535.000,-
- Plaats
- Amsterdam
- Status
- Verkocht onder voorbehoud
- Buurt
- Noordwestkwadrant Indische buurt Noord
- Aantal kamers
- 3
- Aantal slaapkamers
- 2
- Aantal badkamers
- 1
- Woonoppervlakte
- 63 m2
- Ligging
- In woonwijk
- Bouwjaar
- 1914
- Isolatie
- Dakisolatie, Muurisolatie, Dubbelglas
- Type verwarming
- CV ketel
- Onderhoud buiten
- Goed
- Onderhoud binnen
- Goed
- Voorzieningen
- Mechanische ventilatie, TV kabel, Natuurlijke ventilatie
- Energieklasse
- C
- Parkeer faciliteiten
- Betaald parkeren, Parkeervergunningen
- Schuur/bergruimte
- 1
- Woning type
- Appartement
Plattegronden
Uitzicht op straat
Zoek de locatie
kom jij kijken?
Een bezoek vertelt het meest. Onze makelaars nemen graag de tijd voor een rustige rondleiding.
Contacteer ons nu































