Brouwersvaart 118B, Haarlem
VerkochtBeschrijving
PUUR* wonen aan de sfeervolle Brouwersvaart in de populaire Leidsebuurt. Op de bovenste etage van dit historische pand bevindt zich dit karakteristieke appartement uit 1901 een unieke kans om te wonen in het hart van Haarlem. Met een woonoppervlakte van circa 38 m² is deze woning ideaal voor starters of als pied-à-terre.
Goed om te weten:
* 38m2 woonoppervlak
* Ruime badkamer (onlangs opnieuw gekit)
* Mooi daglicht door hoekligging en vele ramen.
* Gelegen aan het water
* Op loopafstand van het centrum van Haarlem
* Ideaal voor starters of als pied-à-terre
Indeling:
Begane grond; entree met meterkast en opgang naar voordeur.
Eerste verdieping; voordeur naar het appartement op de tweede verdieping.
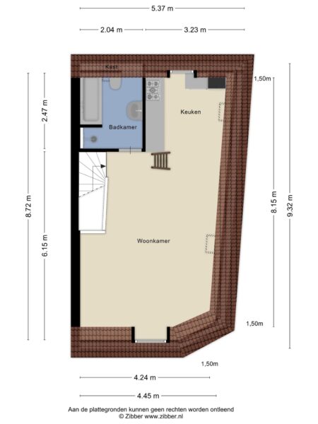
Tweede verdieping; woonkamer met links de badkamer met ligbad/douche, toilet, wasmachine aansluiting, wasbak, opbergkast en handdoekradiator. Open keuken met koelkast, combi-oven, afzuigkap en 4-pits gasfornuis. Vaste trap naar de vide (slaapgedeelte).
Locatie:
De locatie ligt zeer centraal: je bent op loopafstand van de oude binnenstad, de winkels van de Leidsebuurt en je fiets zo naar het Haarlem station. Ook het strand en de duinen zijn goed bereikbaar per fiets. De Brouwersvaart combineert het beste van stads wonen met een vleugje rust en historie.
*ENGLISH TEXT*
PUUR* living on the attractive Brouwersvaart in the popular Leidsebuurt. On the top floor of this historic building is this characteristic flat from 1901 a unique opportunity to live in the heart of Haarlem. With a living area of approximately 38 m², this property is ideal for starters or as a pied-à-terre.
Good to know:
* 38m2 living space
* Spacious bathroom (recently re-tiled)
* Nice daylight through corner location and many windows.
* Located at the waterfront
* Within walking distance of Haarlem city centre
* Ideal for starters or as pied-à-terre
Layout:
Ground floor; entrance with meter cupboard and entrance to front door.
First floor; front door to the flat on the second floor.
Second floor; living room with on the left the bathroom with bath/shower, toilet, washing machine connection, sink, storage cupboard and towel radiator. Open kitchen with fridge, combi-oven, extractor and 4-burner gas hob. Fixed stairs to the loft (sleeping area).
Location:
The location is very central: you are within walking distance of the old city centre, the shops of the Leidsebuurt and you cycle to Haarlem train station in no time. The beach and dunes are also easily accessible by bike. De Brouwersvaart combines the best of city living with a touch of tranquillity and history.
Algemeen
- Plaats
- Haarlem
- Status
- Verkocht
- Buurt
- Leidsebuurt-oost
- Aantal kamers
- 1
- Aantal slaapkamers
- 1
- Aantal badkamers
- 1
- Woonoppervlakte
- 39 m2
- Ligging
- Aan water, Aan rustige weg, In centrum, Aan vaarwater
- Isolatie
- Dakisolatie, Dubbelglas
- Type verwarming
- CV ketel
- Onderhoud buiten
- Redelijk tot goed
- Onderhoud binnen
- Redelijk tot goed
- Voorzieningen
- TV kabel, Natuurlijke ventilatie
- Energieklasse
- C
- Soort dak
- Tentdak
- Parkeer faciliteiten
- Betaald parkeren, Parkeervergunningen
- Woning type
- Appartement























