Burgemeester van Alphenstraat 59F 13, Zandvoort
BeschikbaarPrijs: € 375.000,-
Beschrijving
Met een fantastisch vrij uitzicht over Zandvoort staat om de hoek van de boulevard dit kleinschalige appartementencomplex genaamd “De Duinroos”. In het complex welke voorzien is van een lift bevindt zich op de 4e verdieping dit royale 3 kamer hoekappartement. Het appartement bestaat o.a. uit een lichte woonkamer met een geweldig vrij uitzicht, een keuken, 2 slaapkamers, een badkamer, een balkon op het zuidoosten en een eigen berging op de parterre. Aan de voorzijde van het complex bevind zich een afgesloten parkeerplaats.
Zodra je het complex verlaat staat je binnen 2 minuten met je voeten in de branding, zit je zo op het terras van één van de vele leuke strandtenten, lig je op het strand of op je surfplank in de zee of sta je met bijv. zonsopkomst te suppen. Ook ben je zo in de duinen of in het gezellige centrum van Zandvoort met diverse boetieks, restaurants, uitgaansgelegenheden en supermarkten. Het NS-Station met directe verbinding naar Haarlem en diverse busverbindingen liggen op korte afstand evenals vele mooie natuurgebieden, scholen, sportfaciliteiten, het F1 circuit en uitvalswegen.
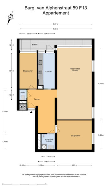
Indeling:
Parterre: entree, afgesloten hal met trappenhuis, lift en toegang naar berging
4e Verdieping: gemeenschappelijke hal, entree appartement, hal met houten vloer en toilet, lichte woonkamer met uniek vrij uitzicht, extra zijraam en houten vloer, dichte nette keuken met diverse inbouwapparatuur en deur naar zonnig balkon op het zuidoosten, 2 slaapkamers, eenvoudige nette badkamer met douche, wastafel, wasmachine aansluiting en handdoekradiator
Bijzonderheden:
* Woonoppervlakte ca. 83 m2 en inhoud ca. 271 m3
* Vrij uitzicht
* Ruim 3 kamer appartement
* Modernisering gewenst
* Lift aanwezig
* Parkeren op afgesloten terrein
* Eigen berging in onderbouw
* Servicekosten thans € 373,- per maand inclusief voorschot stookkosten
* Voor indeling en maatvoering zie plattegronden
* Oplevering in overleg
Kenmerken
- Koopprijs
- € 375.000,-
- Plaats
- Zandvoort
- Status
- Beschikbaar
- Buurt
- Boulevard Noord
- Aantal kamers
- 3
- Aantal slaapkamers
- 2
- Aantal badkamers
- 1
- Woonoppervlakte
- 83 m2
- Ligging
- Aan rustige weg, In woonwijk, Vrij uitzicht
- Bouwjaar
- 1965
- Isolatie
- Dakisolatie, Muurisolatie, Dubbelglas
- Type verwarming
- Blokverwarming
- Onderhoud buiten
- Goed
- Onderhoud binnen
- Goed
- Voorzieningen
- TV kabel, Lift
- Energieklasse
- E
- Soort dak
- Plat dak
- Parkeer faciliteiten
- Openbaar parkeren, Parkeervergunningen, Op afgesloten terrein
- Schuur/bergruimte
- 1
- Woning type
- Appartement
Plattegronden
Uitzicht op straat
Zoek de locatie
kom jij kijken?
Een bezoek vertelt het meest. Onze makelaars nemen graag de tijd voor een rustige rondleiding.
Contacteer ons nu




























