Burgwal 103, Haarlem
VerkochtBeschrijving
PUUR* wonen aan een van de mooie grachten van Haarlem. Achter de mooi gestuukte en brede gevel ligt dit goed onderhouden grachtenpand met drie ruime slaapkamers, een moderne badkamer en een riante tuin op het zuidoosten. Kom kijken en laat je verrassen door deze prachtig gelegen woning aan de rand van het centrum.
Locatie
Terwijl de woning binnen een oase van rust biedt, ligt het bruisende stadsleven op een steenworp afstand. U kijkt uit op open vaarwater met boten en werkelijk alle hotspots bevinden zich om de hoek. Winkels, ateliers, horeca en musea zoals het Teylers Museum, de Toneelschuur, de Stadsschouwburg en de Philharmonie bevinden zich op loopafstand. Het huis ligt gunstig ten opzichte van de uitvalswegen naar Amsterdam, Schiphol, Utrecht en Den Haag. De bossen, duinen en stranden van Zandvoort en Bloemendaal zijn met de fiets bereikbaar.
Goed om te weten:
* Woonoppervlakte: 94 m²
* Inhoud: 350 m³
* Perceeloppervlakte: 102 m²
* Brede woonkamer
* Riante, zonnige tuin op het zuidoosten
* Prachtig zicht over de gracht
* Geheel en goed geïsoleerd
* Energielabel C
* Elektra: 10 groepen + 2 aardlekschakelaars
* Gefundeerd op staal (dus geen houten palen)
* Parkeervergunningen direct te verkrijgen
* Op loopafstand van het centrum
* Grachtenpand aan de rand van het centrum
* Zo te betrekken
* Oplevering in overleg
Indeling:
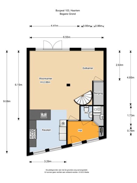
Begane grond: entree, ruime lichte hal, meterkast, toilet met fonteintje en mechanische ontluchting, aparte was-/bergruimte met wasmachine- en drogeraansluiting. Royale, brede woonkamer met hardhouten vloerdelen en openslaande deuren naar de tuin. Verder een diepe bergkast en een moderne open keuken in hoekopstelling met bar.
1e Verdieping: ruime overloop met aparte inloopkast, één slaapkamer aan de achterzijde, twee slaapkamers aan de voorzijde waarvan één met vaste kast. Badkamer met ligbad, inloopdouche, tweede toilet, wastafel en dakraam.
De brochure kunt u downloaden via onze eigen website.
*ENGLISH*
PUUR* living on one of the beautiful canals of Haarlem. Behind the beautifully plastered and wide facade lies this well-maintained canal house with three spacious bedrooms, a modern bathroom and a spacious garden facing southeast. Come take a look and be surprised by this beautifully located home on the edge of the center.
Location
While the house offers an oasis of tranquility inside, the bustling city life is just steps away. You overlook open waterways with boats and really all the hot spots are around the corner. Stores, studios, restaurants and museums such as the Teylers Museum, the Toneelschuur, the Stadsschouwburg and the Philharmonie are within walking distance. The house is conveniently located to the highways to Amsterdam, Schiphol, Utrecht and The Hague. The forests, dunes and beaches of Zandvoort and Bloemendaal are accessible by bicycle.
Good to know:
* Living space: 94 m²
* Contents: 350 m³
* Land area: 102 m²
* Wide living room
* Spacious, sunny garden on the southeast
* Beautiful view over the canal
* Fully and well insulated
* Energy label C
* Electricity: 10 groups + 2 earth leakage switches
* Founded on steel (no wooden piles)
* Parking permits directly available
* Within walking distance of downtown
* Canal house on the edge of the center
* So to involve
* Delivery in consultation
Layout:
First floor: entrance, spacious bright hall, meter cupboard, toilet with sink and mechanical ventilation, separate laundry/storage room with washer and dryer connections. Spacious, wide living room with hardwood floorboards and French doors to the garden. Furthermore, a deep storage closet and a modern open kitchen in corner unit with bar.
1st Floor: spacious landing with separate walk-in closet, one bedroom at the rear, two bedrooms at the front, one with closet. Bathroom with bath, walk-in shower, second toilet, sink and skylight.
The brochure can be downloaded from our own website.
Algemeen
- Plaats
- Haarlem
- Status
- Verkocht
- Buurt
- Burgwal
- Aantal kamers
- 4
- Aantal slaapkamers
- 3
- Aantal badkamers
- 1
- Woonoppervlakte
- 94 m2
- Perceel oppervlakte
- 102 m2
- Ligging
- In centrum, Vrij uitzicht, Aan vaarwater
- Bouwjaar
- 1915
- Isolatie
- Dakisolatie, Muurisolatie, Vloerisolatie, Dubbelglas
- Type verwarming
- CV ketel
- Onderhoud buiten
- Redelijk tot goed
- Onderhoud binnen
- Goed
- Voorzieningen
- Mechanische ventilatie, TV kabel, Buitenzonwering
- Energieklasse
- C
- Soort dak
- Mansardedak
- Parkeer faciliteiten
- Betaald parkeren, Parkeervergunningen
- Woning type
- Woonhuis






































