Ceintuurbaan 254H, Amsterdam
BeschikbaarPrijs: € 1.350.000,-
Beschrijving
PUUR* WONEN
Aan de Ceintuurbaan 254H bieden wij deze zeer ruime begane-grondwoning aan van circa 141 m², gelegen op eigen grond in het hart van de geliefde wijk De Pijp. Er is sprake van een royale living met luxe open keuken, 3 slaapkamers én 2 moderne badkamers. De woning is in 2021 hoogwaardig gerenoveerd en voorzien van diverse comfortabele upgrades, waaronder, vloerverwarming, HR++ glas, een nieuwe cv-ketel met rookgasafvoer (2023) en hoogwaardige maatwerk inbouwkasten van Van Steen. Een royale en praktisch ingedeelde woning met een uitzonderlijk woonoppervlak over 1 verdieping met twee buitenruimtes.
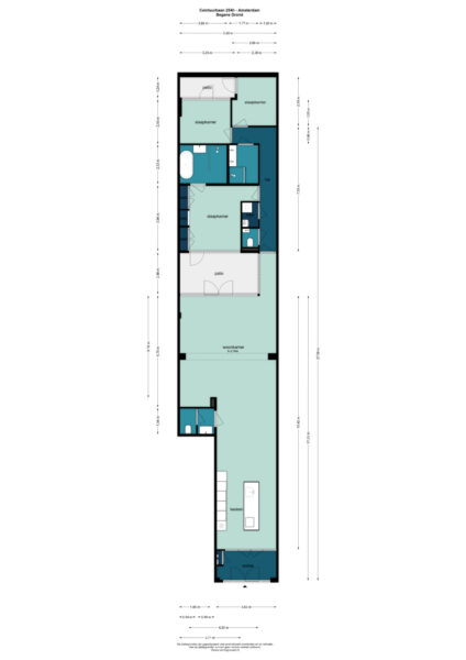
INDELING:
Via de eigen entree op de begane grond stap je binnen in een ruime hal die direct een goed gevoel van ruimte geeft. Stalen deuren met glas geven een groot gevoel van privacy en verschaffen toegang tot ruime living met luxe open keuken. Vanuit hier kom je in het centrale gedeelte van de woning, waar de verschillende leefruimtes mooi met elkaar in verbinding staan. Aan de voorzijde bevindt zich de royale leefkeuken, praktisch ingedeeld en met voldoende werk- en opbergruimte. De grote raampartijen zorgen voor veel natuurlijk licht en dankzij het HR++ glas is het geluidsniveau binnen prettig rustig, ondanks de centrale ligging aan de Ceintuurbaan. De woonkamer biedt volop ruimte voor een royaal zitgedeelte en een grote eettafel, en grenst aan de op het zuiden gelegen patio waardoor het een fijne plek is om te wonen en te ontvangen.
Door de op maat gemaakte inbouwkasten van Van Steen – die door vrijwel de hele woning zijn doorgevoerd – is er altijd voldoende bergruimte zonder dat dit ten koste gaat van de leefruimte. Verder naar achteren vind je de slaapkamers, die ruim van formaat zijn en flexibel in te richten. Of het nu gaat om een master bedroom, een werkkamer of een kinderkamer: de kamers zijn groot genoeg om aan diverse woonwensen te voldoen.
Tussen de leefruimtes bevindt zich de twee badkamers, netjes en functioneel ingericht. Daarnaast beschikt de woning over meerdere praktische berg- en kastmogelijkheden, mede dankzij het maatwerkmeubilair. De woning is bovendien voorzien van een nieuwe cv-ketel en rookgasafvoer (2023), wat zorgt voor toekomstbestendig wooncomfort.
OMGEVING
Ceintuurbaan 254H is gelegen in het hart van De Pijp, een van de meest geliefde en levendige wijken van Amsterdam. Direct om de hoek vind je een breed aanbod aan gezellige cafés, restaurants, speciaalzaken en boetiekjes. De bekendere hotspots zoals de Albert Cuypmarkt, het Sarphatipark en de Ferdinand Bolstraat liggen allemaal op korte loopafstand.
De bereikbaarheid is uitstekend: diverse tram- en metrohaltes (waaronder de Noord/Zuidlijn) bevinden zich binnen enkele minuten lopen, waardoor zowel Amsterdam Centraal als Zuid WTC snel te bereiken zijn. Ook met de fiets ben je zo in het centrum, Oud-Zuid of de Rivierenbuurt. De ring A10 is bovendien goed bereikbaar, waardoor deze locatie ideaal is voor zowel stadsbewoners als mensen die voor hun werk moeten reizen.
BIJZONDERHEDEN:
* Gelegen op EIGEN GROND
* Woonoppervlakte circa 141 m² (NEN-rapport beschikbaar).
* Zeer ruime begane-grondwoning met efficiënte indeling.
* Twee badkamers
* Twee buitenruimtes
* Nieuwe cv-ketel en rookgasafvoer (2023).
* Voorzien van HR++ glas.
* Door de gehele woning maatwerk inbouwkasten van Van Steen.
* Centrale ligging in de gewilde wijk De Pijp.
* Goed onderhouden en direct te betrekken.
* Ingebouwde wijnkoeling aanwezig
*English***
PUUR* LIVING
At Ceintuurbaan 254H, we are proud to present this exceptionally spacious ground-floor residence of approximately 141 m², situated on freehold land in the heart of the highly sought-after De Pijp district. The property is well maintained and features several modern upgrades, including HR++ glazing, a new central heating boiler with flue system (2023), and high-quality custom-built cabinetry by Van Steen. This is a generously sized and efficiently designed home offering an exceptional amount of living space for this location.
LAYOUT
Your private entrance on the ground floor opens into a spacious hallway that immediately conveys a pleasant sense of openness. From here, you enter the central part of the home, where the various living areas flow seamlessly together. At the front lies the expansive living room. Large windows allow abundant natural light to fill the space, and thanks to the HR++ glazing, the interior remains pleasantly quiet despite the lively location on the Ceintuurbaan. The living room comfortably accommodates both a generous seating area and a large dining table, making it an inviting setting for relaxation as well as entertaining.
Adjacent to the living area is the practically designed kitchen, equipped with ample countertop and storage space. The custom-built cabinetry by Van Steen, installed throughout nearly the entire home, offers extensive storage while maintaining the open and spacious character of the layout. Towards the rear are the bedrooms, all generously proportioned and easily adaptable to your needs. Whether used as a master bedroom, home office, or children’s room, each space offers versatility and comfort.
Centrally positioned between the living areas is the bathroom, neatly finished and functionally arranged. Additional practical storage options are found throughout the residence, supported by the custom-built furniture. The new central heating boiler with flue system (2023) ensures long-term comfort and reliability.
SURROUNDINGS
Ceintuurbaan 254H is located in the heart of De Pijp, one of Amsterdam’s most vibrant and desirable neighbourhoods. Just around the corner, you will find a wide variety of cafés, restaurants, specialty shops, and boutiques. Popular destinations such as the Albert Cuyp Market, Sarphati Park, and Ferdinand Bolstraat are all within easy walking distance.
Accessibility is excellent. Several tram and metro lines, including the North/South line, are just minutes away on foot, providing quick connections to Amsterdam Central Station and Zuid WTC. By bicycle, you can easily reach the city centre, Oud-Zuid, or the Rivierenbuurt. The A10 ring road is also conveniently accessible, making this an ideal location for both city residents and commuters.
HIGHLIGHTS
* Located on freehold land
* Living area of approximately 141 m² (NEN report available)
* Exceptionally spacious ground-floor residence with an efficient layout
* New central heating boiler and flue system from 2023
* Equipped with HR++ glazing
* Custom-built cabinetry throughout, created by Van Steen
* Prime location in the desirable De Pijp neighbourhood
* Well maintained and move-in ready
* Private patio with favourable sun exposure
* Built-in wine cooler included
Kenmerken
- Koopprijs
- € 1.350.000,-
- Plaats
- Amsterdam
- Status
- Beschikbaar
- Buurt
- Cornelis Troostbuurt
- Aantal kamers
- 6
- Aantal slaapkamers
- 3
- Woonoppervlakte
- 142 m2
- Perceel oppervlakte
- 196 m2
- Ligging
- Aan drukke weg, In centrum
- Bouwjaar
- 1896
- Type verwarming
- CV ketel
- Onderhoud buiten
- Goed tot uitstekend
- Onderhoud binnen
- Goed tot uitstekend
- Voorzieningen
- Mechanische ventilatie, alarminstallatie, TV kabel, Schuifpui
- Energieklasse
- B
- Soort dak
- Plat dak
- Parkeer faciliteiten
- Openbaar parkeren, Betaald parkeren
- Woning type
- Appartement
Plattegronden
Uitzicht op straat
Zoek de locatie
kom jij kijken?
Een bezoek vertelt het meest. Onze makelaars nemen graag de tijd voor een rustige rondleiding.
Contacteer ons nu
































