Commelinstraat 444, Amsterdam
Verkocht onder voorbehoudPrijs: € 600.000,-
Beschrijving
PUUR* Wonen
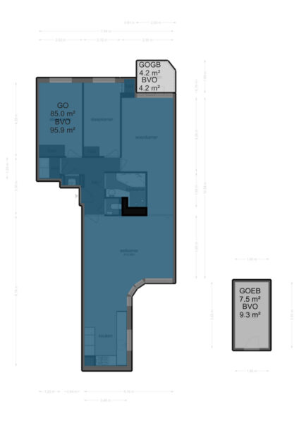
Zeer ruim en goed ingedeeld appartement van 85m² in het geliefde Amsterdam Oost! Dit charmante huis heeft 2 goede slaapkamers, met de mogelijkheid tot creëren van een derde slaapkamer. Het heeft een zonnig balkon op het zuiden, moderne keuken en ruime woonkamer. In de onderbouw bevindt zich een externe berging. Daarnaast is de erfpacht eeuwigdurend afgekocht! Kortom; een instapklare, goed ingedeelde en goed onderhouden woning op een toplocatie! Nieuwsgierig geworden? Neem dan snel contact met ons op om een bezichtiging in te plannen.
INDELING
Via het gezamenlijke trappenhuis bereikt u op de derde verdieping de eigen voordeur van het appartement. Bij binnenkomst valt direct de lichte keuken en eetkamer op. Deze ruimte is slim ingedeeld met plek voor een royale eettafel en een bar die naadloos aansluit op de keuken. De keuken is uitgerust met o.a een SMEG 6-pits gasfornuis met extra brede oven, een kokend water kraan, vaatwasser en een grote koelvriescombinatie. Kortom, een keuken die van alle gemakken is voorzien én uitzicht biedt op de groene Commelinstraat. Een grote schuifdeur scheidt de keuken en eetkamer van de zithoek, die grenst aan een balkon met uitzicht op de rustige, groene binnentuin.
Het appartement beschikt over twee slaapkamers. De zithoek kan gemakkelijk tot een derde slaap/werkkamer gemaakt worden. Eén slaapkamer wordt momenteel gebruikt als babykamer en is stijlvol afgewerkt met een op maat gemaakte houten inbouwkast. De grote slaapkamer biedt voldoende ruimte voor een tweepersoonsbed en een kledingkast. De badkamer is voorzien van een ligbad, inloopdouche en wastafel. Het toilet zit separaat. Tot slot zijn de wasmachine en droger netjes weggewerkt in een ruime kast. Al met al een ruim, praktisch ingedeeld en verzorgd appartement dat ook nog eens beschikt over een riante berging in de onderbouw. De berging is ruim 8m2, heeft een aparte entree en is toegankelijk voor fietsen.
OMGEVING EN BEREIKBAARHEID
De Commelinstraat is gelegen in de gezellige en populaire Dapperbuurt. Om de hoek vind je de gezellige Dappermarkt, Eerste van Swindenstraat en Javastraat, ideaal voor de dagelijkse boodschappen. Er zijn tal van gezellige horecagelegenheden in de buurt zoals Bar Botanique, Le French Cafe, Restaurant Wu, Brouwerij ‘t IJ en Coulisse. In de directe omgeving zijn diverse supermarkten, speciaalzaken en goede koffiezaken te vinden, zoals Olaf Brood, Wakuli en L’Abeille. Ook voorzieningen als kinderopvang, bibliotheek en scholen zijn in de buurt. Voor ontspanning wandel je naar het Oosterpark of het Flevopark.
De woning is zeer goed bereikbaar met zowel de auto als het openbaar vervoer. Station Muiderpoort bevindt zich op loopafstand, evenals diverse tram- en bushaltes. Met de fiets ben je binnen 10 minuten in het centrum van Amsterdam. Via de Middenweg of Piet Heinkade ben je bovendien zo op de A10, A1 en A2.
BIJZONDERHEDEN
* 85m2 (NEN meetrapport aanwezig);
* Eeuwigdurend afgekochte erfpacht;
* 2 goede slaapkamers, met optie tot een derde riante slaap/werkkamer;
* Grote raampartijen;
* Balkon op het zuiden met uitzicht op een groene binnentuin;
* Toegang tot de besloten, rustige en groene binnentuin;
* Badkamer met ligbad en inloopdouche;
* Externe berging (8m2) in de onderbouw;
* Gelegen in een groene en rustige straat met alle voorzieningen dichtbij;
* Gezonde en actieve VvE met een MJOP;
* Maandelijkse servicekosten bedragen €224,-;
* Oplevering in overleg.
Kenmerken
- Koopprijs
- € 600.000,-
- Plaats
- Amsterdam
- Status
- Verkocht onder voorbehoud
- Buurt
- Dapperbuurt Noord
- Aantal kamers
- 3
- Aantal slaapkamers
- 2
- Aantal badkamers
- 1
- Woonoppervlakte
- 85 m2
- Perceel oppervlakte
- 85 m2
- Ligging
- Aan rustige weg, In woonwijk
- Bouwjaar
- 1984
- Isolatie
- Dubbelglas
- Type verwarming
- CV ketel
- Onderhoud buiten
- Goed
- Onderhoud binnen
- Goed
- Voorzieningen
- Mechanische ventilatie, TV kabel
- Energieklasse
- A
- Parkeer faciliteiten
- Betaald parkeren, Parkeervergunningen
- Schuur/bergruimte
- 1
- Woning type
- Appartement
Plattegronden
Uitzicht op straat
Zoek de locatie
kom jij kijken?
Een bezoek vertelt het meest. Onze makelaars nemen graag de tijd voor een rustige rondleiding.
Contacteer ons nu



























