Crayenesterlaan 61, Haarlem
VerkochtBeschrijving
Stijlvol wonen in rijksmonument in Haarlem-zuid. In een rustige, groene en karaktervolle laan in Haarlem staat deze sfeervolle monumentale tussenwoning uit ca. 1924 die op de 1e verdiepieng extra breed is door de bouw boven de poort. Een huis waar historie, authenticiteit en hedendaags wooncomfort op harmonieuze wijze samenkomen. Vanaf het eerste moment word je verrast door de prachtige originele details, hoge plafonds, warme materialen en de prettige indeling.
De Crayenesterlaan is een charmante, lommerrijke straat in een geliefde woonwijk van Haarlem. Je woont hier rustig, maar toch zeer centraal. Op korte afstand vind je diverse buurtwinkels, speciaalzaken en gezellige horeca. Het historische centrum van Haarlem ligt op fietsafstand en biedt een breed scala aan winkels, cultuur, musea en restaurants. Ook voor natuurliefhebbers is het hier uitstekend: vlakbij het Spaarne, het stadsbos, de Haarlemmerhout, wandelbos Groenendaal en diverse duingebieden zijn eenvoudig bereikbaar. Sportfaciliteiten, scholen, kinderopvang en openbaar vervoer bevinden zich in de directe omgeving. Daarnaast zijn uitvalswegen richting Amsterdam, Schiphol en de kust snel te bereiken. Een ideale woonplek voor wie rustig wil wonen met alle voorzieningen binnen handbereik.
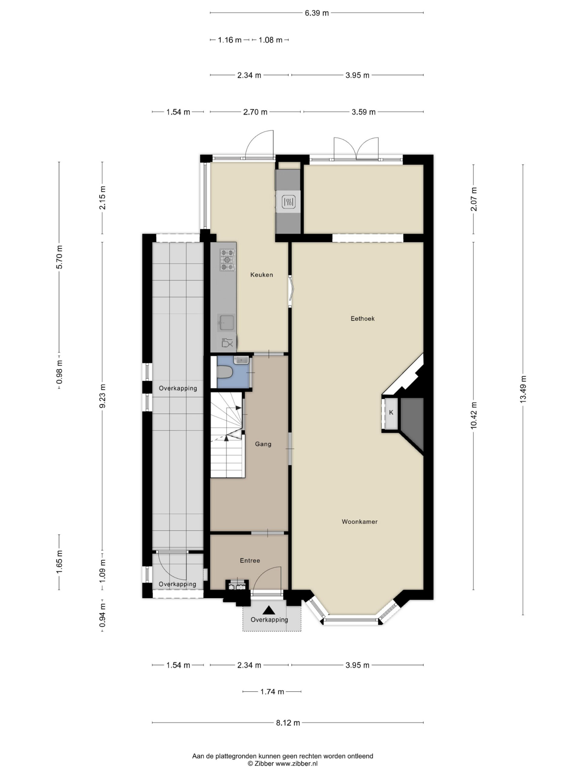
Via de entree betreed je de vestibule, waar direct de originele monumentale granito vloer in het oog springt. Deze vloer loopt door in de hal en vormt een stijlvolle overgang naar de keuken. De keuken is uitgevoerd in hout, passend bij de sfeer van de woning, en voorzien van een robuust natuurstenen werkblad. De gezellige ontbijtcorner maakt dit tot een fijne plek om de dag te beginnen.
De woonkamer is ruim en beschikt aan de voorzijde over een fraaie erker, wat zorgt voor veel lichtinval en een heerlijke zithoek met uitzicht op de voortuin. Aangrenzend bevindt zich het ruime eetgedeelte met een open haard, ideaal voor lange diners. Aan de achterzijde is een separate ruimte gecreëerd die uitstekend dienst kan doen als werkkamer of speelkamer. Via de in 2017 geplaatste pui heb je toegang tot de tuin.
In de woonkamer en eetkamer ligt de originele massieve visgraat parketvloer. Aan de voorzijde is de woning voorzien van monumentaal dubbel glas, wat bijdraagt aan comfort en energiezuinigheid, zonder afbreuk te doen aan het karakter van het huis.
De achtertuin is mooi aangelegd, met voldoende ruimte voor meerdere zitplekken. Een heerlijke plek om in alle rust buiten te genieten. Daarnaast bevindt zich aan de zijkant van de woning een handige externe gedeelde bergruimte, ideaal voor fietsen, tuinspullen of extra opslag.
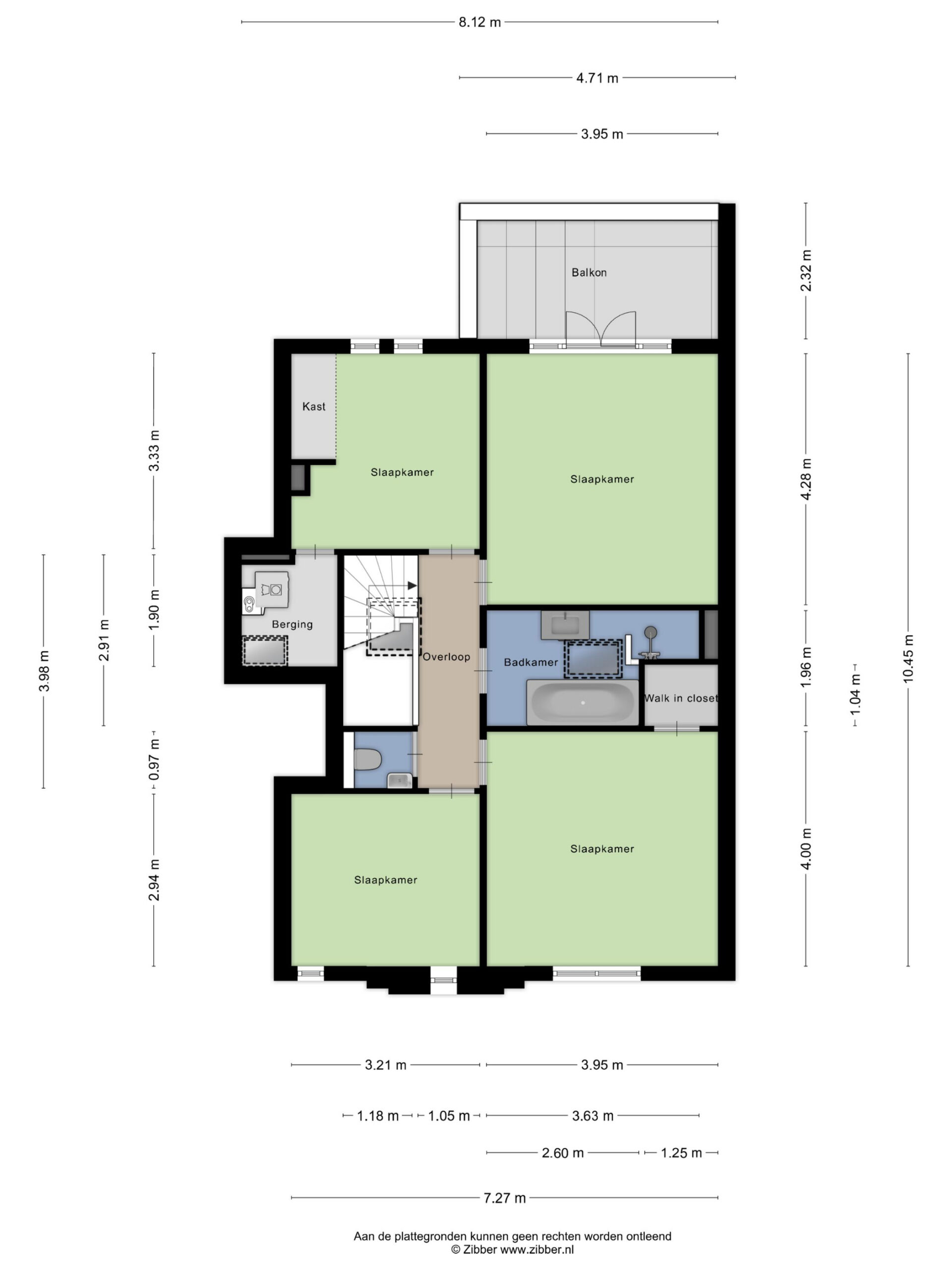
Met een fraaie houten bordestrap bereik je de eerste verdieping. Hier bevinden zich vier slaapkamers, een badkamer en een separaat toilet. De master bedroom geeft via openslaande deuren toegang tot het balkon, met uitzicht over de tuin. Direct bij bovenkomst bevindt zich een iets kleinere slaapkamer, perfect als werk- of kinderkamer. Vanuit deze kamer is er toegang naar de berging/opslag/CV ketel-ruimte. Tussen de master bedroom en een tweede ruime slaapkamer ligt de stijlvolle badkamer welke voorzien is van een ligbad, een inloopdouche, een wastafel en een lichtkoepel waardoor het ook hier lekker licht is, daarnaast bevindt zich de vierde slaapkamer aan de voorzijde.
Indeling:
Parterre: entree, vestibule met originele granito vloer, hal met granito vloer, modern zwevend toilet met fontein en toegang naar kelder, lichte woonkamer met erker, houten parketvloer, open kast en granieten schouw met open haard, serre/werkkamer met openslaande deuren naar tuin, moderne houten keuken met natuurstenen aanrechtblad en gezellige ontbijtcorner met deur naar tuin, via hal trap naar….
1e Verdieping: overloop voorzien van modern zwevend toilet met fontein, twee slaapkamers aan voorzijde waarvan 1 met royale inbouwkast, slaapkamer aan achterzijde met openslaande deuren naar balkon, slaapkamer aan achterzijde met kast en toegang naar berging/was-/stookruimte
Bijzonderheden:
* Woonoppervlakte ca. 158 m², inhoud ca. 558 m³ en 207 m² eigen grond
* Monument
* Stijlvolle authentieke originele details
* Prachtige houten parketvloer in woonkamer en eetkamer (geïsoleerd)
* Pui aan achterzijde vernieuwd in 2017
* Optimaal geïsoleerd
* Voor indeling en maten zie plattegronden
* Oplevering in overleg
*ENGLISH BELOW*
Stylish living in a national monument in Haarlem-Zuid. This charming, monumental terraced house from around 1924 is located on a quiet, green, and characterful avenue in Haarlem. The first floor is extra wide due to the construction above the gate. A house where history, authenticity, and contemporary living comfort come together in harmony. From the moment you step inside, you will be surprised by the beautiful original details, high ceilings, warm materials, and pleasant layout.
The Crayenesterlaan is a charming, leafy street in a popular residential area of Haarlem. Here, you will live in a quiet yet very central location. Various local shops, specialty stores, and cozy restaurants are within walking distance. The historic center of Haarlem is within cycling distance and offers a wide range of shops, culture, museums, and restaurants. It is also an excellent location for nature lovers: the Spaarne river, the city forest, the Haarlemmerhout, the Groenendaal walking forest, and various dune areas are all within easy reach. Sports facilities, schools, childcare, and public transportation are located in the immediate vicinity. In addition, roads to Amsterdam, Schiphol Airport, and the coast are within easy reach. An ideal place to live for those who want a quiet life with all amenities within easy reach.
The entrance leads into the vestibule, where the original monumental terrazzo floor immediately catches the eye. This floor continues into the hall and forms a stylish transition to the kitchen. The kitchen is finished in wood, matching the atmosphere of the house, and features a robust natural stone worktop. The cozy breakfast corner makes this a great place to start the day.
The living room is spacious and has a beautiful bay window at the front, which provides plenty of light and a lovely sitting area with a view of the front garden. Adjacent is the spacious dining area with a fireplace, ideal for long dinners. At the rear, a separate room has been created that can serve as a study or playroom. The garden is accessed through the front door, which was installed in 2017.
The living room and dining room feature the original solid herringbone parquet flooring. The front of the house has monumental double glazing, which contributes to comfort and energy efficiency without detracting from the character of the house.
The backyard is beautifully landscaped, with enough space for multiple seating areas. A wonderful place to enjoy the outdoors in peace and quiet. In addition, there is a convenient external shared storage space on the side of the house, ideal for bicycles, garden equipment, or extra storage.
A beautiful wooden staircase leads to the first floor. Here you will find four bedrooms, a bathroom, and a separate toilet. The master bedroom has French doors that open onto the balcony, offering a view of the garden. Immediately upon arrival, there is a slightly smaller bedroom, perfect as a study or children’s room. From this room, there is access to the storage/boiler room. Between the master bedroom and a second spacious bedroom is the stylish bathroom, which has a bathtub, a walk-in shower, a sink, and a skylight that provides plenty of light. The fourth bedroom is located at the front of the house.
Layout:
Ground floor: entrance hall with original terrazzo floor, hall with terrazzo floor, modern floating toilet with washbasin and access to the basement, bright living room with bay window, wooden parquet floor, open cupboard and granite fireplace with open fire, conservatory/study with French doors to the garden, modern wooden kitchen with natural stone worktop and cozy breakfast corner with door to the garden, via hall stairs to….
First floor: landing with modern floating toilet with washbasin, two bedrooms at the front, one with a spacious built-in wardrobe, bedroom at the rear with French doors to the balcony, bedroom at the rear with wardrobe and access to storage/laundry/boiler room
Details:
* Living area approx. 158 m², volume approx. 558 m³ and 207 m² of private land
* Listed building
* Stylish authentic original details
* Beautiful wooden parquet flooring in living room and dining room (insulated)
* Rear facade renovated in 2017
* Optimally insulated
* For layout and dimensions, see floor plans
* Delivery in consultation
Algemeen
- Plaats
- Haarlem
- Status
- Verkocht
- Buurt
- Zuiderhout
- Aantal kamers
- 6
- Aantal slaapkamers
- 4
- Aantal badkamers
- 1
- Woonoppervlakte
- 158 m2
- Perceel oppervlakte
- 207 m2
- Ligging
- Aan rustige weg, In woonwijk
- Bouwjaar
- 1924
- Isolatie
- Vloerisolatie, Grotendeels dubbelglas
- Type verwarming
- CV ketel, Open haard
- Onderhoud buiten
- Goed tot uitstekend
- Onderhoud binnen
- Goed tot uitstekend
- Voorzieningen
- alarminstallatie, TV kabel, Rookkanaal, Glasvezel kabel, Zonnepanelen
- Energieklasse
- C
- Soort dak
- Plat dak
- Parkeer faciliteiten
- Openbaar parkeren
- Schuur/bergruimte
- 1
- Woning type
- Woonhuis











































