De Grote Haar 16, Muiderberg
VerkochtBeschrijving
Heerlijk gezinshuis in kindvriendelijk Muiderberg – 4 slaapkamers en een zonnige tuin!
Ben je op zoek naar een fijne plek om je gezin te laten opgroeien of centraal en toch rustig te kunnen wonen? Deze goed onderhouden tussenwoning ligt rustig verscholen aan een autoluw hofje in Muiderberg. Een plek waar kinderen nog veilig buiten kunnen spelen, terwijl jij geniet van de ruimte, het licht en de zonnige achtertuin op het zuidwesten.
Indeling:
Begane grond: hal met wc en meterkast. Open keuken met inbouwapparatuur en toegang tot de brede U-vormige woonkamer met houtkachel en deur naar de tuin.
Eerste verdieping: drie slaapkamers (waarvan één met balkon aan de voorzijde), badkamer met douche, wastafel en toilet. Handige vaste kast op de overloop.
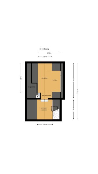
Tweede verdieping:
Tweede verdieping: de huidige eigenaar heeft de zolderverdieping volledig verbouwd en veel praktische en lichte woonruimte toegevoegd. Er is een vaste trap gemaakt die uitkomt op de ruime voorzolder voorzien van een dakraam. De voorzolder biedt direct toegang tot de vierde slaapkamer, voorzien van grote dakkapel.
Bijzonderheden:
– Ruim woonoppervlak van 122 m² met maar liefst 4 slaapkamers
– Unieke, brede U-vormige woonkamer met houtkachel en houten vloer
– Energielabel B: voorzien van dubbel glas, dak- en muurisolatie
– Diepe, zonnige tuin met achterom naar een klein speelterrein
– Rustige ligging: verborgen in een hofje, weg van de drukte van de straat
Dit huis is goed onderhouden, ruim en ideaal voor gezinnen die op zoek zijn naar een plek met rust, ruimte en gezelligheid!
Een dorp dat alles heeft
Muiderberg is geliefd bij jonge gezinnen. Je vindt er twee basisscholen, sportclubs (hockey, tennis, voetbal, zeilen, paardrijden), een gezellig strandje, de haven en volop recreatie bij het Naarderbos. Voor de dagelijkse boodschappen loop je zo naar de dorpskern met winkels. En woon je hier, dan zit je zó op de A1 en A6 richting Amsterdam, Amersfoort of Almere
Maak snel een afspraak voor een bezichtiging – misschien staat hier wel jullie nieuwe thuis in Muiderberg!
Algemeen
- Plaats
- Muiderberg
- Status
- Verkocht
- Buurt
- Buitendijken Muiderberg
- Aantal kamers
- 5
- Aantal slaapkamers
- 4
- Aantal badkamers
- 1
- Woonoppervlakte
- 122 m2
- Perceel oppervlakte
- 148 m2
- Ligging
- Aan rustige weg, In woonwijk
- Bouwjaar
- 1975
- Isolatie
- Dakisolatie, Muurisolatie, Vloerisolatie, Dubbelglas
- Type verwarming
- CV ketel, Houtkachel
- Onderhoud buiten
- Goed
- Onderhoud binnen
- Goed
- Voorzieningen
- TV kabel, Rookkanaal, Dakraam
- Energieklasse
- B
- Soort dak
- Zadeldak
- Parkeer faciliteiten
- Openbaar parkeren
- Woning type
- Woonhuis


































