Delftlaan 221, Haarlem
VerkochtBeschrijving
PUUR* wonen aan de Delftlaan 221. Jaren ’30 charme met ruimte, licht en luxe.
Wat een heerlijke gezinswoning is dit! In de Planetenbuurt ligt deze riante, sfeervolle en heerlijk lichte jaren ’30 woning van maar liefst 185 m2, boordevol karakter én hedendaags comfort.
Wat maakt deze woning zo bijzonder?
– Karaktervolle details: De woning heeft alle charme die je van een jaren ’30 woning mag verwachten. De authentieke elementen zoals de glas-in-loodramen, granito vloeren, authentiek tegelwerk en paneeldeuren geven de woning een warme en sfeervolle uitstraling. En als de zon door de glas-in-loodramen valt, krijg je dat magische lichtspel waar je meteen verliefd op wordt.
– Modern comfort en instapklaar: Vanaf 2017 is de woning met veel smaak en oog voor detail gemoderniseerd. In 2020 is de woning aan de achterzijde uitgebouwd en voorzien van een royale eilandkeuken met apparatuur. In 2024 is de hele tweede verdieping vernieuwd, inclusief een stijlvolle, tweede badkamer.
– Ook aan duurzaamheid is gedacht: De woning is al goed geïsoleerd (dak, gevel, deels HR++ glas, isoparels in de kruipruimte) Met energielabel C dus op weg naar een groene toekomst.
– Veel ruimte: slim, speels en ruim. Met 5 slaapkamers (6 mogelijk), 2 badkamers en volop bergruimte is dit het perfecte familiehuis. De brede en zonnige achtertuin op het zuidoosten is ideaal voor ontspannen, spelen, heerlijk tafelen of een lange zomeravond onder de sfeervolle veranda. Fietsen kunnen in de voortuin gestald worden maar er is ook een praktische achterom.
De ligging?: Vrij, met groen en open uitzicht aan de voorzijde, geen overburen. Aan de rand van de geliefde Planetenbuurt, op loopafstand van scholen, speeltuinen, Zaanenpark en De Kweektuin. Station en binnenstad bereik je in 5-10 minuten fietsen. En wil je de natuur in? Bos, duinen en strand liggen binnen handbereik.
Een warme, ruime en comfortabele gezinswoning met een perfecte mix van karakter en modern wooncomfort. Helemaal klaar voor een nieuw hoofdstuk! Een instapklaar familiehuis met karakter én ruimte. Hier woon je echt PUUR*!
Goed om te weten
* Zeer sfeervolle en heerlijk lichte jaren ‘30 woning
* Riant woonoppervlak ca. 185 m2 (zie meetrapport)
* Ideaal gezinshuis met 5 (mogelijk 6) slaapkamers en 2 badkamers
* Veel authentieke details zoals glas-in-loodramen, tegelwerk, paneeldeuren en granito vloeren
* Volledig gemoderniseerd en instapklaar
* Moderne eilandkeuken met luxe inbouwapparatuur (2020)
* Volledig vernieuwde 2e verdieping (2024)
* Brede en zonnige achtertuin met veranda en praktische achterom
* Voortuin met fietsenstalling
* Nieuwe HR combiketel geplaatst in 2025
* Isoparels in de kruipruimte, spouwisolatie, dakisolatie en dubbel glas
* Energielabel C
* Gemetselde fundering (zie bouwtekening)
* Vrije en groene ligging aan ventweg, geen directe overburen
* Vrij parkeren in de straat
* Dichtbij veel voorzieningen
* Snelle toegang tot het buitengebied, bos en duin
* Aanvaarding in overleg
* Zie voor de indeling en de maatvoering de plattegronden
Indeling
Begane grond: voortuin met overkapping voor fietsen. Entree/tochtportaal, ruime hal met toiletruimte en trapkast. Riante, L-vormige living met zitgedeelte aan de voorzijde en open haard. Eetgedeelte aan de achterzijde met openslaande deuren naar de tuin. Moderne, open eilandkeuken v.v. inbouwapparatuur en grote provisieruimte. De brede tuin heeft een gezellige veranda, berging en achterom.
1e Verdieping: ruime overloop, ouderslaapkamer aan de achterzijde met openslaande deuren en doorloop naar kleedkamer. Slaapkamer aan de voorzijde met openslaande deuren naar het balkon. Deze 2 slaapkamers worden gescheiden door een originele en suite. Kleinere (slaap-)kamer aan de voorzijde. Badkamer met ligbad / douche / dubbele wastafel en toilet.
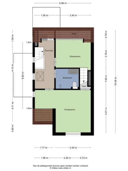
2e Verdieping: ruime overloop met aansluitingen voor de wasapparatuur. Ruime slaapkamer aan de achterzijde met dakkapel en fraaie slaap-entresol. Ruime slaapkamer aan de voorzijde met vaste kastruimte. Tussen de slaapkamers in ligt de moderne badkamer met inloopdouche / wastafelmeubel en toilet.
Vliering: vanaf de overloop is de vliering bereikbaar via een vlizotrap. Hier is nog een praktische bergruimte.
*ENGLISH*
PUUR* living at Delftlaan 221. 1930s charm with space, light and luxury.
What a wonderful family home this is! In the Planetenbuurt lies this spacious, atmospheric and wonderfully light 1930s house of no less than 185 m2, full of character and contemporary comfort.
What makes this house so special?
– Characterful details: The house has all the charm you would expect from a 1930s house. The authentic elements such as the stained glass windows, granite floors, authentic tiling and panel doors give the house a warm and atmospheric appearance. And when the sun shines through the stained glass windows, you get that magical play of light that you immediately fall in love with.
– Modern comfort and ready to move in: Since 2017, the house has been modernized with great taste and attention to detail. In 2020, the house was extended at the rear and equipped with a spacious island kitchen with appliances. In 2024, the entire second floor will be renovated, including a stylish second bathroom.
– Sustainability has also been considered: The house is already well insulated (roof, facade, partly HR++ glass, isopearls in the crawl space) With energy label C, so on the way to a green future.
– Lots of space: smart, playful and spacious. With 5 bedrooms (6 possible), 2 bathrooms and plenty of storage space, this is the perfect family home. The wide and sunny backyard on the southeast is ideal for relaxing, playing, enjoying a meal or a long summer evening under the cozy veranda. Bicycles can be stored in the front garden, but there is also a practical back entrance.
The location?: Free, with green and open views at the front, No neighbors across from you. On the edge of the popular Planetenbuurt, within walking distance of schools, playgrounds, Zaanenpark and De Kweektuin. The station and city center can be reached in 5-10 minutes by bike. And do you want to go into nature? Forest, dunes and beach are within easy reach.
A warm, spacious and comfortable family home with a perfect mix of character and modern living comfort. Completely ready for a new chapter! A move-in ready family home with character and space. Here you really live PURE*!
Good to know
* Very attractive and wonderfully light 1930s house
* Spacious living area approx. 185 m2 (see measurement report)
* Ideal family home with 5 (possibly 6) bedrooms and 2 bathrooms
* Many authentic details such as stained glass windows, tiling, panel doors and granite floors
* Completely modernized and ready to move in
* Modern island kitchen with luxury built-in appliances (2020)
* Completely renovated 2nd floor (2024)
* Wide and sunny backyard with veranda and practical back entrance
* Front garden with bicycle shed
* New HR combi boiler installed in 2025
* Isoparels in the crawl space, cavity wall insulation, roof insulation and double glazing
* Energy label C
* Brick foundation (see construction drawing)
* Free and green location on a service road, no direct neighbors
* Free parking in the street
* Close to many amenities
* Quick access to the countryside, forest and dunes
* Acceptance in consultation
* For the layout and dimensions, see the floor plans
Layout
Ground floor: front garden with covered bicycle shed. Entrance/portal, spacious hall with toilet and staircase cupboard. Spacious, L-shaped living room with sitting area at the front and fireplace. Dining area at the rear with patio doors to the garden. Modern, open island kitchen with built-in appliances and large pantry. The wide garden has a cozy veranda, storage room and back entrance.
1st Floor: spacious landing, master bedroom at the rear with patio doors and passage to dressing room. Bedroom at the front with patio doors to the balcony. These 2 bedrooms are separated by an original en suite. Smaller (bed)room at the front. Bathroom with bath / shower / double sink and toilet.
2nd Floor: spacious landing with connections for washing equipment. Spacious bedroom at the rear with dormer window and beautiful sleeping mezzanine. Spacious bedroom at the front with fixed closet space. Between the bedrooms is the modern bathroom with walk-in shower / washbasin and toilet.
Attic: from the landing the attic is accessible via a loft ladder. Here is another practical storage space.
Algemeen
- Plaats
- Haarlem
- Status
- Verkocht
- Buurt
- Sterrenbuurt
- Aantal kamers
- 7
- Aantal slaapkamers
- 5
- Aantal badkamers
- 2
- Woonoppervlakte
- 185 m2
- Perceel oppervlakte
- 203 m2
- Ligging
- In woonwijk, Vrij uitzicht
- Bouwjaar
- 1937
- Isolatie
- Dakisolatie, Muurisolatie, Voorzetramen, Grotendeels dubbelglas, HR glas
- Type verwarming
- CV ketel, Open haard
- Onderhoud buiten
- Goed tot uitstekend
- Onderhoud binnen
- Goed tot uitstekend
- Voorzieningen
- Mechanische ventilatie, Buitenzonwering, Rookkanaal, Dakraam
- Energieklasse
- C
- Soort dak
- Zadeldak
- Parkeer faciliteiten
- Openbaar parkeren
- Schuur/bergruimte
- 1
- Woning type
- Woonhuis



































































