Dr. Schaepmanstraat 175, Haarlem
BeschikbaarPrijs: € 650.000,-
Beschrijving
PUUR*, centraal en zorgeloos wonen in de Dr. Schaepmanstraat 175.
Moderne en lichte hoekwoning (bouwjaar 2009) van maar liefst 120 m2 met energielabel A, zonnige tuin op het zuiden, drie ruime slaapkamers en een ideale ligging nabij het bruisende centrum van Haarlem. Deze royale gezinswoning biedt veel wooncomfort dankzij de fijne ruimtes en uitstekende staat.
Gelegen in de populaire Amsterdamsebuurt, op korte fietsafstand van de oude binnenstad, het Spaarne en de Grote Markt. Winkels, scholen, speeltuin, kinderopvang en openbaar vervoer liggen letterlijk om de hoek. Ook de uitvalswegen richting Amsterdam, Schiphol en de A9 zijn uitstekend bereikbaar.
De woning beschikt over een ruime woonkamer met openslaande deuren naar de zonnige tuin, een moderne keuken, drie royale slaapkamers en een ruime badkamer. Kortom: een comfortabele, energiezuinige gezinswoning op een toplocatie in Haarlem!
Goed om te weten
– Woonoppervlakte ca. 120 m² / perceel ca. 95 m² eigen grond
– Bouwjaar 2009
– Energielabel A
– Zonnepanelen
– Volledig geïsoleerd: vloer-, gevel- en dakisolatie + HR++ glas
– Verwarming via Intergas HR-combiketel (2010) en mechanische ventilatie met WTW-installatie (J.E. StorkAir)
– Vrij parkeren voor de deur
– Ruime vrijstaande schuur met brede achterom (ideaal voor motor-/fietsenstalling)
– Rustige, kindvriendelijke straat met groen en winkels op loopafstand
– Op fietsafstand van de binnenstad, station Haarlem en station Spaarnwoude
– Nabij Reinaldapark, Veerplas en natuurgebied Spaarnwoude
Indeling
Begane grond: Entree met hal, modern toilet met fontein en meterkast. Tuingerichte woonkamer met ruime zithoek, trapkast en openslaande deuren naar de zonnige, op het zuiden gelegen tuin. Aan de voorzijde bevindt zich de woonkeuken met inbouwapparatuur: Quooker, combi-oven, grote koelkast, grote vriezer, vaatwasser, en een 4-pits inductiekookplaat.
De onder architectuur aangelegde achtertuin is een heerlijke plek om te ontspannen; zonnig, onderhoudsvriendelijk en voorzien van een ruime vrijstaande schuur en een brede achterom.
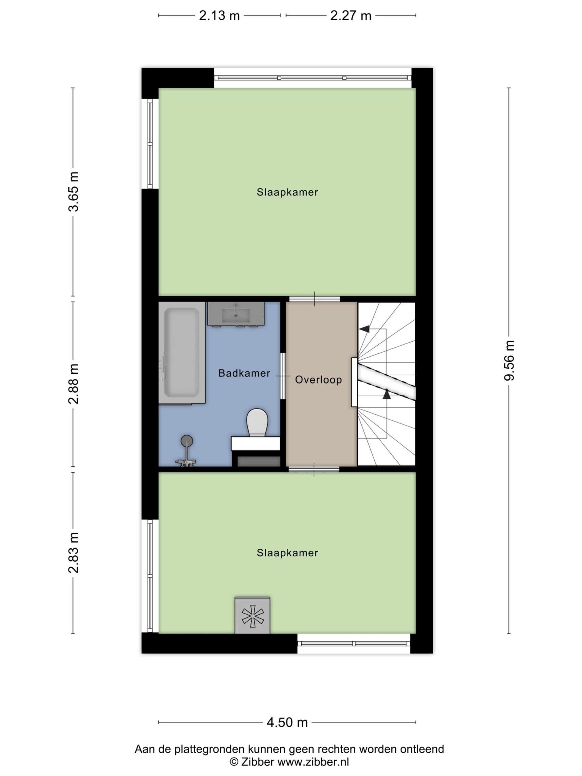
Eerste verdieping
Overloop met twee ruime slaapkamers en een badkamer voorzien van ligbad, inloopdouche, tweede toilet en een wastafelmeubel.
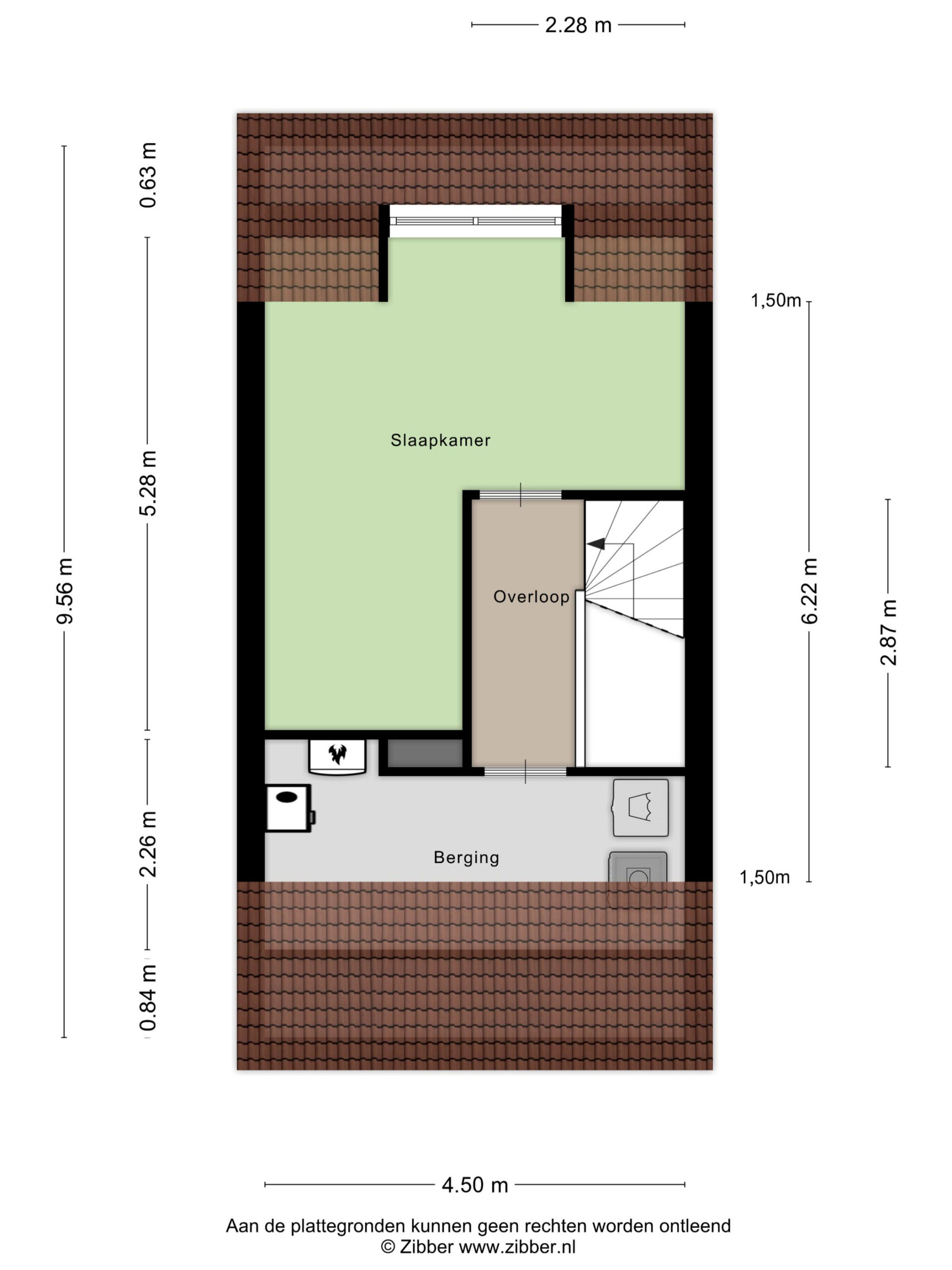
Tweede verdieping
Grote derde slaapkamer en praktische wasruimte met CV-ketel en WTW-installatie.
De buurt
Een vriendelijke en levendige buurt aan de oostzijde van Haarlem, met een sterk gemeenschapsgevoel en volop voorzieningen. Binnen enkele minuten fiets je naar de binnenstad, maar ook recreatiegebieden als het Reinaldapark, de Veerplas en Spaarnwoude liggen op steenworp afstand. Winkelcentra Beatrixplein en Amsterdamstraat bieden een ruim aanbod aan winkels, en Winkelcentrum Schalkwijk (met horeca en bioscoop) ligt op korte afstand.
De verbindingen met openbaar vervoer en uitvalswegen zijn uitstekend: De woning is gelegen tussen station Haarlem en Haarlem-Spaarnwoude. Bushaltes richting Amsterdam, Haarlem en Zandvoort, treinstation Spaarnwoude en directe aansluiting op de N200/A200 en N205 richting Rottepolderplein (A9/A5).
Bekijk de plattegronden, 360°-foto’s en de virtuele tour voor een compleet beeld van de indeling en afmetingen van deze woning.
*ENGLISH BELOW*
PUUR*, central and carefree living at Dr. Schaepmanstraat 175.
Modern and bright corner house (built in 2009) of no less than 120 m2 with energy label A, sunny south-facing garden, three spacious bedrooms and an ideal location near the bustling centre of Haarlem. This spacious family home offers great living comfort thanks to its pleasant rooms and excellent condition.
Located in the popular Amsterdam neighbourhood, a short bike ride from the old town, the Spaarne and the Grote Markt. Shops, schools, playground, childcare and public transport are literally around the corner. The roads to Amsterdam, Schiphol and the A9 are also easily accessible.
The house has a spacious living room with French doors to the sunny garden, a modern kitchen, three spacious bedrooms and a spacious bathroom. In short: a comfortable, energy-efficient family home in a prime location in Haarlem!
Good to know
– Living area approx. 120 m² / plot approx. 95 m² private land
– Year of construction 2009
– Energy label A
– Solar panels
– Fully insulated: floor, wall and roof insulation + HR++ glass
– Heating via Intergas HR combi boiler (2010) and mechanical ventilation with heat recovery unit (J.E. StorkAir)
– Free parking in front of the door
– Spacious detached shed with wide back entrance (ideal for motorcycle/bicycle storage)
– Quiet, child-friendly street with greenery and shops within walking distance
– Within cycling distance of the city centre, Haarlem station and Spaarnwoude station
– Near Reinaldapark, Veerplas and Spaarnwoude nature reserve
Layout
Ground floor: Entrance hall, modern toilet with washbasin and meter cupboard. Garden-facing living room with spacious sitting area, stair cupboard and French doors to the sunny, south-facing garden. At the front is the kitchen with built-in appliances: Quooker, combi-oven, large refrigerator, large freezer, dishwasher, and a 4-burner induction hob.
The architecturally landscaped back garden is a wonderful place to relax; sunny, low-maintenance and equipped with a spacious detached shed and a wide back entrance.
First floor
Landing with two spacious bedrooms and a bathroom with a bath, walk-in shower, second toilet and washbasin.
Second floor
Large third bedroom and practical laundry room with central heating boiler and heat recovery unit.
The neighbourhood
A friendly and lively neighbourhood on the east side of Haarlem, with a strong sense of community and plenty of amenities. The city centre is just a few minutes away by bike, and recreational areas such as Reinaldapark, Veerplas and Spaarnwoude are also just a stone’s throw away. The Beatrixplein and Amsterdamstraat shopping centres offer a wide range of shops, and the Schalkwijk shopping centre (with restaurants and a cinema) is a short distance away.
Public transport and road connections are excellent: the property is located between Haarlem and Haarlem-Spaarnwoude stations. There are bus stops for Amsterdam, Haarlem and Zandvoort, Spaarnwoude train station and direct access to the N200/A200 and N205 towards Rottepolderplein (A9/A5).
View the floor plans, 360° photos and virtual tour for a complete picture of the layout and dimensions of this property.
Kenmerken
- Koopprijs
- € 650.000,-
- Plaats
- Haarlem
- Status
- Beschikbaar
- Buurt
- Cremerbuurt
- Aantal kamers
- 5
- Aantal slaapkamers
- 3
- Aantal badkamers
- 1
- Woonoppervlakte
- 120 m2
- Perceel oppervlakte
- 95 m2
- Ligging
- Aan rustige weg, In woonwijk, Beschutte ligging
- Bouwjaar
- 2009
- Isolatie
- Dakisolatie, Muurisolatie, Vloerisolatie, Dubbelglas, Volledig geïsoleerd
- Type verwarming
- CV ketel
- Onderhoud buiten
- Goed tot uitstekend
- Onderhoud binnen
- Goed tot uitstekend
- Voorzieningen
- Mechanische ventilatie, TV kabel, Buitenzonwering, Glasvezel kabel, Zonnepanelen, Natuurlijke ventilatie
- Energieklasse
- A
- Soort dak
- Zadeldak
- Parkeer faciliteiten
- Openbaar parkeren
- Woning type
- Woonhuis
Plattegronden
Uitzicht op straat
Zoek de locatie
kom jij kijken?
Een bezoek vertelt het meest. Onze makelaars nemen graag de tijd voor een rustige rondleiding.
Contacteer ons nu










































