Eerste Helmersstraat 243-1, Amsterdam
Verkocht onder voorbehoudPrijs: € 500.000,-
Beschrijving
PUUR WONEN*
MOOI EN LICHT APPARTEMENT OP TOP LOCATIE
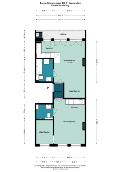
Wil jij je woning naar eigen smaak indelen, hier ligt een mooie kans! Met een kleine ingreep is de woning eenvoudig weer terug te brengen naar één ruim appartement. Aan de achterzijde bevindt zich een heerlijk breed balkon op het zuiden en op de zolderverdieping een ruime berging.
Op een steenworp afstand van het geliefde Vondelpark bieden wij dit sfeervolle en lichte 3-kamerappartement (ca. 58 m²) aan, gebouwd in 1901 en gelegen op eigen grond, dus geen erfpacht!
Deze woning is 10 jaar geleden verbouwd tot twee aan elkaar verbonden studio’s, ieder met een eigen slaapruimte, badkamer en keuken met ruime berging op zolder. Met een kleine verbouwing is de woning zoals op de ‘extra’ plattegronden te creëren. Ben je een beetje handig? Een niet dragende muur verwijderen en mooie vloer leggen, dan ben je al een heel eind.
VVE;
De VVE heeft in de afgelopen jaren veel gedaan; zo is het gehele dak vernieuwd, de balkons achter zijn volledig vernieuwd, het trappenhuis super strak gemaakt en aan de voorzijde zijn alle kozijnen en voordeuren vervangen voor onderhoudsvriendelijke kozijnen met isolatieglas. Dus aan de buiten zijde is al het VVE werk gedaan. Nu alleen binnen nog
OMGEVING
De woning bevindt zich in de geliefde Helmersbuurt, een charmante buurt met een levendig maar gemoedelijk karakter. Het Vondelpark ligt letterlijk om de hoek: via het sfeervolle Rijtuigenhofje wandel je zó het park in, ideaal voor een wandeling, een hardlooprondje of een middag ontspannen in het groen.
In de directe omgeving vind je een breed aanbod aan gezellige cafés, hippe restaurants, leuke boetieks en zonnige terrassen. De bereikbaarheid is uitstekend: binnen vijf minuten zit je met de auto op de Ring A10, het openbaar vervoer is goed vertegenwoordigd en in de straat zijn volop parkeermogelijkheden.
BIJZONDERHEDEN
* Deels verbouwd, naar eigen smaak af te maken;
* Eigen grond;
* Eenvoudig terug te brengen tot 1 grote woning;
* Zonnig balkon aan de achterzijde (zuiden);
* Externe berging op zolder;
* Kunststof kozijnen met isolatieglas aan de voorzijde (2022);
* Nieuw dak;
* Nieuwe hard houten balkon’s;
* Zeer net gerenoveerd trappenhuis;
* VVE bijdrage van €100,- per maand;
* Energielabel B;
* Oplevering in overleg.
***English***
PURE* LIVING
BRIGHT AND BEAUTIFUL APARTMENT IN A PRIME LOCATION
Looking to customize your home to your own taste? This is a great opportunity! With just a small renovation, this property can easily be converted back into one spacious apartment. At the rear, there is a wonderfully wide south-facing balcony, and in the attic, a spacious storage room.
Just a stone’s throw from the popular Vondelpark, we offer this charming and light 3-room apartment (approx. 58 m²), built in 1901 and located on freehold land, so no ground lease!
This property was converted 10 years ago into two connected studios, each with its own sleeping area, bathroom, and kitchen, plus a large attic storage space.
HOMEOWNERS ASSOCIATION (VVE)
The VVE has completed significant improvements in recent years: the entire roof has been replaced, the rear balconies have been completely renewed, the stairwell has been beautifully renovated, and at the front, all window frames and entrance doors have been replaced with low-maintenance, insulated frames. All the exterior work by the VVE has been done — now it’s just the interior left!
SURROUNDINGS
The apartment is located in the beloved Helmersbuurt, a charming neighborhood with a lively yet relaxed atmosphere. The Vondelpark is literally around the corner — through the picturesque “Rijtuigenhofje” you can walk straight into the park, perfect for a stroll, a run, or a relaxing afternoon in the greenery.
In the immediate vicinity, you’ll find a wide range of cozy cafés, trendy restaurants, unique boutiques, and sunny terraces. Accessibility is excellent: within five minutes you’re on the A10 ring road by car, public transport is well connected, and there’s ample parking on the street.
DETAILS
* Partially renovated, ready to finish to your own taste;
* Freehold property (no leasehold);
* Easily convertible back into one large home;
* Sunny south-facing balcony at the rear;
* External storage room in the attic;
* Front windows replaced with insulated plastic frames (2022);
* New roof;
* New hardwood balconies;
* Recently renovated stairwell;
* VVE contribution: €100 per month;
* Energy label B;
* Transfer in consultation.
Kenmerken
- Koopprijs
- € 500.000,-
- Plaats
- Amsterdam
- Status
- Verkocht onder voorbehoud
- Buurt
- Cremerbuurt Oost
- Aantal kamers
- 3
- Aantal slaapkamers
- 2
- Woonoppervlakte
- 58 m2
- Ligging
- Aan rustige weg, In centrum, In woonwijk, Vrij uitzicht, Beschutte ligging
- Isolatie
- Muurisolatie, Vloerisolatie, Dubbelglas
- Type verwarming
- CV ketel
- Onderhoud buiten
- Goed
- Onderhoud binnen
- Goed
- Voorzieningen
- Mechanische ventilatie
- Energieklasse
- B
- Soort dak
- Plat dak
- Parkeer faciliteiten
- Openbaar parkeren, Betaald parkeren
- Schuur/bergruimte
- 1
- Woning type
- Appartement
Plattegronden
Uitzicht op straat
Zoek de locatie
kom jij kijken?
Een bezoek vertelt het meest. Onze makelaars nemen graag de tijd voor een rustige rondleiding.
Contacteer ons nu





























