Eisdenstraat 38, Amsterdam
VerkochtBeschrijving
PUUR* Living
In het groene en ruim opgezette Amsterdam Nieuw-West bevindt zich deze royale twee-onder-een-kapwoning van maar liefst 152 m². De woning is praktisch ingedeeld met op de begane grond een lichte woonkamer, een ruime keuken en een heerlijke tuin aan het water. Op de eerste verdieping vindt u drie ruime slaapkamers, een grote badkamer en een aparte wasruimte. De woning staat op eeuwig afgekochte erfpacht grond, heeft beschikking over een een oprit en daarnaast over een voormalige garage die is omgebouwd tot een stijlvolle werkplek en bijkeuken.
DE INDELING:
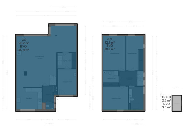
Begane grond
Bij binnenkomst komt u in de hal die toegang biedt tot de lichte en ruime woonkamer. Vanuit de woonkamer schuift u de glazen deuren open naar de tuin, een absoluut pluspunt van deze woning. De tuin is royaal, ligt aan het water en wordt omringd door veel groen. In de tuin bevindt zich een schuur, ideaal voor het opbergen van tuinmeubilair en gereedschap in de winter. Vanwege de enorme diepe tuin op het noorden is hier altijd een zon- en/of schaduw- plekje te vinden.
Aan de rechter-voorzijde vindt u de voormalige garage, welke is omgebouwd tot een bijkeuken en een sfeervolle beautysalon. Aan de linker voorzijde bevindt zich de ruime keuken, uitgerust met hoogwaardige apparatuur van SMEG, waaronder een 5-pits inductiekookplaat en een grote oven. De muur tussen de keuken en de woonkamer is geen dragende muur en kan er dus (gedeeltelijk) uit, voor meer licht vanuit de zuidzijde.
De extra grote woonkamer, met een openhaard, is op diverse manieren in te delen en heeft aan de tuinzijde nog de mogelijkheid voor een extra kamer of nu in gebruik als werkplek, met uitzicht over eigen tuin naar het terras aan het water.
Eerste verdieping
In de woonkamer leidt de trap naar de eerste verdieping. Hier bevinden zich drie ruime slaapkamers, groot genoeg voor een tweepersoonsbed, een kledingkast en een bureau. De luxe badkamer beschikt over een ruime inloopdouche. Tot slot is er op deze verdieping een groot washok met voldoende ruimte voor zowel een wasmachine als een droger.
Omgeving:
Deze woning is gelegen in de wijk Nieuw Sloten, op loopafstand van het winkelcentrum aan het Belgiëplein of het gezellige Hoofddorpplein. Hier vindt u een breed aanbod aan winkels, supermarkten en eetgelegenheden. In de directe omgeving zijn tevens diverse scholen, sportfaciliteiten en horecagelegenheden te vinden. De bereikbaarheid is uitstekend: met de auto bent u zo op de A4, A9 of A10 en ook het openbaar vervoer is goed geregeld. Voor ontspanning en natuur liggen het Sloterpark en de Sloterplas op loopafstand, terwijl het Vondelpark binnen ca. 10 minuten fietsen bereikbaar is.
Erfpacht:
Deze mooie woning is gelegen op eeuwigdurend afgekocht grond, zowel het huidige termijn als het eeuwigdurende termijn: Dus zolang je hier de bestemming ‘Wonen” niet veranderd is het Eigen grond en nooit meer canon betalingen.
Isolatie en verwarming:
Deze woning is volledig geïsoleerd;
2016 alle kozijnen vernieuwd (met luxaflex in het dubbele glas)
2022 zijn er 12 zonnepanelen op de zuiden geplaatst
2024 een Hybride warmtepomp geïnstalleerd.
Super lage stookkosten als gevolg
Bijzonderheden:
* Gelegen op eeuwig afgekochte erfpacht grond (eigen grond)
* Zeer goed ingedeelde tuin met diverse zit plekken
* Gelegen aan het water met eigen terras
* Extra werkruimte in de voormalige garage
* Grote tuin aanwezig 60m2 aan de achterzijde en een functionele tuin voorzijde
* 158 m2 (NEN rapport aanwezig)
* Keuken voorzien van zeer goede apparatuur
* A++ Label, een super goed geïsoleerde woning
* Parkeren op eigen oprit
Algemeen
- Plaats
- Amsterdam
- Status
- Verkocht
- Buurt
- Nieuw Sloten Noordoost
- Aantal kamers
- 6
- Aantal slaapkamers
- 4
- Woonoppervlakte
- 152 m2
- Perceel oppervlakte
- 204 m2
- Ligging
- Aan water, Aan rustige weg, In woonwijk, In bosrijke omgeving
- Bouwjaar
- 1993
- Type verwarming
- CV ketel, Warmtepomp
- Onderhoud buiten
- Goed tot uitstekend
- Onderhoud binnen
- Goed tot uitstekend
- Voorzieningen
- TV kabel
- Energieklasse
- A++
- Soort dak
- Plat dak
- Parkeer faciliteiten
- Openbaar parkeren, Betaald parkeren, Parkeervergunningen, Op eigen terrein
- Schuur/bergruimte
- 1
- Woning type
- Woonhuis

































