Gaelstraat 37, Haarlem
VerkochtBeschrijving
PUUR* wonen aan de Gaelstraat 37. Ruim, licht en sfeervol wonen in het hart van het Garenkokerskwartier!
Ben je op zoek naar een instapklare woning met karakter, ruimte én een fijne tuin, op loopafstand van de Haarlemse binnenstad? Dan is deze charmante stadswoning van ca. 112 m2 in de geliefde Gaelstraat precies wat je zoekt.
Deze woning, gebouwd in 1895, combineert de charme van de bouwperiode – hoge plafonds, grote ramen en veel licht – met het comfort van nu. De afgelopen jaren (vanaf 2021) is er veel gemoderniseerd: keuken, badkamer, toilet en kelder zijn vernieuwd en de woning is goed onderhouden.
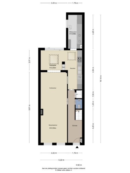
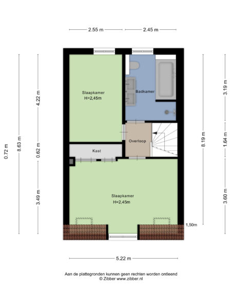
De indeling is praktisch en verrassend ruim: een lichte living met open keuken, een royale bijkeuken met volop bergruimte en plek voor wasapparatuur, en boven twee fijne slaapkamers met een moderne badkamer. Buiten vind je een zonnige stadstuin, een plek waar je heerlijk tot rust komt of gezellig kunt borrelen met vrienden.
Met energielabel C is de woning voor haar leeftijd al netjes op weg naar verduurzaming, met nog mogelijkheden om dit verder te verbeteren. Kom kijken en ervaar de sfeer van deze charmante woning!
Over de buurt:
Het Garenkokerskwartier is een geliefde, levendige en gezellige stadswijk vlak bij het centrum van Haarlem. Je woont hier rustig, maar loopt zó naar de binnenstad met al haar cafés, restaurants en boetiekjes. Ook voor de dagelijkse boodschappen hoef je de buurt niet uit: in de directe omgeving vind je buurtwinkels, speciaalzaken en koffietentjes. Daarnaast ben je binnen enkele minuten in de natuur – zoals de Brouwerskolk of Elswout – om even heerlijk uit te waaien of te wandelen. Het Garenkokerskwartier is bovendien populair bij jonge stellen, gezinnen en expats, wat zorgt voor een prettige mix van bewoners en een fijne sfeer.
Goed om te weten
* Zeer sfeervolle, ruime en lichte stadswoning
* Woonoppervlak ca. 112 m2 (zie meetrapport)
* Energielabel C
* Vanaf 2021 gemoderniseerd: keuken, bijkeuken, toilet, badkamer en kelder
* Goed onderhouden en makkelijk te betrekken
* Zonnige tuin om te ontspannen of gezellig te tafelen
* Charmante kenmerken uit de bouwperiode (ca. 1895)
* Praktische bijkeuken met veel bergruimte en was-droogvoorzieningen
* Twee slaapkamers, moderne badkamer
* Straat met 1-richtingsverkeer
* Gelegen in het gezellige, stadse en kindvriendelijke Garenkokerskwartier
* Op loopafstand van het bruisende centrum en Haarlem station
* Aanvaarding in overleg
*ENGLISH BELOW*
PUUR* living at Gaelstraat 37. Spacious, bright, and inviting living in the heart of the Garenkokerskwartier!
Are you looking for a move-in ready home with character, space, and a lovely garden, within walking distance of Haarlem’s city center? Then this charming townhouse of approximately 112 m2 on the popular Gaelstraat is exactly what you’re looking for.
Built in 1895, this house combines the charm of its time – high ceilings, large windows, and abundant light – with modern comforts. Extensive modernization has been carried out in recent years (as of 2021): the kitchen, bathroom, toilet, and basement have been renovated, and the house is well-maintained.
The layout is practical and surprisingly spacious: a bright living room with an open-plan kitchen, a generous utility room with ample storage and space for laundry appliances, and upstairs two comfortable bedrooms with a modern bathroom. Outside, you’ll find a sunny city garden, a perfect place to relax or enjoy drinks with friends.
With an energy label C, the house is well on its way to sustainability for its age, with opportunities for further improvement. Come and experience the atmosphere of this charming home!
About the neighborhood:
The Garenkokerskwartier is a popular, lively, and welcoming neighborhood near Haarlem’s city center. You’ll live here in a peaceful setting, yet the city center with all its cafés, restaurants, and boutiques is just a short walk away. You don’t even have to leave the neighborhood for daily shopping: local shops, specialty stores, and coffee shops are all nearby. Furthermore, you’re just minutes away from nature—such as the Brouwerskolk or Elswout—for a breath of fresh air or a stroll. The Garenkokerskwartier is also popular with young couples, families, and expats, creating a pleasant mix of residents and a welcoming atmosphere.
Good to know
* Very attractive, spacious, and bright city house
* Living area approx. 112 m2 (see measurement report)
* Energy label C
* Modernized from 2021: kitchen, utility room, toilet, bathroom, and basement
* Well-maintained and easy to move into
* Sunny garden for relaxing or enjoying a meal
* Charming features from the construction period (circa 1895)
* Practical utility room with ample storage space and washer/dryer facilities
* Two bedrooms, modern bathroom
* One-way street
* Located in the charming, urban, and child-friendly Garenkokerskwartier district
* Within walking distance of the vibrant city center and Haarlem station
* Acceptance upon agreement
Algemeen
- Plaats
- Haarlem
- Status
- Verkocht
- Buurt
- Garenkokerskwartier
- Aantal kamers
- 4
- Aantal slaapkamers
- 2
- Aantal badkamers
- 1
- Woonoppervlakte
- 112 m2
- Perceel oppervlakte
- 110 m2
- Ligging
- Aan rustige weg, In woonwijk
- Bouwjaar
- 1895
- Isolatie
- Dakisolatie, Dubbelglas
- Type verwarming
- CV ketel
- Onderhoud buiten
- Goed
- Onderhoud binnen
- Goed
- Voorzieningen
- Buitenzonwering, Rookkanaal, Schuifpui, Dakraam, Natuurlijke ventilatie
- Energieklasse
- C
- Soort dak
- Samengesteld dak
- Parkeer faciliteiten
- Betaald parkeren, Parkeervergunningen
- Woning type
- Woonhuis




































