Gasthuissingel 52, Haarlem
VerkochtBeschrijving
PUUR* wonen in dit karakteristieke herenhuis aan de Gasthuissingel met een heerlijk tuin op het zuiden! Aan de schilderachtige Gasthuisingel, waar het historische Haarlem zich van zijn mooiste kant laat zien, staat deze karaktervolle woning uit 1890 te koop. Met een royaal woonoppervlak van circa 154 m² en een perceel van 99 m² biedt dit pand een unieke kans om te wonen op een van de meest geliefde locaties van de stad.
De woning ademt de sfeer van vervlogen tijden, met hoge plafonds, originele details en een klassieke gevel die direct in het oog springt. Binnen treft u een zee van ruimte aan, verdeeld over meerdere verdiepingen, waardoor er volop mogelijkheden zijn voor een eigen indeling en inrichting. De aanwezigheid van een tuin van ongeveer 67 m² aan de achterzijde biedt een rustige plek om te ontspannen in de buitenlucht.
Locatie
Gelegen aan de Gasthuisingel geniet u van het beste van twee werelden: de rust van de singel en de nabijheid van het bruisende stadsleven. Op loopafstand vind je diverse winkels, gezellige restaurants, scholen, de Haarlemmerhout en culturele voorzieningen zoals de stadschouwburg. Daarnaast zijn het openbaar vervoer en uitvalswegen richting Amsterdam, Schiphol en andere steden uitstekend bereikbaar.
Goed om te weten
* Bouwjaar: 1890
* Woonoppervlakte: ca. 154 m²
* Tuin: ca. 67 m² (zuiden)
* Gelegen aan de sfeervolle Gasthuissingel
* Prachtige houten vloer door de gehele woning
* Originele glas-in-lood ramen
* 4 ruime slaapkamers en 2 badkamers
* Vloerverwarming op begane grond
* Luxe keuken voorzien van Quooker
* Oplevering in overleg
Indeling
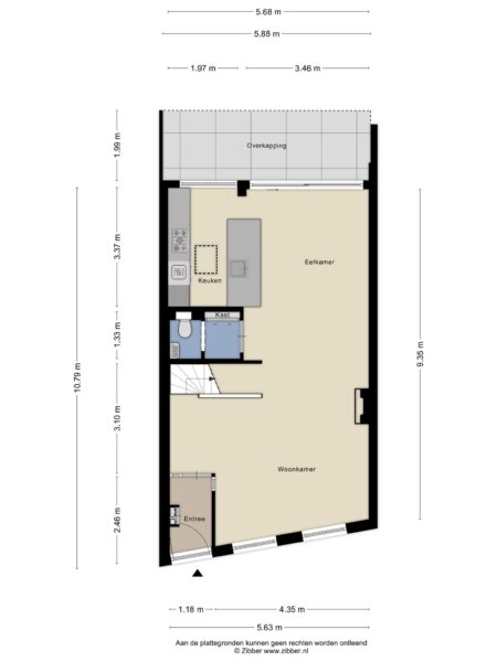
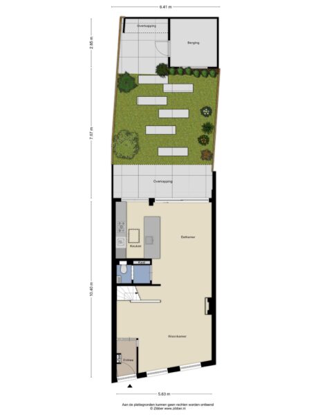
Parterre: Entree, hal met meterkast, lichte woonkamer met originele glas-in-lood ramen, open haard, visgraatvloer met vloerverwarming en een schuifpui naar de zonnige achtertuin van circa 10 meter diep op het zuiden met overkapping en vrijstaande houten berging. Moderne, open keuken voorzien van betonnen aanrechtblad en alle gemakken zoals een Quooker, gaskookplaat met wokbrander, afzuigkap, oven, magnetron, vaatwasser, een koel-vriescombinatie en wijnkelder. Hal met kast en modern toilet met fonteintje;
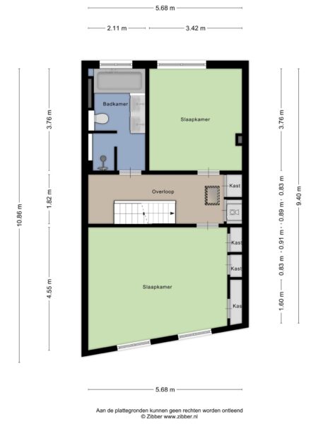
1e Etage: Overloop met 2 vaste kasten waarvan een met aansluiting voor de wasmachine/droger, ruime slaapkamer aan de voorzijde met vaste kastenwand, slaapkamer achterzijde, luxe moderne badkamer voorzien van ligbad, inloop regendouche, 2e toilet, dubbel wastafelmeubel, spiegelverwarming en handdoekradiator.
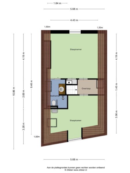
2e Etage: Overloop met Velux dakraam en lichtstraat, ruime slaapkamer voorzijde met balken in het zicht, ruime slaapkamer achterzijde met eveneens balken in het zicht, moderne 2e badkamer (en-suite) voorzien van inloop regendouche, toilet en wastafel. Vliering met extra bergruimte;
Zie voor de indeling en maatvoering de plattegronden. De brochure is te downloaden via onze eigen website.
*ENGLISH*
PUUR* living in this characteristic townhouse on Gasthuissingel with a lovely south-facing garden! On the picturesque Gasthuisingel, where historical Haarlem shows itself from its best side, this characteristic house from 1890 is for sale. With a generous living area of around 154 m² and a plot of 99 m², this property offers a unique opportunity to live in one of the city’s most popular locations.
The property exudes the atmosphere of days gone by, with high ceilings, original details and a classic façade that immediately catches the eye. Inside, you will find a sea of space spread over several floors, providing plenty of opportunities for your own layout and decoration. The presence of a garden of approximately 67 m² at the rear offers a quiet place to relax in the open air.
Location
Located on Gasthuisingel, you will enjoy the best of both worlds: the tranquillity of the canal and the proximity of bustling city life. Within walking distance you will find various shops, cosy restaurants, schools, the Haarlemmerhout and cultural facilities such as the city theatre. In addition, public transport and arterial roads towards Amsterdam, Schiphol and other cities are easily accessible.
Good to know
* Built in 1890
* Living area: approx. 154 m²
* Garden: approx. 67 m² (south)
* Located on the charming Gasthuissingel
* Beautiful wooden floor throughout the house
* Original stained-glass windows
* 4 spacious bedrooms and 2 bathrooms
* Underfloor heating on ground floor
* Luxury kitchen with Bosch appliances and Quooker
* Delivery in consultation
Layout
Ground floor: Entrance hall with meter cupboard, bright living room with original stained-glass windows, fireplace, herringbone floor with underfloor heating and sliding doors to the sunny south-facing back garden of about 10 metres deep with canopy and detached wooden shed. Modern, open kitchen with concrete countertop and all conveniences such as a Quooker, ATAG gas hob with wok burner, extractor hood, oven, microwave, dishwasher, fridge-freezer and wine cellar. Hall with cupboard and modern toilet with hand basin;
1st floor: Landing with 2 closets, one of which has washer/dryer connections, spacious bedroom at the front with closet, rear bedroom, luxurious modern bathroom with bath, walk-in rain shower, 2nd toilet, double washbasin, mirror heating and towel radiator.
2nd floor: landing with Velux skylight and skylight, spacious front bedroom with exposed beams, spacious rear bedroom with exposed beams, modern 2nd bathroom (en-suite) with walk-in rain shower, toilet and washbasin. Attic with additional storage space;
Outside space: The over 10-metre deep south-facing back garden has a new wooden shed.
See floor plans for layout and dimensions. The brochure can be downloaded from our own website.
Algemeen
- Plaats
- Haarlem
- Status
- Verkocht
- Buurt
- Welgelegen
- Aantal kamers
- 5
- Aantal slaapkamers
- 4
- Aantal badkamers
- 2
- Woonoppervlakte
- 154 m2
- Perceel oppervlakte
- 125 m2
- Ligging
- In centrum, Vrij uitzicht, Aan vaarwater
- Bouwjaar
- 1890
- Isolatie
- Vloerisolatie, Dubbelglas
- Type verwarming
- CV ketel
- Onderhoud buiten
- Uitstekend
- Onderhoud binnen
- Uitstekend
- Voorzieningen
- Mechanische ventilatie, Rookkanaal, Schuifpui, Dakraam, Glasvezel kabel
- Energieklasse
- D
- Soort dak
- Mansardedak
- Parkeer faciliteiten
- Betaald parkeren, Parkeervergunningen
- Woning type
- Woonhuis








































































