Gedempte Oude Gracht 111B, Haarlem
VerkochtBeschrijving
*ENGLISH TEXT BELOW*
PUUR* wonen aan de Gedempte Oude Gracht 111 B. Licht, ruimte en met alle stadse gezelligheid binnen handbereik!
Ben jij starter en op zoek naar een eigen plek in hartje Haarlem? Dan is dit 2-kamer stadsappartement van ca. 66 m2 op de tweede verdieping van een monumentaal pand precies wat je zoekt. Een fijne, lichte woning met volop mogelijkheden – én gelegen op een toplocatie in de historische binnenstad.
De ruime living springt er meteen uit: dankzij de breedte en de drie grote raampartijen geniet je hier de hele dag van licht en een leuk uitzicht over de levendige Gedempte Oude Gracht. Daarnaast is er een ruime slaapkamer en een nette, maar eenvoudige afwerking. Perfect voor wie met een beetje creativiteit en werklust dit appartement helemaal naar eigen smaak wil moderniseren en zo een comfortabele en eigentijdse thuisbasis creëert.
Over de locatie:
Je woont hier midden in het centrum van Haarlem, omringd door alles wat de stad te bieden heeft. Van gezellige cafés en restaurants tot winkels, supermarkten en cultuur – alles ligt letterlijk voor de deur. Ook het station is op loopafstand, waardoor je binnen no-time in Amsterdam of op het strand zit. Dit is écht wonen met de stad aan je voeten.
Voor starters extra interessant:
Koop je voor het eerst een woning, dan profiteer je mogelijk van de vrijstelling van overdrachtsbelasting (tot 35 jaar, bij aankoopwaarde tot € 525.000 in 2025). Dat kan duizenden euro’s schelen bij de aankoop. Bovendien zijn er gunstige hypotheekvormen voor starters beschikbaar, waardoor dit appartement niet alleen leuk wonen is, maar ook financieel aantrekkelijk kan zijn.
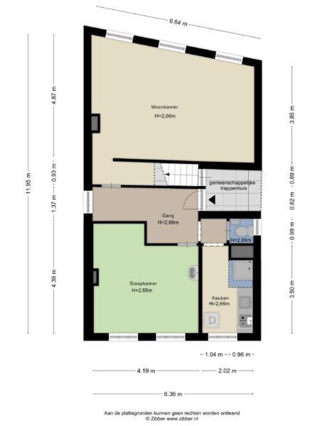
Zie voor de indeling en de maatvoering de plattegrond.
Goed om te weten
* Woonoppervlak ca. 66 m2 (zie meetrapport)
* Heerlijk licht appartement door grote raampartijen
* Monumentaal pand met karakter
* Ruime living met drie grote ramen en leuk uitzicht op de Gedempte Oude Gracht
* Ruime slaapkamer
* Netjes, maar basic – volop mogelijkheden om te moderniseren
* VvE = 3 appartementen en een winkel
* Maandelijkse bijdrage € 180,- = € 30,- servicekosten en € 150,- voorschot gas/elektra
* Gelegen in de historische binnenstad met alle voorzieningen voor de deur
* Station Haarlem op loopafstand
* Interessante koopkans voor starters, met fiscale voordelen
* Aanvaarding in overleg, bij voorkeur snel
* Brochure is te downloaden via onze eigen website
*ENGLISH*
PUUR* living at Gedempte Oude Gracht 111 B. Light, space, and all the city’s charm within easy reach!
Are you a first-time buyer looking for your own place in the heart of Haarlem? Then this 2-room city apartment of approximately 66 m2 on the second floor of a historic building is exactly what you’re looking for. A lovely, bright home with plenty of possibilities – and situated in a prime location in the historic city center.
The spacious living room immediately stands out: thanks to its width and the three large windows, you can enjoy light all day long and a lovely view of the lively Gedempte Oude Gracht. There’s also a spacious bedroom and a neat, yet simple finish. Perfect for those who, with a little creativity and a work ethic, want to modernize this apartment completely to their own taste and create a comfortable and contemporary home base.
About the location:
You’ll live right in the center of Haarlem, surrounded by everything the city has to offer. From cozy cafés and restaurants to shops, supermarkets, and cultural attractions – everything is literally on your doorstep. The train station is also within walking distance, so you can be in Amsterdam or on the beach in no time. This is truly living with the city at your feet.
Particularly attractive for first-time buyers:
If you’re buying a home for the first time, you may benefit from the property transfer tax exemption (for up to 35 years, with a purchase value of up to € 510.000,- in 2025). This can save you thousands of euros on your purchase. Moreover, favorable mortgage options are available for first-time buyers, making this apartment not only a pleasant place to live but also financially attractive.
See the floor plan for the layout and dimensions.
Good to know
* Living area approx. 66 m2 (see measurement report)
* Wonderfully bright apartment thanks to large windows
* Historic building with character
* Spacious living room with three large windows and a lovely view of the Gedempte Oude Gracht
* Spacious bedroom
* Neat, but basic – plenty of room for modernization
* Homeowners’ Association = 3 apartments and a shop
* Monthly contribution of € 180,- = € 30,- service costs and € 150,- advance gas/electricity
* Located in the historic city center with all amenities on your doorstep
* Haarlem train station within walking distance
* Interesting purchase opportunity for first-time buyers, with tax benefits
* Acceptance by agreement, preferably soon
* Brochure can be downloaded from our website
Algemeen
- Plaats
- Haarlem
- Status
- Verkocht
- Buurt
- Binnenstad
- Aantal kamers
- 2
- Aantal slaapkamers
- 1
- Woonoppervlakte
- 66 m2
- Ligging
- In centrum, Vrij uitzicht
- Bouwjaar
- 1880
- Isolatie
- Vloerisolatie
- Type verwarming
- CV ketel
- Onderhoud buiten
- Goed
- Onderhoud binnen
- Redelijk tot goed
- Voorzieningen
- Mechanische ventilatie, Natuurlijke ventilatie
- Soort dak
- Mansardedak
- Parkeer faciliteiten
- Betaald parkeren, Parkeervergunningen
- Woning type
- Appartement



















