Generaal Spoorlaan 97, Haarlem
VerkochtBeschrijving
PUUR* wonen in dit ruime 3-kamer appartement gelegen in een goed onderhouden appartementencomplex met eigen parkeerplek in de ondergelegen parkeergarage en extra berging. Dit complex is in 2008 gebouwd en beschikt over een energielabel A.
Wie met de lift of via de trap naar de eerste verdieping gaat, komt uit op een binnenplaats waar alle voordeuren op uitkomen. Je waant je hier in een totaal andere wereld. Met de kleurige deuren en de prachtige leistenen tegen de muren weet je niet wat je ziet.
Met een voortuin op het oosten en een balkon op het westen kan je zowel in de ochtend als de avond van de zon genieten. De ruime hal is ook voor mindere validen of mensen met kleine kinderen zeer geschikt De ligging is centraal te noemen nabij winkelcentrum Marsmanplein, uitvalswegen en het Schoterbos.
Goed om te weten:
* 100m2 woonoppervlak
* Bouwjaar 2008
* Energielabel A ( (gunstige hypotheek voorwaarden)
* Eigen parkeerplek in de afgesloten garage
* Actieve VvE; €190,- p/m
* Lift aanwezig
* Nette laminaatvloer door gehele woning gelegd
* Glas-in-lood details tussendeur
* Oplevering: kan snel
Indeling:
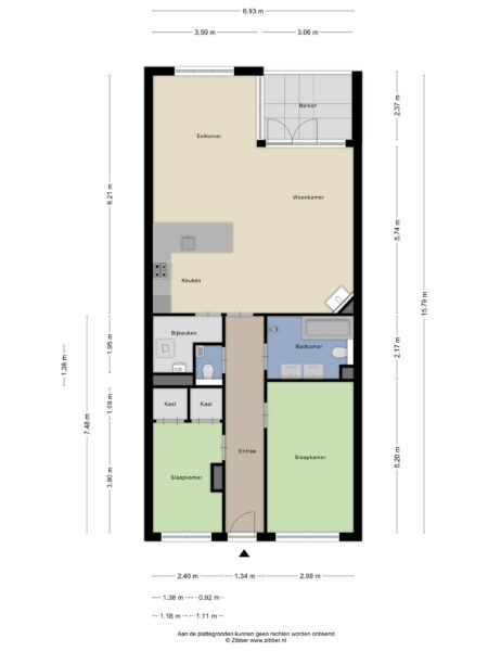
Via het gemeenschappelijke trappenhuis of de lift bereik je het appartement op de eerste verdieping. De ruime hal en binnenplaats geeft toegang tot alle vertrekken. Aan de voorzijde bevinden zich de twee slaapkamers, welke voorzien zijn van diepe inbouwkasten, verderop in de hal een seperaat toilet en aan de andere kant de ruime badkamer met ligbad, extra toilet, designradiator en dubbele wastafel. Aan de achterkant van de woning bevindt zich de ruime woon/eetkamer met toegang tot het balkon en volledig uitgeruste keuken met ontbijtbar.
Tevens is hier nog een ruime bergkast voor wasmachine en droger.
Ben je op zoek naar een licht, verzorgd appartement met balkon op een rustige en centrale plek in Haarlem?
Algemeen
- Plaats
- Haarlem
- Status
- Verkocht
- Buurt
- Rivierenbuurt
- Aantal kamers
- 3
- Aantal slaapkamers
- 2
- Woonoppervlakte
- 100 m2
- Ligging
- Aan park, Aan rustige weg, In woonwijk
- Bouwjaar
- 2008
- Isolatie
- Dakisolatie, Muurisolatie, Volledig geïsoleerd, HR glas
- Type verwarming
- CV ketel
- Onderhoud buiten
- Goed tot uitstekend
- Onderhoud binnen
- Goed
- Voorzieningen
- TV kabel, Buitenzonwering, Lift, Natuurlijke ventilatie
- Energieklasse
- A
- Soort dak
- Plat dak
- Parkeer faciliteiten
- Parkeergarage, Op afgesloten terrein
- Schuur/bergruimte
- 1
- Woning type
- Appartement
















































