Grebberstraat 38, Haarlem
BeschikbaarPrijs: € 425.000,-
Beschrijving
PUUR* wonen in de gezellig Frans Hals buurt in een woning die naar eigen smaak kan worden verbouwd. Dit vrijwel nog originele stadshuis met fijne tuin op het zuiden kan worden uitgebouwd en opgebouwd en is dus ideaal om nog in te kunnen groeien!
De ligging is ideaal in een gezellige, kinderrijke woonomgeving en op loopafstand van o.a. het centraal station, het bruisende Haarlemse stadshart, de Schotersingel en het gezellige Kleverpark. De Haarlemse Kweektuin (met kinderboerderij en nieuwe Natuurspeeltuin de ‘Paddenpoel’), speeltuin Burght ter Cleef en diverse basisscholen maken de buurt kindvriendelijk. De buurt is eveneens uitermate geschikt voor de dagelijkse boodschappen met buurtwinkels zoals een bakker, slager en het oude Zuivelhuis. Ook kun je heerlijk eten bij restaurant VandeSande of koffiedrinken in het Kweekcafé of bij Cleeff. En bovendien zo naar het Bloemendaalse strand.
Goed om te weten:
* Compleet naar eigen smaak te renoveren
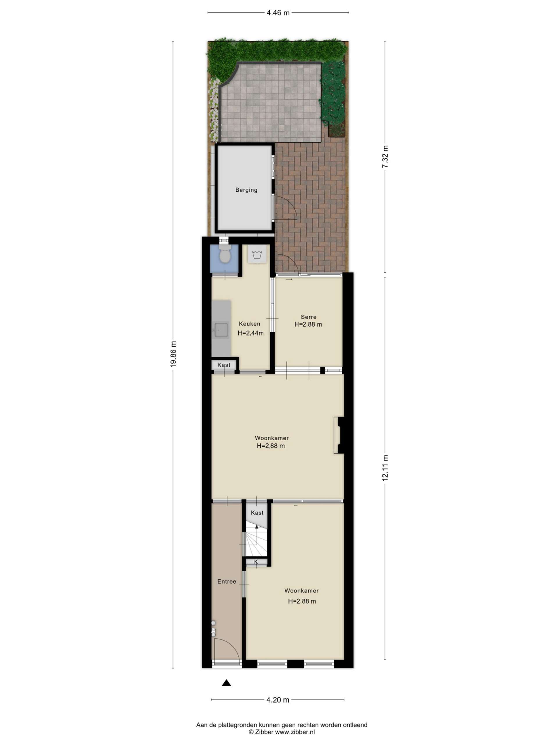
* Woonoppervlak ca. 86 m2 (zie meetrapport)
* Mogelijkheid voor op- en uitbouw
* Energielabel G
* Fijne tuin op het zuiden
* Ideale ligging Frans Halsbuurt nabij Kleverpark
* Gemetselde fundering
* Gunstige locatie nabij station, stad en alle voorzieningen
* Aanvaarding in overleg
Indeling
Begane grond: Entree, woonkamer-en-suite met serre en keuken in de uitbouw, tuin op het zuiden met schuur.
1e Verdieping: riante overloop, badkamer met wastafel en douche luik naar vliering over de breedte van het huis, slaapkamer aan achterzijde, slaapkamer aan voorzijde.
Kenmerken
- Koopprijs
- € 425.000,-
- Plaats
- Haarlem
- Status
- Beschikbaar
- Buurt
- Frans Halsbuurt
- Aantal kamers
- 3
- Aantal slaapkamers
- 2
- Aantal badkamers
- 1
- Woonoppervlakte
- 86 m2
- Perceel oppervlakte
- 88 m2
- Bouwjaar
- 1900
- Type verwarming
- CV ketel
- Onderhoud buiten
- Slecht tot matig
- Onderhoud binnen
- Slecht tot matig
- Voorzieningen
- Schuifpui
- Energieklasse
- G
- Soort dak
- Mansardedak
- Parkeer faciliteiten
- Betaald parkeren, Parkeervergunningen
- Schuur/bergruimte
- 1
- Woning type
- Woonhuis
Plattegronden
Uitzicht op straat
Zoek de locatie
kom jij kijken?
Een bezoek vertelt het meest. Onze makelaars nemen graag de tijd voor een rustige rondleiding.
Contacteer ons nu






















































