Herenweg 15A, Heemstede
BeschikbaarPrijs: € 1.325.000,-
Beschrijving
In een prachtige bosrijke omgeving met volop privacy staat deze halfvrijstaande villa op een ruime, zonnige kavel. De villa ligt direct tegenover het Groenendaalse bos en aan de achterzijde heeft het een landelijke ligging. Door deze vrije ligging geniet je hier zowel binnen als buiten optimaal van je privacy en van de rust. Voor het huis vind je de voortuin, de garage en de oprit met ruimte voor 2 auto’s. De achtertuin is heerlijk zonnig en is voorzien van een groot zonnig terras en een zwembad welke gerenoveerd dient te worden. Deze twee-onder-een kap villa heeft een brede maatvoering en is verrassend ruim. Op de parterre vind je een zeer lichte woonkamer, een open keuken met een kookeiland en een comfortabele was-/bergruimte. De 1e verdieping bestaat o.a. uit 5 slaapkamers en een badkamer. De villa is jaren met liefde bewoond maar zal door de nieuwe bewoners naar de huidige woonwensen gerenoveerd worden. Heb je behoefte aan meer ruimte dan kan je aan de achterzijde uitstekend uitbouwen en je hebt de mogelijkheid om een grote dakkapel aan de voorzijde te plaatsen waardoor je op de 1e verdieping een extra kamer en/of badkamer kan realiseren.
Op korte fietsafstand vind je de gezellige Binnenweg/Raadhuisstraat waar je uitstekend terecht kunt voor je dagelijkse boodschappen, lekker kunt eten en leuke boetieks vindt. Ook ben je zo in het centrum van Haarlem, zit je in de trein naar Leiden/Den Haag of Amsterdam of wandel je over het strand. In de nabije omgeving liggen diverse natuurgebieden waaronder het Groenendaalse bos aan de overkant, een heerlijk plek om met de kinderen tijd door te brengen, je vindt hier o.a. een kinderboerderij en een speeltuin en je kan hier fijn met of zonder hond wandelen. Diverse basisscholen, middelbaar en hoger onderwijs liggen net als de vele sportfaciliteiten dichtbij. En ga je met de auto op pad dan zit je zo op één van de uitvalswegen.
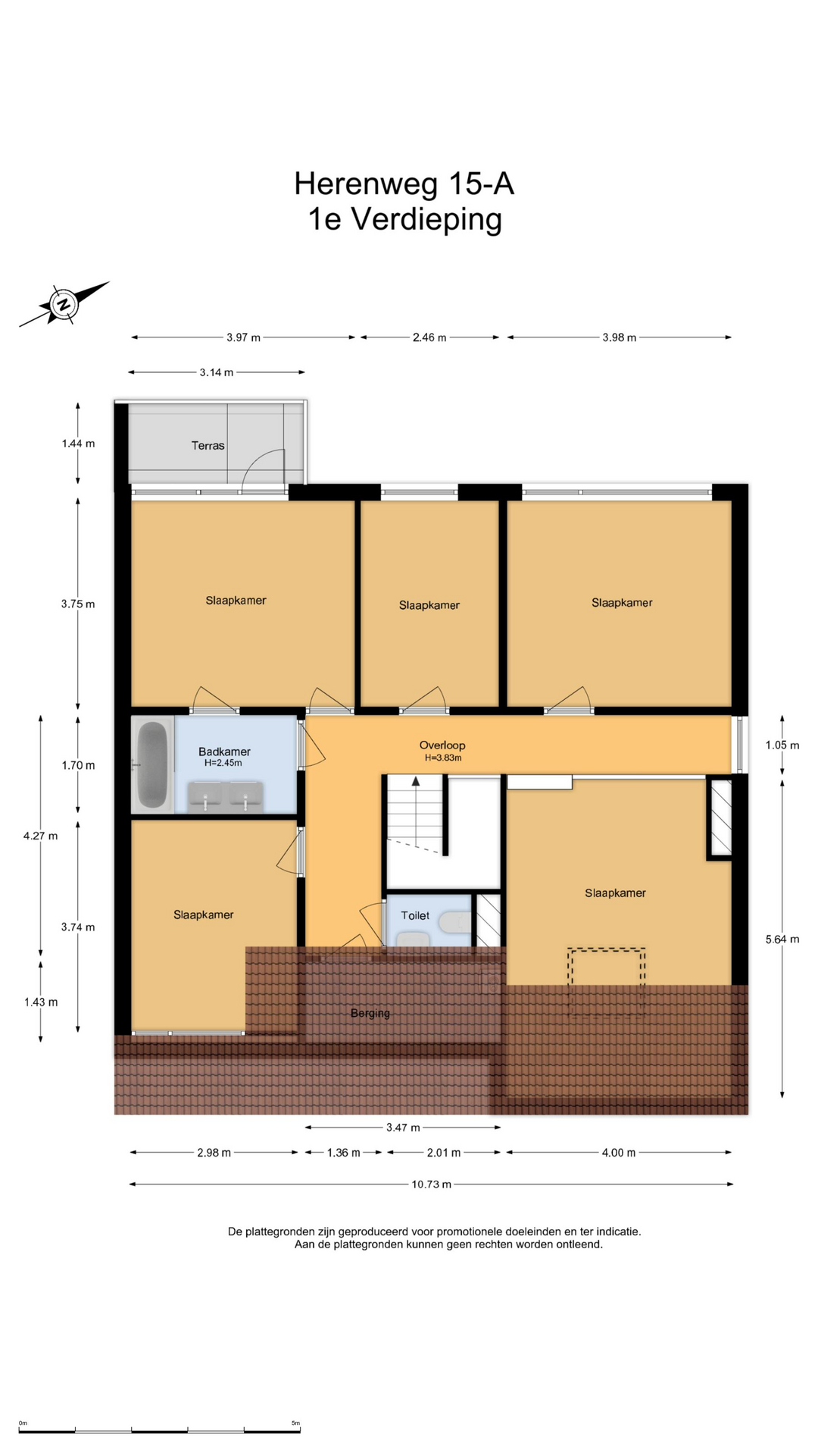
Indeling:
Parterre: entree, hal voorzien van garderobe en toilet met fontein, zeer lichte woonkamer voorzien van open haard, extra zijraam, schuifpui aan voor- en achterzijde naar tuin, nette open keuken voorzien van kookeiland, diverse inbouwapparatuur, deur naar tuin en dubbele deuren naar royale was-/bergruimte, trap in woonkamer naar…..
1e Verdieping: ruime overloop voorzien van 2e toilet met fontein en berg-/stookruimte, royale studeer-/speel-/chill kamer met dakraam, slaapkamer aan voorzijde met dakkapel, 3 slaapkamers aan achterzijde waarvan 1 met deur naar balkon en tevens toegang naar badkamer voorzien van ligbad/douche combinatie en dubbele wastafel
Bijzonderheden:
* Woonoppervlakte ca. 180 m2, inhoud ca. 750 m3 en 893 m2 eigen grond
* Volop privacy
* Fijn gezinshuis met 6 kamers
* Voorzien van alarminstallatie
* Vrije ligging aan voor- en achterzijde
* Zeer zonnige tuin voorzien van zwembad (renovatie noodzakelijk)
* Royale oprit aan voorzijde
* Stenen garage aanwezig
* 12 Zonnepanelen
* Voor indeling en maatvoering zie plattegronden
* Oplevering in overleg
Kenmerken
- Koopprijs
- € 1.325.000,-
- Plaats
- Heemstede
- Status
- Beschikbaar
- Buurt
- Rivierenbuurt
- Aantal kamers
- 6
- Aantal slaapkamers
- 5
- Aantal badkamers
- 1
- Woonoppervlakte
- 180 m2
- Perceel oppervlakte
- 893 m2
- Ligging
- Aan bosrand, Vrij uitzicht, In bosrijke omgeving
- Bouwjaar
- 1974
- Isolatie
- Dubbelglas
- Type verwarming
- CV ketel, Open haard
- Onderhoud buiten
- Goed
- Onderhoud binnen
- Goed
- Voorzieningen
- alarminstallatie, TV kabel, Buitenzonwering, Zwembad, Rookkanaal, Schuifpui, Dakraam, Zonnepanelen
- Energieklasse
- C
- Soort dak
- Zadeldak
- Parkeer faciliteiten
- Op eigen terrein
- Schuur/bergruimte
- 1
- Woning type
- Woonhuis
Plattegronden
Uitzicht op straat
Zoek de locatie
kom jij kijken?
Een bezoek vertelt het meest. Onze makelaars nemen graag de tijd voor een rustige rondleiding.
Contacteer ons nu




















































