Jacob van Campenstraat 8, Heemstede
Verkocht onder voorbehoudPrijs: € 950.000,-
Beschrijving
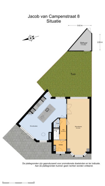
Deze zeer verrassende en sfeervolle hoekwoning staat midden in een gezellige woonomgeving met de Raadhuisstraat, de Binnenweg en de haven om de hoek. Aan de achterzijde is de woning voorzien van een stijlvolle dakopbouw en de voormalige garage is omgetoverd tot een heerlijke, luxe woonkeuken. Samen met de woonkamer, de 5 slaapkamers en 2 badkamers zorgt dit voor een geweldig woongenot en is er genoeg ruimte voor het hele gezin. Door de vele kamers is er ook een uitstekende mogelijkheid om thuis te werken. Op de begane grond vind je een lichte woonkamer met een gezellige ziterker en een luxe woonkeuken. De keuken is echt een eyecatcher en de ideale plek voor een kookliefhebber. Zo is de keuken voorzien van een kook-/spoeleiland, diverse inbouwapparatuur w.o. 2 ovens, 2 vaatwassers, een wijnklimaatkast en een sfeervolle gashaard die voor extra warmte en gezelligheid zorgt. De 1e verdieping bestaat uit 4 slaapkamers en een moderne badkamer met dubbele douche. Op de 2e verdieping bevindt zich de 5e slaapkamer met een eigen moderne badkamer. Deze geschakelde 30-er jaren woning met een luxe, moderne afwerking is instap klaar. Hier hoef je alleen de verhuisdozen uit te pakken en zodra je binnen bent genieten van alle wooncomfort en de fijne leefruimte. Maar buiten is net zo verrassend. Aan de achterzijde is een zonnige tuin op het zuidoosten met veel privacy. De tuin is voorzien van een vrijstaande schuur met een achterom. Via een trap in de tuin is het royale, zonnige dakterras te bereiken, zodat je altijd een fijn plekje in de zon hebt. Aan de voorzijde van de woning heb je een voortuin en de mogelijkheid om 2 auto’s op eigen terrein te parkeren. Deze fijne gezinswoning staat in een autoluwe en zeer kindvriendelijke straat. Zodra je de woning uitloopt, wandel je direct naar de winkelstraat waar je uitstekend terecht kunt voor je boodschappen, leuke boetieks vindt, kan eten in één van de vele eetgelegenheden of de wekelijkse markt kan bezoeken. Met enkele fietsminuten ben je in het Groenendaalse bos, lig je in het overdekte zwembad of sta je op één van de vele sportvelden. Ook diverse basisscholen, voortgezet-, middelbaar- en hoger onderwijs liggen dichtbij. En op de fiets ben je zo bij NS-station Heemstede-Aerdenhout met rechtstreekse verbinding naar o.a. Den Haag, Leiden, Haarlem en Amsterdam of sta je midden in het historische stadshart van Haarlem. En wat te denken van even op de fiets naar naar het strand en de duinen van Zandvoort/Bloemendaal, je bent er zo. Ook vind je in de directe woonomgeving diverse uitvalswegen.
Indeling:
Parterre: entree, vestibule met granitovloer, hal voorzien van granitovloer en royaal modern zwevend toilet met fontein, lichte woonkamer voorzien van erker met zitvensterbank, vaste kasten, houtlook pvc vloer en openslaande deuren naar luxe woonkeuken voorzien van kook-/spoeleiland, diverse inbouwapparatuur (w.o. wijnklimaatkast, dubbele vaatwasser), gashaard, lichtkoepel, shutters, openslaande deuren naar voortuin en openslaande deuren naar achtertuin, via hal trap naar…….
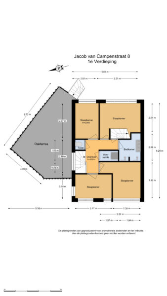
1e Verdieping: overloop met modern zwevend toilet en diepe kast met wasmachine aansluiting, 2 slaapkamers aan voorzijde waarvan 1 met extra zijraam, 2 slaapkamers aan achterzijde, moderne badkamer voorzien van dubbele inloopdouche met extra handdouche en meubel met dubbele wastafel, via overloop trap naar…
2e Verdieping: slaapkamer met dakkapel, vaste kastenwand, kast met cv-ketel en moderne badkamer met inloopdouche, zwevend toilet en wastafelmeubel
Bijzonderheden:
* Woonoppervlakte ca. 135 m2, inhoud ca. 493 m3 en 187 m2 eigen grond
* Zo te betrekken
* Ideaal gezinshuis met 5 slaapkamers en 2 badkamers
* Achterzijde voorzien van dakopbouw
* Diverse extra’s w.o. airco, elektrische zonwering en rolluiken
* Zonnige tuin en zonnig dakterras
* Achterom aanwezig
* Mogelijkheid voor parkeren 2 auto’s op eigen terrein
* Voor indeling en maatvoering zie plattegronden
* Oplevering in overleg
Kenmerken
- Koopprijs
- € 950.000,-
- Plaats
- Heemstede
- Status
- Verkocht onder voorbehoud
- Buurt
- Centrum
- Aantal kamers
- 6
- Aantal slaapkamers
- 5
- Aantal badkamers
- 2
- Woonoppervlakte
- 135 m2
- Perceel oppervlakte
- 187 m2
- Ligging
- Aan rustige weg, In woonwijk
- Bouwjaar
- 1929
- Type verwarming
- CV ketel, Gashaard
- Onderhoud buiten
- Goed tot uitstekend
- Onderhoud binnen
- Goed tot uitstekend
- Voorzieningen
- TV kabel, Buitenzonwering, Airconditioning
- Energieklasse
- D
- Soort dak
- Samengesteld dak
- Parkeer faciliteiten
- Openbaar parkeren, Op eigen terrein
- Woning type
- Woonhuis
Plattegronden
Uitzicht op straat
Zoek de locatie
kom jij kijken?
Een bezoek vertelt het meest. Onze makelaars nemen graag de tijd voor een rustige rondleiding.
Contacteer ons nu





























































