Jan Evertsenstraat 6, Haarlem
VerkochtBeschrijving
PUUR* wonen aan de Jan Evertsenstraat 6 in Haarlem. Licht en comfortabel wonen met tuin én dakterras.
In het gezellige Houtvaartkwartier, vlak bij het centrum én de natuur, ligt deze fijne en lichte woning van ca. 73 m2 met een zonnige voor- en achtertuin én een dakterras. Goed onderhouden, instapklaar en met verrassend veel buitenruimte – hier woon je heerlijk rustig en toch centraal!
Wat maakt deze woning zo fijn?
– Licht en ruimte: De woning heeft een lichte woonkamer, een half open keuken en een praktische bijkeuken. Met 3 slaapkamers en een ruime vliering met dakraam is er plek genoeg, ook voor gezinnen of thuiswerkers. Verder is er de mogelijkheid voor opbouw van een extra verdieping voor nog meer woonruimte!
– Zon op elk moment van de dag: Geniet van de ochtendzon in de voortuin, rust in de knusse achtertuin en relax in de avondzon op het dakterras. Er is altijd wel een fijne plek om buiten te zitten.
– Goed onderhouden: De woning is netjes en verzorgd, zo kun je er zó in!. In 2024 zijn de voor- en achtergevel gereinigd en geïmpregneerd en is een deel van het buitenschilderwerk gedaan.
– Toplocatie: Gelegen in het gezellige Houtvaartkwartier. Zwembad de Houtvaart ligt om de hoek, de stad en alle winkelvoorzieningen op loopafstand en je bent zó in het groen van de duinen of het bos. Een ideale plek voor starters, gezinnen en natuurliefhebbers.
Een fijne, lichte en complete woning op een leuke plek in Haarlem – kom snel kijken en ervaar het zelf!
Goed om te weten:
* Fijne en lichte stadswoning met 3 slaapkamers
* Woonoppervlakte ca. 73 m2 (zie meetrapport)
* Zonnige voor- en achtertuin + dakterras
* Mogelijkheid voor opbouw extra verdieping voor meer leefruimte
* Goed onderhouden en makkelijk te betrekken
* Voor- en achtergevel gereinigd/geïmpregneerd (2024)
* Nieuwe kozijnen met HR++ glas op 1e verdieping achterzijde (2024)
* Diverse ramen v.v. nieuw HR++ glas (2025)
* Energielabel E
* Vrij parkeren in de buurt
* Gelegen in rustige, kindvriendelijke buurt nabij veel voorzieningen
* Dicht bij stad én natuur
Indeling:
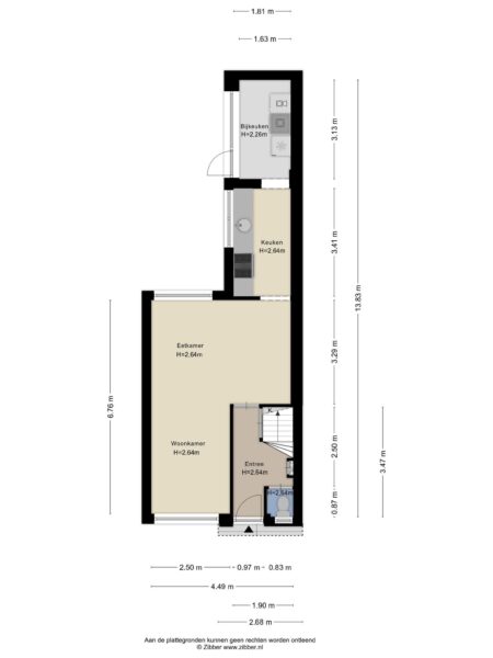
Begane grond: entree/hal met toiletruimte en trapkast. De lichte living heeft het zitgedeelte aan de voorzijde en het eetgedeelte aan de achterzijde. De halfopen keuken heeft een recht keukenblok en diverse keukenapparatuur staat in de naastgelegen bijkeuken waar ook ruimte is voor opslag en de wasapparatuur. Knusse tuin op het zuiden.
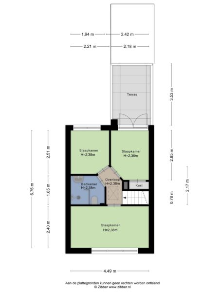
1e Verdieping: overloop, ruime slaapkamer aan de voorzijde, badkamer met inloopdouche en wastafel, 2 slaapkamers aan de achterzijde waarvan 1 met vaste kast en deur naar het zonnige dakterras.
Vliering: via vlizotrap bereikbare vliering met dakraam en veel bergruimte. Hier hangt ook de cv-ketel.
De brochure kan je downloaden via onze eigen website.
*ENGLISH*
PUUR* living at Jan Evertsenstraat 6 in Haarlem. Light and comfortable living with garden and roof terrace.
In the cosy Houtvaartkwartier, close to the centre and nature, you will find this nice and light house of approx. 73 m2 with a sunny front and back garden and a roof terrace. Well maintained, ready to move in and with a surprising amount of outdoor space – here you live peacefully and yet centrally!
What makes this property so nice?
– Light and space: The house has a bright living room, a half-open kitchen and a practical pantry. With 3 bedrooms and a spacious loft with skylight, there is plenty of space, even for families or home workers. Furthermore, there is the possibility of building an extra floor for even more living space!
– Sun at any time of day: Enjoy the morning sun in the front garden, rest in the cosy backyard and relax in the evening sun on the roof terrace. There is always a nice place to sit outside.
– Well-maintained: The house is neat and tidy, so you can move in in no time! In 2024, the front and rear facade were cleaned and impregnated and part of the exterior painting was done.
– Top location: Located in the cosy Houtvaartkwartier. Swimming pool de Houtvaart is just around the corner, the city and all shopping facilities within walking distance and you are within easy reach of the green dunes or forest. An ideal place for starters, families and nature lovers.
A nice, light and complete house in a nice place in Haarlem – come and see for yourself!
Good to know:
* Nice and light town house with 3 bedrooms
* Living area approx. 73 m2 (see measurement report)
* Sunny front and back garden + roof terrace
* Possibility to build an extra floor for more living space
* Well maintained and easy to move into
* Front and back facade cleaned/impregnated (2024)
* Several windows/doors renewed and all double glazed
* Energy label E
* Free parking in the neighbourhood
* Located in quiet, child-friendly neighbourhood near many amenities
* Close to city and nature
Layout:
Ground floor: entrance/hallway with toilet and stairs cupboard. The bright living room has the sitting area at the front and the dining area at the back. The semi-open kitchen has a straight kitchen unit and various kitchen appliances are in the adjacent scullery where there is also room for storage and the washing equipment. Cosy south-facing garden.
1st Floor: landing, spacious bedroom at the front, bathroom with walk-in shower and washbasin, 2 bedrooms at the rear of which 1 with closet and door to the sunny roof terrace.
Attic: via loft ladder accessible attic with skylight and plenty of storage space. Here is also the central heating boiler.
The brochure can be downloaded from our website.
Algemeen
- Plaats
- Haarlem
- Status
- Verkocht
- Buurt
- Zeeheldenbuurt
- Aantal kamers
- 4
- Aantal slaapkamers
- 3
- Aantal badkamers
- 1
- Woonoppervlakte
- 73 m2
- Perceel oppervlakte
- 86 m2
- Ligging
- Aan rustige weg, In woonwijk
- Bouwjaar
- 1933
- Isolatie
- Dubbelglas, HR glas
- Type verwarming
- CV ketel
- Onderhoud buiten
- Goed
- Onderhoud binnen
- Goed
- Voorzieningen
- Dakraam, Glasvezel kabel
- Energieklasse
- E
- Soort dak
- Zadeldak
- Parkeer faciliteiten
- Openbaar parkeren
- Woning type
- Woonhuis





































