Kamerlingh Onnesstraat 42, Haarlem
Onder optiePrijs: € 2.650,- per maand
Beschrijving
TOTAAL GERENOVEERD BINNENKORT DOOR AANNEMER OPGELEVERD!
Foto’s ter indicatie van vergelijkbare woning
In geliefde wijk (Haarlem zuid-west), degelijk gebouwde, 30er jaren erkerwoning met 4 slaapkamers en zonnige voor- en achtertuin op het zuidwesten met berging en achterom. Wonen in een kindvriendelijke, rustige omgeving en toch binnen 10 minuten fietsen in het centrum van Haarlem of op het NS station Heemstede/Aerdenhout. Dit station heeft een directe verbinding met Amsterdam of Leiden/Den Haag. Ook het strand van Zandvoort ligt op fietsafstand.
Een openbare basisschool (de Zuidwester), een kinderdagverblijf met buitenschoolse opvang, artsenpraktijk (gezondheidscentrum Zuidwest) en een speelveldje liggen op loopafstand en maken van deze woning het ideale gezinshuis.
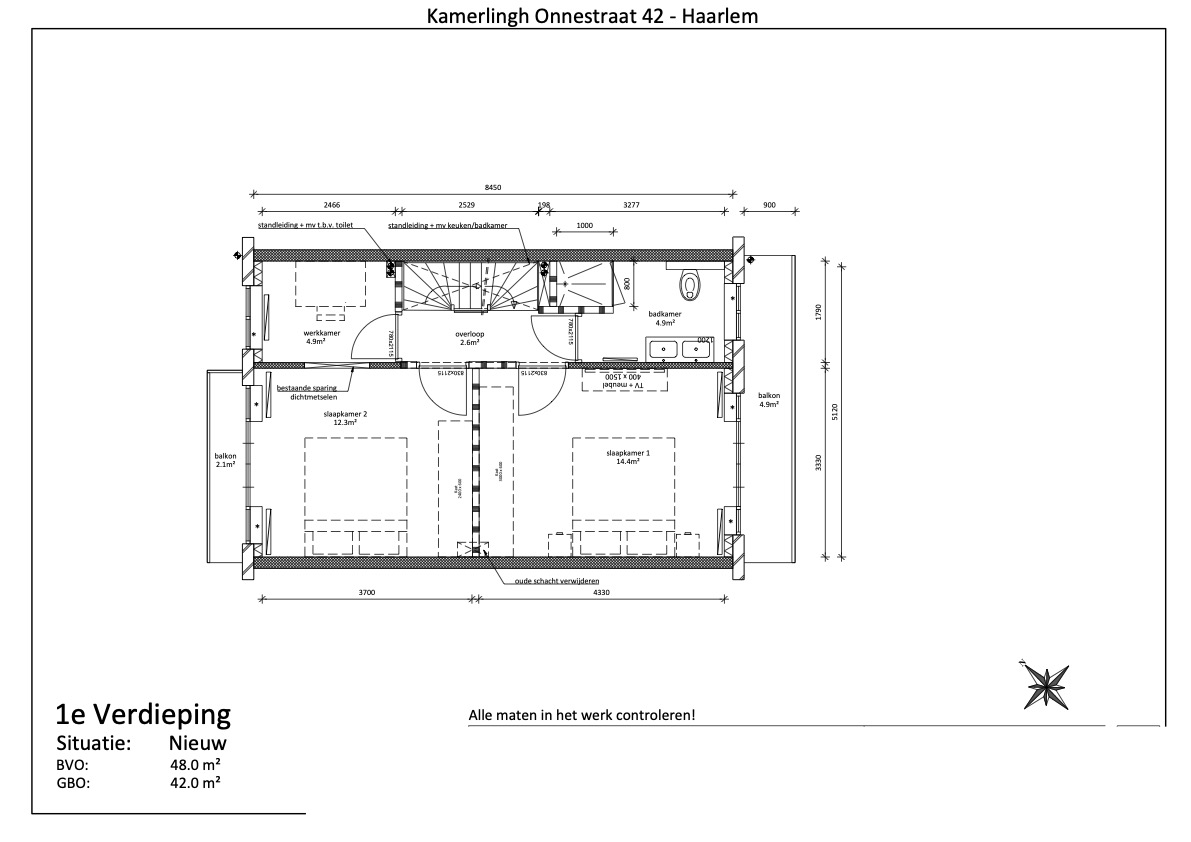
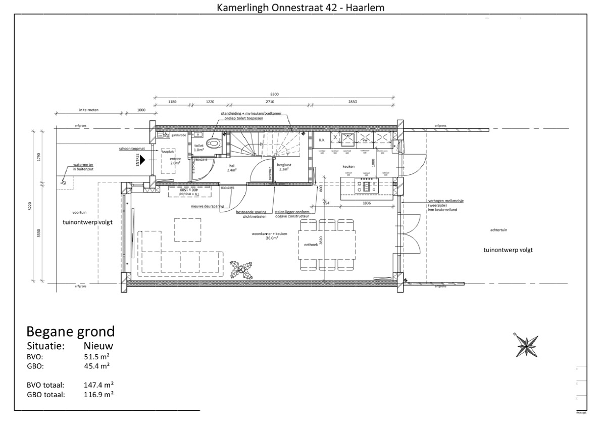
Indeling:
Begane grond: Hal met toegang tot het toilet en trapkast; woonkamer met erker en openslaande deuren naar de achtertuin; open keuken
Trap omhoog naar…
Eerste verdieping: overloop; voorzijde 2 slaapkamers, achterzijde 1 slaapkamer met toegang tot het balkon welke over de volledige breedte van de woning ligt; badkamer met inloopdouche, dubbele wastafel en 2e toilet.
Trap omhoog naar…
Tweede verdieping: overloop met c.v.-opstelling en wasmachine-aansluiting; bergruimte ; 2 slaapkamers met dakkapellen.
Algemeen
* Gebruiksoppervlakte woonfunctie ca. 117m2.
* Beschikbaar per 11 februari 2026
* Huurprijs is € 2.650,00 excl. g/w/l
* Servicekosten ca. €20,00
* Borg 2 maanden huur zijnde een bedrag van €5.100,00
* Minimale huurperiode is 12 maanden
* Studenten en delen is niet toegestaan
* Verhuurder heeft recht van gunning
Kenmerken
- Huurprijs
- € 2.650,-
- Plaats
- Haarlem
- Status
- Onder optie
- Buurt
- Natuurkundigenbuurt-west
- Aantal kamers
- 6
- Aantal slaapkamers
- 5
- Aantal badkamers
- 1
- Woonoppervlakte
- 117 m2
- Ligging
- In woonwijk
- Isolatie
- Muurisolatie, Vloerisolatie, Dubbelglas
- Type verwarming
- CV ketel
- Onderhoud buiten
- Uitstekend
- Onderhoud binnen
- Uitstekend
- Voorzieningen
- Mechanische ventilatie
- Soort dak
- Zadeldak
- Parkeer faciliteiten
- Openbaar parkeren
- Woning type
- Woonhuis
Plattegronden
Uitzicht op straat
Zoek de locatie
kom jij kijken?
Een bezoek vertelt het meest. Onze makelaars nemen graag de tijd voor een rustige rondleiding.
Contacteer ons nu







































