Katwijkstraat 11-2, Amsterdam
BeschikbaarPrijs: € 525.000,-
Beschrijving
PUUR* KLUS WONING aan de Katwijkstraat, een unieke dubbele bovenwoning met uitzonderlijk veel potentie in de Hoofdorppleinbuurt.
Aan de Katwijkstraat ligt deze karaktervolle dubbele bovenwoning van ca. 106 m², verdeeld over de tweede en derde verdieping. Een unieke kans voor de liefhebber: deze volwaardige kluswoning biedt alle ruimte om uw eigen droomwoning te creëren. Dankzij de royale oppervlakte, de grote raampartijen en de huidige indeling vormt dit appartement een uitstekende basis voor een hoogwaardige herontwikkeling naar hedendaags wooncomfort.
INDELING
Via het gemeenschappelijke trappenhuis wordt de woning bereikt op de tweede verdieping. Bij binnenkomst valt direct de praktische indeling op. Rechtdoor bevindt zich de woon- en eetkamer, van elkaar gescheiden door karakteristieke en-suite deuren. De grote raampartijen zorgen voor een fijne lichtinval. Links van de woon- en eetkamer treft u de keuken. Aan de voorzijde bevindt zich naast de woonkamer nog een extra kamer, die zich uitstekend leent als slaap- of werkkamer.
Aan de linkerzijde van de entree bevindt zich de badkamer, voorzien van een douche, toilet en wastafel.
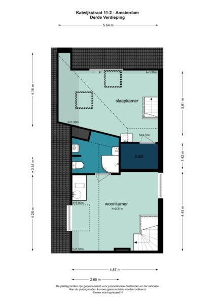
Via de woonkamer aan de voorzijde leidt een interne trap naar de derde verdieping. Hier bevindt zich een slaapkamer met aansluitend een extra ruimte, ideaal te gebruiken als inloopkast of kastruimte.
De woning beschikt daarnaast over een tweede entree. Via deze voordeur wordt het achterste gedeelte van de derde verdieping bereikt. Hier is een extra woonruimte met keuken gesitueerd, evenals een tweede badkamer met toilet, douche en wastafel. Deze indeling biedt diverse mogelijkheden voor herontwikkeling en herinrichting, geheel naar eigen inzicht.
LOCATIE EN BEREIKBAARHEID
Gelegen in de gewilde Hoofddorppleinbuurt van Amsterdam-Zuid, biedt de Katwijkstraat een fijne combinatie van rust en stedelijke levendigheid. Binnen handbereik vindt u een mix van sfeervolle cafés, hippe koffietentjes en lokale speciaalzaken, zoals Stadscafé Van Mechelen en diverse hotspots rondom het Hoofddorpplein. Voor ontspanning liggen het Vondelpark en Rembrandtpark op korte loopafstand, ideaal voor een ochtendwandeling, een sportmoment of een picknick in het groen.
De bereikbaarheid is uitstekend: diverse tram- en buslijnen stoppen in de buurt, terwijl de Ring A10 en andere uitvalswegen snel bereikbaar zijn. Zo woont u hier comfortabel met alles wat Amsterdam te bieden heeft letterlijk om de hoek.
BIJZONDERHEDEN
* Woonoppervlakte ca. 105,80 m²;
* Verdeelt over twee woonlagen;
* Dubbele bovenwoning;
* Grote raampartijen met fijne lichtinval;
* Twee badkamers aanwezig;
* Kluswoning met uitzonderlijk veel potentie;
* Mogelijkheid tot herontwikkeling naar een luxe woonconcept;
* Gelegen op eigen grond;
* Energielabel E;
* CV-ketel bouwjaar 2000;
* Servicekosten € 183,61 per maand;
* Oplevering in overleg.
****ENGLISH***
PUUR* RENOVATION PROPERTY on Katwijkstraat, a unique double upper-level apartment with exceptional potential in the Hoofddorppleinbuurt.
Located on Katwijkstraat, this characterful double upper apartment of approx. 106 m² is spread over the second and third floors. A unique opportunity for enthusiasts: this full-scale renovation property offers all the space needed to create your own dream home. Thanks to its generous floor area, large windows, and current layout, this apartment provides an excellent foundation for high-quality redevelopment into contemporary living comfort.
LAYOUT
The apartment is accessed via the communal staircase on the second floor. Upon entering, the practical layout immediately stands out. Straight ahead is the living and dining room, separated by characteristic en-suite doors. The large windows provide pleasant natural light. To the left of the living and dining room is the kitchen. At the front, next to the living room, there is an additional room, perfectly suited as a bedroom or home office.
On the left side of the entrance is the bathroom, equipped with a shower, toilet, and washbasin.
An internal staircase from the front living room leads to the third floor. Here you will find a bedroom with an adjoining additional space, ideal for use as a walk-in closet or storage area.
The property also benefits from a second entrance. Through this entrance, the rear section of the third floor is accessed. Here, there is an additional living area with kitchen, as well as a second bathroom with toilet, shower, and washbasin. This layout offers various possibilities for redevelopment and redesign, entirely according to your own vision.
LOCATION AND ACCESSIBILITY
Situated in the highly sought-after Hoofddorppleinbuurt in Amsterdam South, Katwijkstraat offers a pleasant combination of tranquility and urban vibrancy. Within easy reach, you will find a mix of charming cafés, trendy coffee spots, and local specialty shops, such as Stadscafé Van Mechelen and various hotspots around Hoofddorpplein. For relaxation, both the Vondelpark and Rembrandtpark are within short walking distance, ideal for a morning stroll, exercise, or a picnic in the greenery.
Accessibility is excellent: several tram and bus lines stop nearby, and the A10 ring road and other main arterial roads are quickly accessible. Here, you live comfortably with everything Amsterdam has to offer literally around the corner.
FEATURES
* Living area approx. 105.80 m²
* Spread over two floors
* Double upper-level apartment
* Large windows with pleasant natural light
* Two bathrooms
* Renovation property with exceptional potential
* Possibility to redevelop into a luxury living concept
* Freehold property (no ground lease)
* Energy label E
* Central heating boiler (built in 2000)
* Service charges €183.61 per month
* Transfer in consultation
Kenmerken
- Koopprijs
- € 525.000,-
- Plaats
- Amsterdam
- Status
- Beschikbaar
- Buurt
- Aalsmeerwegbuurt West
- Aantal kamers
- 5
- Aantal slaapkamers
- 4
- Aantal badkamers
- 2
- Woonoppervlakte
- 106 m2
- Ligging
- In woonwijk
- Type verwarming
- CV ketel
- Onderhoud buiten
- Redelijk tot goed
- Onderhoud binnen
- Matig
- Voorzieningen
- TV kabel, Dakraam, Natuurlijke ventilatie
- Soort dak
- Plat dak
- Parkeer faciliteiten
- Betaald parkeren, Parkeervergunningen
- Woning type
- Appartement
Plattegronden
Uitzicht op straat
Zoek de locatie
kom jij kijken?
Een bezoek vertelt het meest. Onze makelaars nemen graag de tijd voor een rustige rondleiding.
Contacteer ons nu
































