Kazernestraat 10E, Amsterdam
VerkochtBeschrijving
PUUR* Wonen:
2 ruime slaapkamer, dakterras van 30 m2 en woning van 63 m2 op eigen grond.
In de geliefde en groene Plantagebuurt, op steenworp afstand van het Oosterpark, Artis en het Tropenmuseum, bieden wij dit lichte en sfeervolle bovenhuis aan. Dit instapklare appartement ligt op eigen grond en combineert comfort, karakter en een fantastisch dakterras – een zeldzame parel op een toplocatie in hartje Amsterdam. Het appartement is 63m2 (NEN gemeten) en beschikt over twee volwaardige slaapkamers, een zeer ruime woonkamer en badkamer met ligbad. Nieuwsgierig geworden? Neem snel contact met ons op voor een bezichtiging!
Indeling
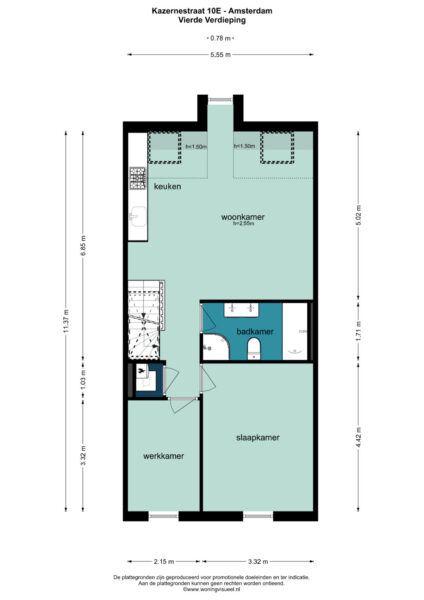
Via de eigen voordeur op de derde verdieping betreed je de woning. Hier is direct ruimte om jassen en schoenen op te bergen, waarna een vaste trap leidt naar de vierde verdieping. De ruime woonkamer aan de voorzijde van het appartement is heerlijk licht dankzij de grote ramen en het dakraam boven de trap naar het dakterras. Er is volop plek voor zowel een royale zithoek als een grote eettafel. Het vrije uitzicht aan de voorzijde zorgt voor een gevoel van ruimte en privacy.
De open keuken sluit perfect aan bij het woongedeelte en is een waar genot voor kookliefhebbers. Voorzien van een Falcon gasfornuis met meerdere ovens, een grill- en opwarmfunctie, een granieten aanrechtblad (extra diep!), eikenhouten keukenkastjes, vaatwasser en -koelkast. Koken met stijl en comfort!
Via de woonkamer leidt een vaste trap naar het absolute hoogtepunt van dit appartement: het grote dakterras met een panoramisch uitzicht over de stad. Hier kijk je uit op het Tropenmuseum en de iconische molen van Brouwerij ’t IJ – een unieke plek voor ontspanning of het ontvangen van gasten. Aan de rustige achterzijde van de woning bevinden zich twee ruime slaapkamers, beiden met voldoende plek voor een tweepersoonsbed en kastruimte. De badkamer is uitgerust met een ligbad, inloopdouche, toilet en wastafel. De cv-ketel en aansluiting voor de wasmachine zijn netjes weggewerkt in een separate bergkast.
Het gehele complex is in 2006 gerenoveerd waarbij deze woning recent nog van een nieuwe vloer is voorzien en geheel geschilderd is.
OMGEVING EN BEREIKBAARHEID
De woning aan de Kazernestraat 10 bevindt zich in de geliefde Plantagebuurt – een van de meest charmante, groene en karaktervolle wijken van Amsterdam. Deze buurt combineert de rust van brede, lommerrijke straten met de levendigheid van cultuur, horeca en stadsparken, allemaal op loopafstand. Op steenworp afstand vind je bekende trekpleisters zoals Artis, het Tropenmuseum, de Hortus Botanicus en het Scheepvaartmuseum. Voor een moment van ontspanning of een wandeling ligt het Oosterpark om de hoek. Ondanks de centrale ligging voelt de buurt dorps en ontspannen aan.
Ook op culinair vlak valt er genoeg te genieten. Begin je dag met een koffie bij Café de Plantage, lunch bij Spirit of BORRL Kitchen, of dineer sfeervol bij De Kop van Oost of het populaire Café-Restaurant De Tropen. Er is altijd wel iets lekkers in de buurt. De Plantagebuurt is uitstekend bereikbaar met het openbaar vervoer en op de fiets ben je binnen enkele minuten in het centrum of bij Amsterdam Centraal. Hier woon je rustig, maar met de stad altijd dichtbij.
Bijzonderheden
– 63m2;
– Twee goede slaapkamers;
– Gelegen op EIGEN GROND;
– Zonnig dakterras met uitzicht op het Tropenmuseum en de molen van Brouwerij ‘t IJ;
– Royale woonkamer met vrij uitzicht en karakteristieke open keuken;
– Badkamer met ligbad;
– Servicekosten VVE €189,-;
– Ouderdomsclausule van toepassing;
– De woning is beschikbaar in overleg en kan indien gewenst snel geleverd worden.
Algemeen
- Plaats
- Amsterdam
- Status
- Verkocht
- Buurt
- Alexanderplein e.o.
- Aantal kamers
- 3
- Aantal slaapkamers
- 2
- Woonoppervlakte
- 63 m2
- Ligging
- Aan rustige weg, In woonwijk
- Type verwarming
- CV ketel
- Onderhoud buiten
- Goed
- Onderhoud binnen
- Goed
- Voorzieningen
- TV kabel
- Energieklasse
- B
- Soort dak
- Plat dak
- Parkeer faciliteiten
- Openbaar parkeren, Betaald parkeren, Parkeervergunningen
- Woning type
- Appartement
































