Kinkerstraat 356-1, Amsterdam
Verkocht onder voorbehoudPrijs: € 435.000,-
Beschrijving
PUUR* Wonen aan de levendige Kinkerstraat in Amsterdam!
Ontdek dit lichte en goed ingedeelde 3-kamerappartement van ca. 45 m² met een ruim terras van maar liefst 23 m² aan de achterzijde. De woning beschikt over een slaapkamer en een tweede werk-/slaap-/logeerkamer met terras aan de achterzijde en een lichte living met een moderne keuken, en een heerlijk Frans balkon aan de voorzijde.
Met zijn energielabel B, praktische indeling en fijne buitenruimte is dit een ideale woning voor starters of als pied-à-terre midden in Amsterdam Oud-West.
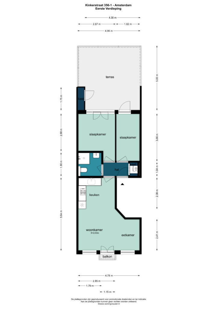
INDELING
Via het gemeenschappelijke trappenhuis bereikt u de woning op de eerste verdieping.
Aan de voorzijde bevindt zich de lichte woonkamer met Franse deuren naar het Franse balkon, waar u kunt genieten van de levendige sfeer van de Kinkerstraat. De open keuken is voorzien van een nieuwe AEG-afzuigkap en een nieuwe Bosch-vaatwasser, en biedt voldoende kastruimte.
Aan de achterzijde ligt de slaapkamer met Franse deuren naar het ruime terras van ca. 23 m², een heerlijke plek om te ontspannen of buiten te eten en te genieten van de namiddag zon. Vanuit de tweede kamer (perfect als werk-, logeer- of kinderkamer) is eveneens toegang tot het terras.
De badkamer beschikt over een toilet, wastafel en douche. In een aparte kast in de hal bevindt zich de (vrij nieuwe) cv-ketel met daarnaast ruimte en aansluiting voor de wasmachine. Op het terras is bovendien een extra inbouwkast, ideaal voor opslag.
LOCATIE
De woning is gelegen aan de Kinkerstraat, in het bruisende Oud-West, een buurt vol leuke winkels, gezellige cafés en goede restaurants. Om de hoek vindt u de Ten Katemarkt, De Hallen, en het Vondelpark ligt op slechts enkele minuten lopen.
Het openbaar vervoer is uitstekend geregeld met diverse tram- en buslijnen in de directe omgeving, en ook de Ring A10 is goed bereikbaar.
ERFPACHT
Vooruit betaalde erfpacht tot en met 31-10-2055, daarna is verkoper reeds overgestapt naar eeuwigdurende erfpacht met jaarlijkse betaling vanaf 1-11-2055 onder de gunstige condities.
BIJZONDERHEDEN
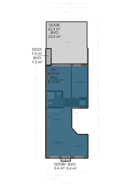
* Woonoppervlakte: 45 m² (NEN 2580 meetrapport aanwezig);
* Terras van ca. 23 m² aan de achterzijde;
* Eén ruime slaapkamer en een tweede werk-/slaap-/logeerkamer;
* Frans balkon aan de voorzijde met Franse deuren;
* Nieuwe AEG-afzuigkap en nieuwe Bosch-vaatwasser;
* Extra inbouwkast op het terras;
* CV-ketel met wasmachineaansluiting in aparte kast;
* Energielabel B;
* Gelegen op de eerste verdieping;
* Fantastische locatie in Amsterdam Oud-West, nabij De Hallen en het Vondelpark;
* Een Gezonde en actieve VvE;
* Afgekochte erfpacht tot 2055;
* Overstap onder de gunstige voorwaarde naar eeuwig durende voorwaarden;
* Een maandelijkse VvE bijdrage van € 115,- per maand
* Oplevering in overleg.
***English***
PURE* Living on the vibrant Kinkerstraat in Amsterdam!
Discover this bright and well-laid-out 3-room apartment of approximately 45 m² with a spacious terrace of no less than 23 m² at the rear. The home features one bedroom and a second room that can serve as a study, guest room, or additional bedroom, both with access to the terrace, as well as a light-filled living room with a modern kitchen and a lovely French balcony at the front.
With its energy label B, practical layout, and generous outdoor space, this is an ideal home for first-time buyers or as a pied-à-terre in the heart of Amsterdam Oud-West.
LAYOUT
You reach the apartment on the first floor via the communal staircase.
At the front is the bright living room with French doors opening onto a French balcony, where you can enjoy the lively atmosphere of Kinkerstraat. The open kitchen is equipped with a new AEG extractor hood and a new Bosch dishwasher and offers ample storage space.
At the rear is the bedroom with French doors leading to the spacious terrace of approximately 23 m²—a wonderful place to relax, dine outdoors, and enjoy the afternoon sun. The second room (perfect as an office, guest room, or child’s bedroom) also has access to the terrace.
The bathroom includes a toilet, sink, and shower. In a separate closet in the hallway, you’ll find the (relatively new) central heating boiler, with space and connections for a washing machine. There’s also an additional built-in storage cabinet on the terrace, ideal for extra storage.
LOCATION
The apartment is located on Kinkerstraat in the lively Oud-West neighborhood, an area full of great shops, cozy cafés, and excellent restaurants. Just around the corner are the Ten Katemarkt, De Hallen, and the Vondelpark, all within walking distance.
Public transport is excellent, with various tram and bus lines nearby, and the A10 ring road is also easily accessible.
GROUND LEASE
The ground lease has been prepaid until October 31, 2055. The seller has already switched to the perpetual ground lease system, with annual payments starting from November 1, 2055, under favorable conditions.
DETAILS
* Living area: 45 m² (NEN 2580 measurement report available);
* Terrace of approximately 23 m² at the rear;
* One spacious bedroom and a second study/guest/bedroom;
* French balcony at the front with French doors;
* New AEG extractor hood and new Bosch dishwasher
* Extra built-in storage cabinet on the terrace;
* Central heating boiler with washing machine connection in separate closet;
* Energy label B;
* Located on the first floor;
* Fantastic location in Amsterdam Oud-West, near De Hallen and the Vondelpark;
* Healthy and active homeowners’ association (VvE);
* Ground lease prepaid until 2055;
* Favorable transition to perpetual ground lease terms;
* Monthly VvE contribution: €115;
* Transfer in consultation.
Kenmerken
- Koopprijs
- € 435.000,-
- Plaats
- Amsterdam
- Status
- Verkocht onder voorbehoud
- Buurt
- Bellamybuurt Zuid
- Aantal kamers
- 3
- Aantal slaapkamers
- 2
- Aantal badkamers
- 1
- Woonoppervlakte
- 45 m2
- Ligging
- Aan drukke weg, In centrum
- Isolatie
- Dakisolatie, Muurisolatie, Dubbelglas
- Type verwarming
- CV ketel
- Onderhoud buiten
- Goed
- Onderhoud binnen
- Goed
- Voorzieningen
- TV kabel, Frans balkon, Natuurlijke ventilatie
- Energieklasse
- B
- Soort dak
- Plat dak
- Parkeer faciliteiten
- Betaald parkeren, Parkeervergunningen
- Woning type
- Appartement
Plattegronden
Uitzicht op straat
Zoek de locatie
kom jij kijken?
Een bezoek vertelt het meest. Onze makelaars nemen graag de tijd voor een rustige rondleiding.
Contacteer ons nu


























