Koninginneweg 68, Haarlem
VerkochtBeschrijving
PUUR* wonen: in dit prachtige monumentaal familiehuis met ‘meteen bij binnenkomst een fijn en goed gevoel’. Een fantastisch herenhuis van maar liefst 211 m2 in één van de meest gewilde buurten van Haarlem. Met zes slaapkamers, twee luxe badkamers en een zonnige achtertuin op het zuiden met achterom. Op loopafstand van het bruisende centrum van Haarlem. Restaurants, koffiebars, musea, (internationale) basis- en middelbare scholen, stadsbos de Haarlemmerhout en de hippe Vijfhoek, ook wel ‘de Jordaan van Haarlem’ genoemd, liggen om de hoek.
Locatie
De ligging is fantastisch! In de geliefde Koninginnebuurt aan de rand van het prachtige Haarlemse centrum met haar statige, ruim opgezette huizen van begin 1900. Niet alleen een fantastische plek voor stadsliefhebbers, maar ook een heerlijke plek voor natuurliefhebbers met Stadsbos de Haarlemmerhout en Buitenplaats Elswout op een steenworp afstand. De bushaltes zijn eveneens op loopafstand met snelle verbindingen naar o.a. de Zuidas, Luchthaven Schiphol, Leiden en Amsterdam. Station Haarlem en NS Station Heemstede/Aerdenhout zijn met de fiets in enkele minuten bereikbaar en met de auto is de A9 super snel te bereiken richting Amsterdam, Amstelveen, Schiphol, Leiden, Den Haag en Alkmaar. Bovendien zijn de stranden van Bloemendaal en Zandvoort per fiets in ca. 25 minuten bereikbaar.
Goed om te weten
* Bouwjaar 1903 gemeentelijk monument
* Achtertuin op het zuidwesten met meerdere terrassen en veel privacy en achterom
* Energielabel A o.a. geheel dubbelglas en 10 zonnepanelen 2023
* Houtwerk buitenzijde geschilderd in augustus 2022 inclusief voor en achtergevel
* Balkonhek hersteld in originele staat
* Beschermd stadsgezicht
* Parkeren zone C Zuid, direct verkrijgbaar
* Achtergevel geheel vernieuwd en uitgebouwd
* NS-station Haarlem: 7 minuten fietsen
* Grote Markt: 7 minuten fietsen
* Strand en duinen: 27 minuten fietsen
* Oplevering in overleg
* Voor afmetingen en indeling; zie kleurenplattegrond
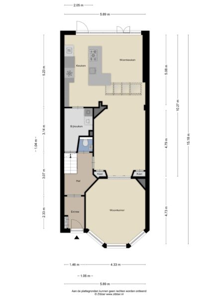
Indeling
Begane grond: Entree, vestibule met origineel gestraald glas, ornamentenplafond, marmeren vloer en meterkast. Hal met toilet en schitterend trappenhuis, toegang woonkamer en suite met hoge ornamenten plafonds, eiken vloerdelen en erker aan de voorzijde, tussenkamer naar woonkeuken in de uitbouw met lichtstraat (met een bijzondere lichtinval), keuken eiland met diverse inbouwapparatuur (o.a. dubbele koelkast en 2 vriezers). Aparte bijkeuken met wasmachine/droger aansluiting en toegang naar de droge kelder. Aan de achterzijde openslaande deuren naar de diepe ‘hele dag’ zonnige zuidwest achtertuin met meerdere terrassen, schuur met elektra en extra brede achterom voor motoren en bakfiets.
Tussenverdieping: Overloop naar badkamer met vloerverwarming, dubbele wastafel, toilet en inloopdouche.
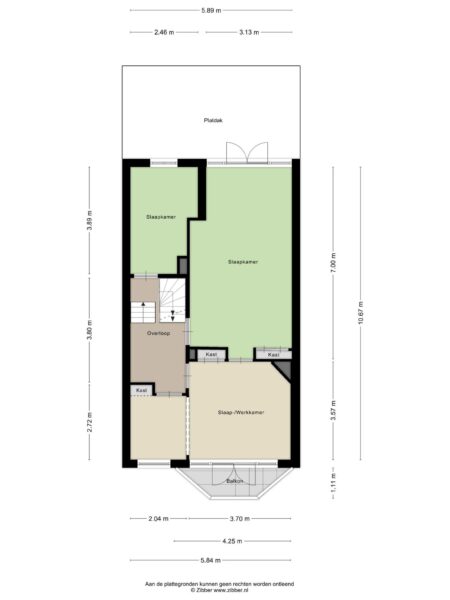
1e Verdieping: Overloop naar voorslaap/werkkamer met naar beide kanten vrije zichtlijnen (voorheen 2 kamers) met openslaande deuren naar balkon, achterslaapkamer met inloop kledingkast en openslaande deuren/Frans balkon. Trappetje naar baby/kinderkamer.
2e Verdieping: Overloop met daklicht slaapkamer aan de voorzijde en ruime achter werk/slaapkamer met vaste kasten en openslaande deuren/Frans balkon en 2e badkamer met toilet, inloopdouche wastafel en vrijstaand ligbad en aparte inpandige berging met cv opstelling. Trappetje naar slaapkamer.
Een brochure kunt u downloaden via onze eigen website.
*ENGLISH*
PUUR* living: in this beautiful monumental family house with ‘immediately upon entering a nice and good feeling’. A fantastic mansion of no less than 211 m2 in one of Haarlem’s most sought-after neighbourhoods. With six bedrooms, two luxury bathrooms and a sunny south-facing back garden with back entrance. Within walking distance of Haarlem’s bustling city centre. Restaurants, coffee bars, museums, (international) primary and secondary schools, city forest the Haarlemmerhout and the hip Vijfhoek, also called ‘Haarlem’s Jordaan’, are just around the corner.
Location
The location is fantastic! In the popular Koninginnebuurt neighbourhood on the edge of the beautiful Haarlem city centre with its stately, spacious houses from the early 1900s. Not only a fantastic place for city lovers, but also a wonderful place for nature lovers with Stadsbos de Haarlemmerhout and Buitenplaats Elswout a stone’s throw away. Bus stops are also within walking distance with fast connections to, among others, the Zuidas, Schiphol Airport, Leiden and Amsterdam. Haarlem Station and NS Station Heemstede/Aerdenhout can be reached by bicycle in a few minutes and by car, the A9 motorway can be reached super fast towards Amsterdam, Amstelveen, Schiphol, Leiden, The Hague and Alkmaar. Moreover, the beaches of Bloemendaal and Zandvoort can be reached by bicycle in approx. 25 minutes.
Good to know
* Built in 1903, municipal monument
* Southwest facing back garden with several terraces, lots of privacy and back entrance
* Energy label A including full double glazing and 10 solar panels 2023
* Exterior woodwork painted in August 2022 including front and rear facade
* Balcony fence restored in original state
* Protected townscape
* Parking zone C South, directly available
* Back facade completely renewed and extended
* NS railway station Haarlem: 7 minutes cycling
* Market square: 7 minutes cycling
* Beach and dunes: 27 minutes by bike
* Delivery in consultation
* For dimensions and layout, see colour plan
Layout
Ground floor: Entrance hall with original sandblasted glass, ornamental ceiling, marble floor and meter cupboard. Hall with toilet and magnificent staircase, access living room en suite with high ornamental ceilings, oak floorboards and bay window at the front, intermediate room to kitchen diner in the extension with skylight (with special sightlines), kitchen island with various built-in appliances (including double fridge and 2 freezers). Separate utility room with washer/dryer connection and access to dry cellar. At the rear, French doors to the deep ‘all day’ sunny south-west back garden with several terraces, shed with electricity and extra wide back entrance for motorbikes and cargo bikes.
Middle floor: Landing to bathroom with underfloor heating, double washbasin, toilet and walk-in shower.
1st Floor: Landing to front bedroom/study (formerly 2 rooms) with French doors to balcony, back bedroom with walk-in wardrobe and French doors/French balcony. Stairs to baby/children’s room.
2nd Floor: Landing with skylight front bedroom and spacious rear work/bedroom with fitted wardrobes and French balcony and 2nd bathroom with toilet, walk-in shower washbasin and freestanding bathtub and separate storage room with central heating system. Stairs to bedroom.
Algemeen
- Plaats
- Haarlem
- Status
- Verkocht
- Buurt
- Koninginnebuurt
- Aantal kamers
- 8
- Aantal slaapkamers
- 6
- Aantal badkamers
- 2
- Woonoppervlakte
- 211 m2
- Perceel oppervlakte
- 199 m2
- Ligging
- Aan rustige weg
- Bouwjaar
- 1903
- Isolatie
- Dakisolatie, Vloerisolatie, Dubbelglas
- Type verwarming
- CV ketel, Vloerverwarming gedeeltelijk
- Onderhoud buiten
- Uitstekend
- Onderhoud binnen
- Goed tot uitstekend
- Voorzieningen
- Mechanische ventilatie, TV kabel, Frans balkon, Zonnepanelen, Natuurlijke ventilatie
- Energieklasse
- A
- Soort dak
- Samengesteld dak
- Parkeer faciliteiten
- Betaald parkeren, Parkeervergunningen
- Woning type
- Woonhuis

























































