Korte Begijnestraat 19RD, Haarlem
BeschikbaarPrijs: € 350.000,-
Beschrijving
PUUR* wonen midden in het historische centrum van Haarlem staat dit warme en sfeervolle dubbele bovenwoning met twee slaapkamers en dakterras. Op steenworp afstand van de Grote Markt en naast Café “Het Wapen van Bakenes” ligt deze karakteristieke stadswoning. De bovenwoning beschikt over een woonkamer gelegen aan de voorzijde en een ruime keuken aan de achterzijde welke toegang biedt tot het balkon. Op de eerste etage is de woning voorzien van nieuwe vloeren (2021), daarnaast is het balkon vernieuwd. De nieuwe (2025) keuken beschikt over een 4-pits inductie kookplaat, combi oven, inbouwkoelkast en vriezer. Uniek gelegen en op loopafstand van diverse musea, restaurants, winkels en het centraal station.
Goed om te weten
* Gunstig gelegen t.o.v. het centrum, het NS-station, culturele bezienswaardigheden, strand en uitvalswegen
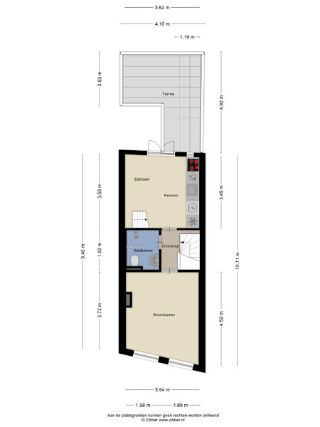
* Groot dakterras
* Bouwjaar circa 1850
* Beschermd stadsgezicht
* Fundering ‘op staal’ (geen houten palen)
* Minuutje lopen naar de Grote Markt
* Binnen 5 minuten lopen bij station Haarlem
* Oplevering in overleg
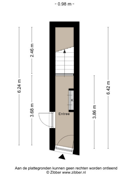
Indeling:
Begane grond:
Entree; hal met meterkast.
Eerste etage; overloop; toegang tot de badkamer met toilet, douche en wastafel; woonkamer aan de voorzijde; woonkeuken v.v. inbouwapparatuur aan de achterzijde met toegang tot het balkon.
Tweede etage; Slaapkamer aan de voorzijde met dak koepel; overloop, kast met c.v. opstelling, mechanische ventilatiebox; Slaapkamer aan de voorzijde ook voorzien van dak koepel.
Locatie
De ligging is super centraal. Dichtbij alles wat je graag wilt in een stad: restaurants, gezellige terrassen, winkels en theaters. En ook op loopafstand van Haarlems mooiste musea als het historische Teylers en het Frans Hals. De directe omgeving doet dorps aan met de autovrije, pittoreske straatjes en de Wijngaardtuin schuin tegenover. Ideaal voor mensen die in de stad willen wonen in een sfeervol monument te midden van alle stadse voorzieningen.
*ENGLISH BELOW*
PUUR* living in the heart of Haarlem’s historic centre, this warm and attractive double upper floor apartment with two bedrooms and a roof terrace. This characteristic town house is located a stone’s throw from the Grote Markt and next to Café ‘Het Wapen van Bakenes’. The upper floor apartment has a living room at the front and a spacious kitchen at the rear which provides access to the balcony. The first floor has new flooring (2021) and the balcony has been renovated. The new (2025) kitchen has a 4-burner induction hob, combi oven, built-in fridge and freezer. Uniquely located and within walking distance of various museums, restaurants, shops and the central station.
Good to know
* Conveniently located for the city centre, railway station, cultural attractions, beach and major roads
* Large roof terrace
* Built around 1850
* Protected cityscape
* Steel foundations (no wooden piles)
* One minute’s walk to the Grote Markt
* Within a 5-minute walk of Haarlem station
* Delivery in consultation
Layout:
Ground floor:
Entrance hall with meter cupboard.
First floor: landing; access to the bathroom with toilet, shower and washbasin; living room at the front; kitchen with built-in appliances at the rear with access to the balcony.
Second floor; bedroom at the front with skylight; landing, cupboard with central heating system, mechanical ventilation box; bedroom at the front also with skylight.
Location
The location is super central. Close to everything you could want in a city: restaurants, cosy terraces, shops and theatres. It is also within walking distance of Haarlem’s most beautiful museums, such as the historic Teylers and Frans Hals. The immediate surroundings have a village feel with their car-free, picturesque streets and the Wijngaardtuin garden diagonally opposite. Ideal for people who want to live in the city in an attractive monument surrounded by all the amenities the city has to offer.
Kenmerken
- Koopprijs
- € 350.000,-
- Plaats
- Haarlem
- Status
- Beschikbaar
- Buurt
- Bakenes
- Aantal kamers
- 5
- Aantal slaapkamers
- 2
- Aantal badkamers
- 1
- Woonoppervlakte
- 53 m2
- Ligging
- Aan rustige weg, In centrum, In woonwijk, Beschutte ligging
- Bouwjaar
- 1850
- Isolatie
- Grotendeels dubbelglas
- Type verwarming
- CV ketel
- Onderhoud buiten
- Redelijk tot goed
- Onderhoud binnen
- Redelijk tot goed
- Voorzieningen
- Mechanische ventilatie, TV kabel, Dakraam, Natuurlijke ventilatie
- Energieklasse
- C
- Soort dak
- Zadeldak
- Parkeer faciliteiten
- Betaald parkeren, Parkeervergunningen
- Woning type
- Appartement
Plattegronden
Uitzicht op straat
Zoek de locatie
kom jij kijken?
Een bezoek vertelt het meest. Onze makelaars nemen graag de tijd voor een rustige rondleiding.
Contacteer ons nu















































