Landzichtlaan 60, Heemstede
BeschikbaarPrijs: € 750.000,-
Beschrijving
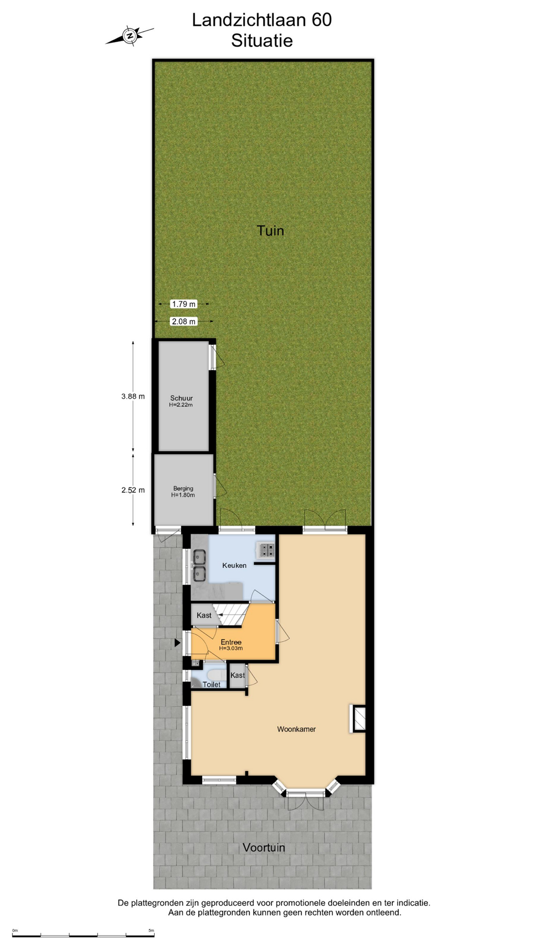
Deze charmante halfvrijstaande woning met een diepe zonnige tuin staat midden in een zeer gewilde, groene laan met karakteristieke woningen. In ca. 1922 is deze sfeervolle woning gebouwd en is netjes onderhouden. Zodra je binnenstapt voel je direct een fijne sfeer en zal je verrast zijn van de ruimte en de hoge plafonds op de parterre. De parterre bestaat uit een woonkamer en een dichte keuken. Op de 1e verdieping zijn 3 slaapkamers en een slim ingedeelde badkamer. Op de 2e verdieping vind je een zolderkamer. Aan de achterzijde is de woning op de 1e verdieping grotendeels recht opgetrokken. Heb je behoefte aan meer ruimte dan biedt deze woning goede uitbouwmogelijkheden. Zo heb je de mogelijkheid om aan de achterzijde uit te bouwen en een heerlijke woonkeuken te realiseren. En op de 2e verdieping heb je de mogelijkheid om een dakkapel te plaatsen zodat daar een volwaardige kamer gecreëerd kan worden, ideaal als extra slaapkamer of als werk/chillplek. De voortuin is mooi aangelegd en aan de achterzijde vind je een ca. 17 meter diepe tuin op het zuidoosten waar je optimaal van de zon kunt genieten. Dankzij de hoekligging is de tuin extra breed. De tuin is voorzien van een schuur en een berging met toegang naar de voortuin, praktisch voor fietsen en extra opslag.
En ook de ligging van deze twee-onder-een kap woning is perfect. Zodra je de hoek omloopt, loop je direct de winkelstraat in waar je uitstekend terecht kunt voor je dagelijkse boodschappen, diverse boetieks vindt, lekker kan eten in één van de vele eetgelegenheden of de wekelijkse markt kan bezoeken. Ook ben je zo op de fiets in het gezellige stadshart van Haarlem. En dichtbij vind je het NS-Station met uitstekende verbindingen naar bijv. Amsterdam, Leiden, De Haag, diverse uitvalswegen, vele mooie natuurgebieden, het Groenendaalse bos, het strand en sportfaciliteiten.
Indeling:
Parterre: zijentree, hal met verdiepte trapkast en modern zwevend toilet met fontein, lichte woonkamer met zijcorner voorzien van marmeren schouw met open haard, ornamenten plafonds en openslaande deuren naar tuin, moderne keuken voorzien van diverse inbouwapparatuur, wasmachine aansluiting en deur naar tuin, via hal bordestrap naar….
1e Verdieping: overloop, twee slaapkamers aan voorzijde waarvan 1 met vaste kastenwand, slaapkamer aan achterzijde, nette badkamer met ligbad, douche, toilet (sanibroyeur) en wastafel, tussenhal met trap naar…
2e Verdieping: zolderkamer (slaapkamer) voorzien van dakraam en cv-ketel
Bijzonderheden:
* Woonoppervlakte ca. 106 m2 (inclusief 2e verdieping ca. 8m2 overig inpandige ruimte), inhoud ca. 427 m3 en 229 m2 eigen grond
* Gevel voorzien van knipvoeg
* 1e Verdieping achterzijde recht opgetrokken
* Uitbouwmogelijkheden
* Zeer zonnige tuin
* Achterom aanwezig
* Parterre achterzijde voorzien van elektrische zonwering
* Voor indeling en maatvoering zie plattegronden
* Oplevering in overleg
Kenmerken
- Koopprijs
- € 750.000,-
- Plaats
- Heemstede
- Status
- Beschikbaar
- Buurt
- Centrum
- Aantal kamers
- 4
- Aantal slaapkamers
- 3
- Aantal badkamers
- 1
- Woonoppervlakte
- 106 m2
- Perceel oppervlakte
- 229 m2
- Ligging
- Aan rustige weg, In woonwijk
- Bouwjaar
- 1922
- Isolatie
- Grotendeels dubbelglas
- Type verwarming
- CV ketel, Open haard
- Onderhoud buiten
- Goed tot uitstekend
- Onderhoud binnen
- Goed
- Voorzieningen
- TV kabel, Buitenzonwering, Rookkanaal, Dakraam
- Energieklasse
- F
- Soort dak
- Samengesteld dak
- Parkeer faciliteiten
- Openbaar parkeren
- Schuur/bergruimte
- 2
- Woning type
- Woonhuis
Plattegronden
Uitzicht op straat
Zoek de locatie
kom jij kijken?
Een bezoek vertelt het meest. Onze makelaars nemen graag de tijd voor een rustige rondleiding.
Contacteer ons nu
















































