Leidsevaart 228, Haarlem
VerkochtBeschrijving
PUUR* wonen aan de Leidsevaart 228. Ruim familiehuis met diepe, zonnige tuin en karakter.
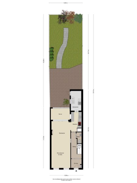
In de levendige en centrale Leidsevaartbuurt ligt dit charmante en royale herenhuis van ca. 196 m2 (totale oppervlakte), gebouwd rond 1893. Met zijn hoge plafonds, grote raampartijen en karaktervolle details ademt deze woning sfeer en licht. Combineer dat met een 18 meter diepe tuin op het westen, en je hebt het ideale gezinshuis in de stad!
Wat maakt deze woning zo bijzonder?
– Karakter en comfort: Authentieke elementen zoals hoge plafonds en mooie lichtinval geven deze woning charme. Tegelijk biedt het volop comfort en ruimte voor modern gezinsleven.
– Zonnige tuin: De diepe achtertuin op het westen is een groene oase in de stad – perfect om te ontspannen, te spelen of gezellig te eten in de avondzon.
– Veel ruimte: Met 5 (slaap)kamers, 2 badkamers, een bijkeuken en bruikbare kelder is er plek voor iedereen én alles. Op de tweede verdieping is een kamer met keukenblok; ideaal voor een au pair, tiener of logees.
– Vrij uitzicht en toplocatie: Aan de voorzijde kijk je uit over het water van de Leidsevaart, en woon je op loopafstand van de gezellige binnenstad, scholen (waaronder de International School Haarlem), OV en alle dagelijkse voorzieningen. Ook parkeren is op deze plek geen probleem.
– Dichtbij natuur én strand: Dankzij de ligging aan de westkant van Haarlem ben je ook zó in het groen, de duinen of op het strand.
Een prachtig licht, ruim en veelzijdig huis in een geliefde buurt. Klaar voor een nieuw hoofdstuk!
Goed om te weten:
* Riant en sfeervol herenhuis met diepe tuin
* Woonoppervlak ca. 188 m2 (zie meetrapport)
* Energielabel C
* Ideaal gezinshuis met 5 (slaap-)kamers en 2 badkamers
* Bouwjaar ca. 1893 met veel sfeer en details
* Heerlijk lichte woning door hoge plafonds en grote ramen
* Diepe en zonnige tuin (ca. 18 meter) op het westen
* Mooi en vrij uitzicht over het water van de Leidsevaart
* Kelder en bijkeuken voor extra bergruimte
* Nieuwe badkamer gerealiseerd op de 2e verdieping in 2023
* Dakbedekking hoofddak vervangen in 2024
* Voldoende parkeervoorzieningen en meerdere parkeervignetten aan te vragen
* Ideale ligging op loopafstand van het centrum, winkels, scholen en OV
* Aanvaarding in overleg (kan snel)
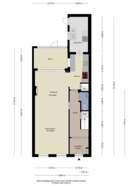
Indeling:
Begane grond: entree/ruime hal en gang met marmeren vloer. Gang met trapkast en toiletruimte. Heerlijk ruime en lichte living met gezellige open haard bij het eetgedeelte en afsluitbare serre met deur naar de tuin. Moderne open keuken met deur naar de bijkeuken met diverse apparatuur. Vanuit de keuken is de kelder bereikbaar die bruikbaar is als bergruimte en/of mooie wijnkelder.
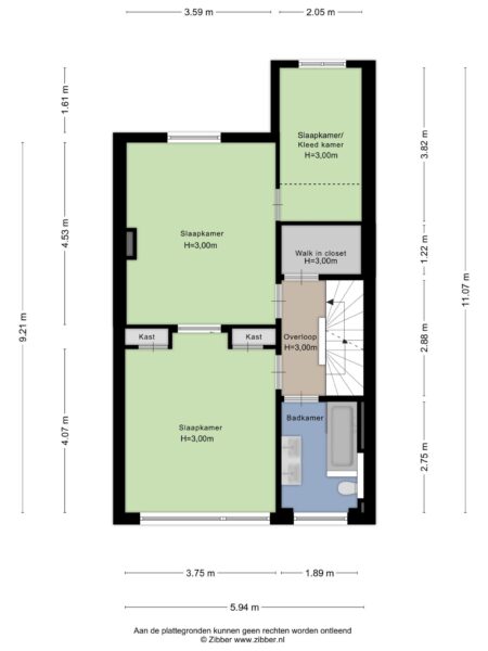
1e Verdieping: overloop met grote inbouw(kleding)kast. Ruime slaap-/werkkamer aan de voorzijde met uitzicht op het water en ingebouwde kastruimte. Glas-in-lood schuifdeur naar de slaapkamer aan de achterzijde (ook bereikbaar via aparte deur vanaf de overloop). Vanuit de achterste slaapkamer toegang tot een 3e (baby-/werk-/kleed-)kamer. Badkamer met ligbad v.v. douche / wastafelmeubel en toilet.
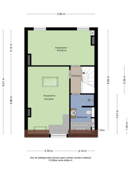
2e Verdieping: overloop met bergruimte boven trapgat. Ruime slaapkamer aan de voorzijde met keukenblok, dakkapel en dakraam. Ruime slaapkamer aan de achterzijde. Moderne badkamer met ligbad / inloopdouche / wastafelmeubel en toilet. Deze badkamer is v.v. elektrische vloerverwarming en in een kast is de cv-ketel weggewerkt.
*ENGLISH TEXT*
PUUR* living at Leidsevaart 228. Spacious family home with deep, sunny garden and character.
In the lively and central Leidsevaart neighbourhood lies this charming and generous mansion of approx. 196 m2 (total surface area), built around 1893. With its high ceilings, large windows and characterful details, this house breathes atmosphere and light. Combine that with an 18-metre-deep west-facing garden, and you have the ideal family home in the city!
What makes this property so special?
– Character and comfort: Authentic elements such as high ceilings and beautiful light give this home charm. At the same time, it offers plenty of comfort and space for modern family life.
– Sunny garden: The deep west-facing back garden is a green oasis in the city – perfect for relaxing, playing or having dinner in the evening sun.
– Lots of space: With 5 (bed) rooms, 2 bathrooms, a utility room and useful cellar, there is room for everyone and everything. On the second floor is a room with kitchenette; ideal for an au pair, teenager or lodgers.
– Unobstructed views and prime location: At the front, you overlook the water of the Leidsevaart, and live within walking distance of the cosy city centre, schools (including the International School Haarlem), public transport and all daily amenities. Even parking is no problem here.
– Close to nature and beach: thanks to its location on the west side of Haarlem, you can also be in the countryside, the dunes or on the beach in no time.
A beautifully light, spacious and versatile house in a popular neighbourhood. Ready for a new chapter!
Good to know:
* Spacious and attractive town house with deep garden
* Living area approx. 188 m2 (see measurement report)
* Energy label C
* Ideal family home with 5 (bed) rooms and 2 bathrooms
* Built in approx. 1893 with lots of atmosphere and details
* Lovely light house with high ceilings and large windows
* Deep and sunny garden (approx. 18 metres) facing west
* Beautiful and unobstructed views over the Leidsevaart canal
* Basement and scullery for extra storage space
* New bathroom realised on the 2nd floor in 2023
* Main roof replaced in 2024
* Sufficient parking facilities and several parking vignettes can be applied for
* Ideal location within walking distance of the city centre, shops, schools and public transport
* Acceptance in consultation (may be quick)
Layout:
Ground floor: entrance/spacious hallway and corridor with marble floor. Hallway with stairs cupboard and toilet. Lovely spacious and bright living room with cosy fireplace in the dining area and lockable conservatory with door to the garden. Modern open kitchen with door to the pantry with various appliances. From the kitchen, the cellar can be accessed which can be used as storage space and/or a nice wine cellar.
1st floor: landing with large built-in (wardrobe) closet. Spacious bedroom/study at the front overlooking the water and built-in wardrobe space. Stained-glass sliding door to the rear bedroom (also accessible via separate door from the landing). From the rear bedroom access to a 3rd (baby/work/dressing) room. Bathroom with bath with shower / washbasin and toilet.
2nd floor: landing with storage space above the stairwell. Spacious front bedroom with kitchenette, dormer window and skylight. Spacious rear bedroom. Modern bathroom with bath / walk-in shower / washbasin and toilet. This bathroom has electric floor heating and the central heating boiler is hidden in a cupboard.
Algemeen
- Plaats
- Haarlem
- Status
- Verkocht
- Buurt
- Geschiedschrijversbuurt
- Aantal kamers
- 7
- Aantal slaapkamers
- 5
- Aantal badkamers
- 2
- Woonoppervlakte
- 188 m2
- Perceel oppervlakte
- 191 m2
- Ligging
- In centrum, Vrij uitzicht, Aan vaarwater
- Bouwjaar
- 1893
- Isolatie
- Vloerisolatie, Dubbelglas, Voorzetramen
- Type verwarming
- CV ketel, Open haard, Vloerverwarming gedeeltelijk
- Onderhoud buiten
- Goed
- Onderhoud binnen
- Goed
- Voorzieningen
- Rookkanaal, Dakraam, Glasvezel kabel
- Energieklasse
- C
- Soort dak
- Samengesteld dak
- Parkeer faciliteiten
- Betaald parkeren, Parkeervergunningen
- Schuur/bergruimte
- 1
- Woning type
- Woonhuis
















































