Leidsevaart 64RD, Haarlem
VerkochtBeschrijving
PUUR* wonen in aan de rand van het Centrum met prachtig zicht over het water van de Leidsevaart, dit riante bovenhuis met 3 ruime slaapkamers en 2 badkamers en terras op het westen is erg licht door de hoekligging en de grote ramen. De sfeervolle details, de ruime opzet en de ligging nabij het centrum maken het een fijne plek om te wonen. Kom kijken en laat je verrassen!
Goed om te weten:
* In 2020 grotendeels gerenoveerd.
* Eikenhouten visgraat vloer door gehele woning (vloerverwarming eerste verdieping)
* Prachtig zicht over het water
* Fundering op staal
* Een royale en lichte woonkamer met hoge plafonds en grote ramen
* Een moderne open keuken, perfect voor gezellige diners
* 3 goede slaapkamers
* 2 badkamers
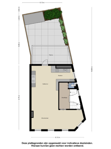
* Een zonnig terras op het westen
* Parkeervergunning direct meerdere verkrijgbaar
* Een eigen opgang met ruimte voor stallen fiets
Locatie:
Gelegen op loopafstand van het bruisende centrum van Haarlem, NS-station, winkels, koffietentjes en het prachtige stadsbos de Haarlemmerhout. Ook het strand en de duinen zijn per fiets of openbaar vervoer snel bereikbaar. Via de Prins Hendrikbrug stap je zo de gezellige Vijfhoek in en ben je zo op de Botermarkt.
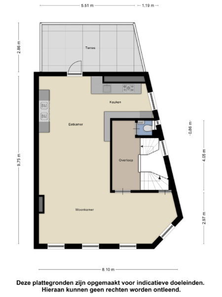
Indeling:
Parterre: ruime entree met ruimte voor een fiets meterkast en bergruimte onder de trap
Eerste verdieping: prachtige eiken visgraat vloer met vloerverwarming op de gehele verdieping en prachtig hoog plafond.
Ruime overloop met veel licht door raam, toilet met fontein, woonkamer met schouw, 4 ramen en een breedte van 8 meter aan voorzijde met zicht over het water, aan de achterzijde een mooi formaat leefkeuken met moderne keuken met diverse inbouwapparatuur en met toegang naar het terras (gerenoveerd in 2020) op het westen.
Tweede verdieping:
Ruime overloop, slaapkamer aan voorzijde met vaste kast en zicht op de vaart, tweede slaapkamer aan voorzijde met vaste kast en prachtig zicht over het water, tussenhal met vaste kast voorzien van wasmachine aansluiting, deur naar slaapkamer achterzijde met badkamer en-suite met douche en wastafel, riante en lichte badkamer aan achterzijde met ligbad, wastafelmeubel, douche en toilet.
Via luik toegang tot bergvliering
*ENGLISH BELOW*
PUUR* living on the edge of the city centre with beautiful views over the water of the Leidsevaart canal. This spacious upper floor apartment with 3 large bedrooms, 2 bathrooms and a west-facing terrace is very light thanks to its corner location and large windows. The attractive details, spacious layout and location near the city centre make it a great place to live. Come and see for yourself!
Good to know:
* Largely renovated in 2020.
* Oak herringbone flooring throughout the house (underfloor heating on the first floor)
* Beautiful view over the water
* Steel foundation
* A spacious and bright living room with high ceilings and large windows
* A modern open kitchen, perfect for cosy dinners
* 3 good bedrooms
* 2 bathrooms
* A sunny west-facing terrace
* Several parking permits available immediately
* Private entrance with space for bicycle storage
Location:
Located within walking distance of the bustling centre of Haarlem, railway station, shops, coffee bars and the beautiful Haarlemmerhout city forest. The beach and dunes are also easily accessible by bicycle or public transport. Via the Prins Hendrikbrug, you can step right into the lively Vijfhoek neighbourhood and in a second you are at the Botermarkt.
Layout:
Ground floor: spacious entrance hall with space for a bicycle, meter cupboard and storage space under the stairs.
First floor: beautiful oak herringbone flooring with underfloor heating throughout and beautiful high ceilings.
Spacious landing with lots of light through the window, toilet with washbasin, living room with fireplace, 4 windows and a width of 8 metres at the front with a view over the water, at the rear a nice-sized kitchen with modern kitchen with various built-in appliances and access to the west-facing terrace (renovated in 2020).
Second floor:
Spacious landing, bedroom at the front with built-in wardrobe and view of the canal, second bedroom at the front with built-in wardrobe and beautiful view over the water, hallway with built-in wardrobe with washing machine connection, door to rear bedroom with en-suite bathroom with shower and washbasin, spacious and bright bathroom at the rear with bath, washbasin, shower and toilet.
Access to storage loft via hatch
Algemeen
- Plaats
- Haarlem
- Status
- Verkocht
- Buurt
- Geschiedschrijversbuurt
- Aantal kamers
- 4
- Aantal slaapkamers
- 3
- Aantal badkamers
- 2
- Woonoppervlakte
- 137 m2
- Ligging
- In centrum, In woonwijk, Vrij uitzicht, Aan vaarwater
- Bouwjaar
- 1928
- Isolatie
- Dakisolatie, Vloerisolatie
- Type verwarming
- CV ketel, Vloerverwarming gedeeltelijk
- Onderhoud buiten
- Goed tot uitstekend
- Onderhoud binnen
- Uitstekend
- Voorzieningen
- Mechanische ventilatie, TV kabel, Glasvezel kabel, Natuurlijke ventilatie
- Energieklasse
- D
- Soort dak
- Plat dak
- Parkeer faciliteiten
- Betaald parkeren, Parkeervergunningen
- Woning type
- Appartement


















































