Lieven de Keylaan 18, Heemstede
VerkochtBeschrijving
Deze vrijstaande woning met zonnige tuin, oprit en garage staat midden in een gewilde woonomgeving. Het huis is ideaal voor gezinnen die ruimte zoeken en hun eigen woonwensen willen realiseren. In ca. 1931 is de woning gebouwd en later uitgebouwd waardoor er op de parterre een heerlijke leefruimte is gerealiseerd. Hoewel het huis door de jaren heen netjes onderhouden is, biedt het volop mogelijkheden om het helemaal naar je eigen smaak en wensen te moderniseren.
Op de parterre vind je een zeer ruime, uitgebouwde woonkamer en een eetkeuken. De 1e verdieping is voorzien van 3 slaapkamers en een badkamer. Op de 2e verdieping zijn 2 slaapkamers en een stook-/wasruimte. De zonnige tuin is gelegen op het oosten en heeft een extra brede maatvoering. Aan de voorzijde vind je een zonnige voortuin op het westen, een oprit en een aangebouwde stenen garage.
De ligging is echt perfect. Deze gezinsvilla ligt in een rustige laan maar zodra je de hoek omloopt, loop je direct de winkelstraten in waar je uitstekend terecht kunt voor je dagelijkse boodschappen, diverse boetieks vindt, lekker kan eten in één van de vele eetgelegenheden of de wekelijkse markt kan bezoeken. Met enkele minuten ben je in het Groenendaalse bos, lig je in het overdekte zwembad of sta je op één van de vele sportvelden. Ook diverse natuurgebieden en het strand van Zandvoort en Bloemendaal, scholen, het stadshart van Haarlem (op de fiets ca. 15 min.), het NS-Station en uitvalswegen (met de auto met ca. 20 min. in het bruisende Amsterdam) liggen dichtbij.
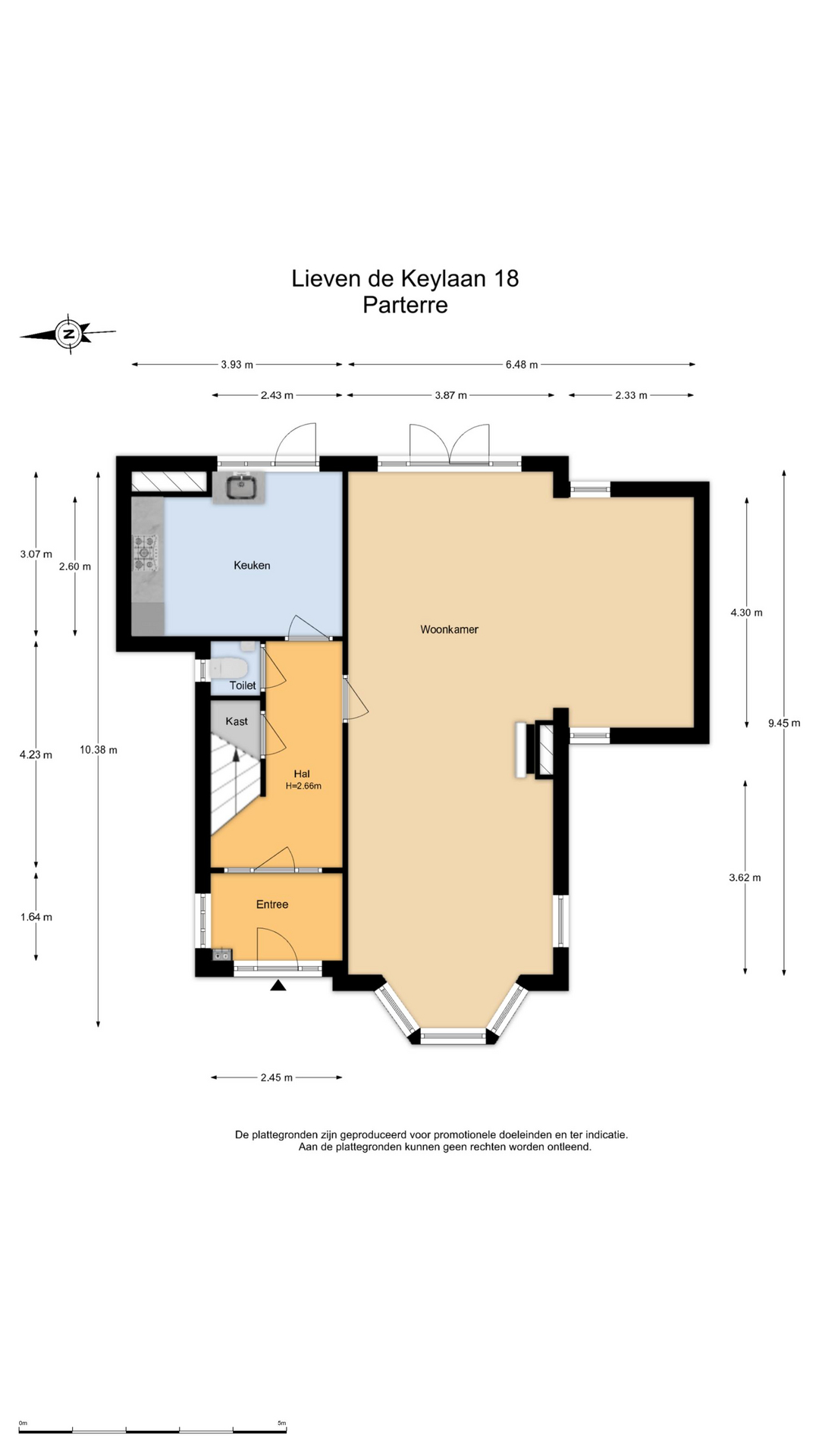
Indeling:
Parterre: entree met halfronde voordeur, vestibule met extra zijraam en glas-in-lood, hal met kelderkast en toilet met fontein, uitgebouwde woonkamer voorzien van erker met glas-in-lood, natuurstenen schouw met open haard, houten vloer, veel raampartijen en openslaande deuren naar tuin, nette gemoderniseerde eetkeuken met diverse inbouwapparatuur en deur naar tuin, via hal trap naar….
1e Verdieping: overloop met glas-in-lood raam en gemoderniseerd toilet, zijkamer aan voorzijde met inbouwkast, slaapkamer aan voorzijde met inbouwkast, extra zijraam en openslaande deuren naar balkon, slaapkamer aan achterzijde met inbouwkasten en extra zijraam, moderne, nette badkamer voorzien van inloopdouche, wastafel en vloerverwarming, via overloop trap naar….
2e Verdieping: overloop met bergruimte, cv-ketel en wasmachine aansluiting, twee slaapkamers voorzien van dakkapel en bergruimte
Bijzonderheden:
* Woonoppervlakte ca. 164 m2, inhoud ca. 628 m3 en 340 m2 eigen grond
* Ruime kamers
* Parterre voorzien van aanbouw
* Zonnige, brede tuin
* Stenen garage en oprit
* Voor indeling en maatvoering zie plattegronden
* Oplevering in overleg
Algemeen
- Plaats
- Heemstede
- Status
- Verkocht
- Buurt
- Centrum
- Aantal kamers
- 6
- Aantal slaapkamers
- 5
- Aantal badkamers
- 1
- Woonoppervlakte
- 164 m2
- Perceel oppervlakte
- 340 m2
- Ligging
- Aan rustige weg, In woonwijk
- Bouwjaar
- 1931
- Isolatie
- Gedeeltelijk dubbelglas, Voorzetramen
- Type verwarming
- CV ketel, Open haard, Vloerverwarming gedeeltelijk
- Onderhoud buiten
- Goed
- Onderhoud binnen
- Redelijk tot goed
- Voorzieningen
- TV kabel, Rookkanaal
- Energieklasse
- E
- Soort dak
- Zadeldak
- Parkeer faciliteiten
- Openbaar parkeren, Op eigen terrein
- Woning type
- Woonhuis











































