Maasstraat 92-3, Amsterdam
BeschikbaarPrijs: € 1.300.000,-
Beschrijving
PUUR* wonen in de geliefde Rivierenbuurt waar licht, karakter en comfort samenkomen in een unieke bovenwoning aan de Maasstraat.
Aan de Maasstraat ligt deze royale en karaktervolle bovenwoning, verdeeld over de gehele derde en volledige kapverdieping, van 167 m² met een zonnig terras van 26 m². De woning kenmerkt zich door een speelse indeling, een prachtige lichtinval dankzij de hoekligging én maar liefst vier grote raampartijen in de woonkamer, en een hoogwaardig afwerkingsniveau met moderne voorzieningen.
Grote raampartijen, de hoge plafonds (2,7 meter) stijlvolle afwerkingen en een praktische indeling zorgen voor een perfecte balans tussen comfort en karakter. De combinatie van een lichte woonkamer, open keuken, drie slaapkamers, veel bergruimte én een royaal terras maakt dit een ideaal familiehuis in de stad. Bovendien is de woning volledig instapklaar, met onder andere een nieuwe PVC vloer (2024), badkamers (2020), maatwerk inbouwkasten (2021–2024) en raambekleding (2024).
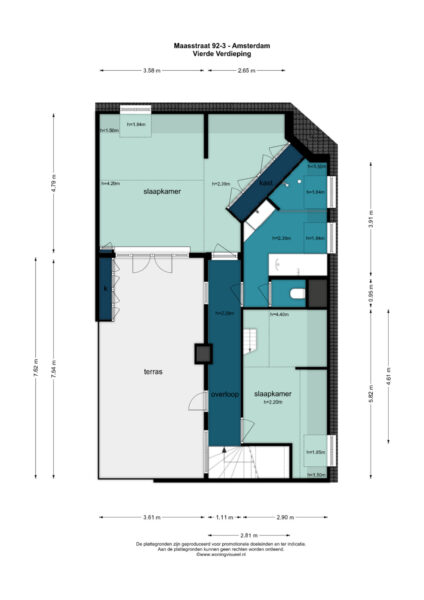
INDELING:
Entree op de tweede verdieping:
Je komt binnen in een verzorgde hal met voldoende ruimte voor een garderobe en het netjes opbergen van schoenen. Tevens is hier plek voor bijvoorbeeld een kinderwagen. Vanuit deze hal leidt een interne trap naar de leefverdieping.
Woonkamer verdieping:
Via de trap bereik je de woonverdieping, waar de verschillende ruimtes middels ensuite deuren in verbinding staan met de hal en de woonkamer. De zeer ruime woonkamer van ruim 7 meter breed en 11 meter diep, is bijzonder licht dankzij de hoekligging en wordt gekenmerkt door maar liefst vier grote raampartijen, die zorgen voor een prachtige en continue lichtinval gedurende de dag.
Aansluitend bevindt zich de eetkamer en de open keuken met kookeiland. Dit kookeiland fungeert niet alleen als centrale plek om te koken, maar leent zich ook uitstekend als bar om aan te zitten. De keuken is modern uitgevoerd, voorzien van een Quooker en alle benodigde inbouwapparatuur, en biedt daarnaast ruimte voor een wijnkoelkast; een mooie toevoeging voor liefhebbers. Vanuit de keuken heb je een prachtig uitzicht over de Maasstraat en de groene veldjes, wat zorgt voor een fijne en open sfeer met veel natuurlijk licht.
Via de hal bereik je een multifunctionele werk-/kinder-/logeerkamer (thans in gebruik als derde slaapkamer). Deze kamer beschikt over veel op maat gemaakte inbouwkasten, biedt volop bergruimte en heeft een aansluiting voor de wasmachine. Daarnaast is de kamer voorzien van een eigen badkamer met regendouche en fontein, wat deze ruimte ideaal maakt voor gasten, een au pair of als luxe werkruimte.
In de hal bevindt zich tevens een separate toiletruimte en een praktische kapstokruimte, waarbij de CV-installatie netjes is weggewerkt achter schuifdeuren.
Tweede verdieping:
Op deze verdieping bevinden zich de overige slaapkamers en de badkamer. Aan de rechterzijde ligt een slaapkamer met een praktische vliering van ca. 2 m², gelegen in de nok van het dak en bereikbaar via een houten trap.
Naast deze kamer ligt de moderne badkamer, die licht en ruim is opgezet en beschikt over een ligbad, een wastafelmeubel en een separate inloopdouche met regendouche.
Aan het einde van de overloop bevindt zich de royale master bedroom. Deze bijzondere ruimte kenmerkt zich door een indrukwekkende nokhoogte van meer dan 4 meter, wat zorgt voor een extra ruimtelijk gevoel. De kamer beschikt over een grote ingebouwde kledingkast en openslaande deuren naar het terras.
Zolder:
De ruime zolder biedt veel extra bergruimte en is multifunctioneel inzetbaar. Dankzij het feit dat de PVC vloer (2024) hier is doorgelegd, vormt deze verdieping een volwaardig onderdeel van de woning. Met het plaatsen van een dakkapel en een relatief kleine ingreep kan hier eenvoudig een extra slaapkamer worden gerealiseerd.
Terras:
Vanuit zowel de overloop als de master bedroom is het ruime en zonnige terras te betreden. Het terras is ca. 26 m² groot en biedt veel privacy. Door de gunstige ligging geniet je hier volop van de zon (van ca. 11:00 tot 19:00), terwijl er ook altijd een plek met schaduw te vinden is. Bovendien kun je hier beschut uit de wind zitten, wat dit terras extra comfortabel maakt ten opzichte van dakterrassen die direct ‘op het dak’ zijn gelegen.
Comfort en onderhoud:
De woning is voorzien van zowel dubbel glas als triple glas, wat zorgt voor extra comfort en uitstekende isolatie. Energielabel B. Daarnaast maakt de woning onderdeel uit van een zeer gezonde en actieve VvE, waarbij het onderhoud op hoog niveau wordt bijgehouden. Zo is het buitenschilderwerk in 2022 volledig uitgevoerd en is het dak aan de achterzijde in 2024 geheel vernieuwd.
Erfpacht: De woning is gelegen op erfpacht uitgegeven door de gemeente Amsterdam. De erfpacht bedraagt € 1.659,50 per jaar tot 15 september 2054. Verkopers hebben onder de gunstige condities een aanvraag ingediend welke aan kopers kan worden over gedragen. De eeuwige erfpacht is voor een bedrag van ongeveer €50.000,- af te kopen.
OMGEVING EN BEREIKBAARHEID:
De woning is gelegen aan de Maasstraat in de geliefde Rivierenbuurt, een rustige maar levendige wijk in Amsterdam-Zuid. De Maasstraat staat bekend als één van de meest populaire en bruisende straten van de buurt, met een breed aanbod aan gezellige horecagelegenheden, koffietentjes en diverse winkels voor de dagelijkse boodschappen.
De ligging is bijzonder centraal: nabij de A10 en A2, en op korte afstand van Station Zuid, Station Amstel en de Noord/Zuidlijn. Dit maakt de bereikbaarheid zowel met de auto als het openbaar vervoer uitstekend. Ook met de fiets ben je binnen enkele minuten in De Pijp, het centrum of de Zuidas.
De buurt kenmerkt zich door haar brede straten, veel groen en een prettige woonomgeving met alle voorzieningen binnen handbereik.
BIJZONDERHEDEN:
* Gelegen op een toplocatie in de Rivierenbuurt
* Woonoppervlakte ca. 167 m²
* Royaal terras van ca. 26 m² met veel zon en privacy
* Prachtige lichtinval door hoekligging en vier grote raampartijen
* Veel bergruimte door drie grote maatwerkkasten en ruime zolder
* Zolder multifunctioneel en potentie voor extra slaapkamer
* Open keuken met Quooker, inbouwapparatuur en ruimte voor wijnkoelkast
* Drie slaapkamers, waarvan één met eigen badkamer
* Moderne badkamers (2020)
* Master bedroom met hoge nok (ca. 4 meter), ingebouwde kast en terrasdeuren
* Instapklaar met o.a. PVC vloer (2024) en raambekleding (2024)
* Energielabel B; voorzien van dubbel en triple glas
* Zeer gezonde en actieve VvE; Buitenschilderwerk uitgevoerd in 2022
* Dak achterzijde vernieuwd in 2024
* Erfpacht: keuze voor gunstige afkoop of vastklikken
* Maandelijkse servicekosten: € 542,-
* Oplevering in overleg
***ENGLISH***
PUUR* living in the highly sought-after Rivierenbuurt, where light, character, and comfort come together in a unique upper-level apartment on Maasstraat.
Situated on Maasstraat, this spacious and characterful upper-level apartment spans the entire third floor and full attic level, offering 167 m² of living space and a sunny 26 m² terrace. The property features a playful layout, beautiful natural light thanks to its corner position, and no fewer than four large windows in the living room. The high-quality finish and modern amenities complete the picture.
Large windows, high ceilings (2.7 meters), stylish finishes, and a practical layout create the perfect balance between comfort and character. The combination of a bright living room, open kitchen, three bedrooms, ample storage space, and a generous terrace makes this an ideal family home in the city. Moreover, the property is completely move-in ready, featuring, among other things, a new PVC floor (2024), bathrooms (2020), custom-built wardrobes (2021–2024), and window coverings (2024).
LAYOUT:
Entrance on the second floor:
You enter into a well-maintained hallway with ample space for a wardrobe and neatly storing shoes. There is also room for, for example, a stroller. From here, an internal staircase leads to the main living floor.
Living floor:
Via the staircase, you reach the living level, where the various rooms are connected through ensuite doors to the hallway and living room. The exceptionally spacious living room – over 7 meters wide and 11 meters deep – is filled with natural light thanks to its corner position and features four large windows that provide beautiful, continuous daylight throughout the day.
Adjacent is the dining area and open-plan kitchen with a cooking island. This island serves not only as a central place to cook but also as a perfect bar-style seating area. The modern kitchen is equipped with a Quooker, all necessary built-in appliances, and space for a wine fridge – ideal for enthusiasts. From the kitchen, you enjoy a pleasant view over Maasstraat and the green surroundings, enhancing the bright and open atmosphere.
From the hallway, you access a multifunctional room suitable as a study, children’s room, or guest room (currently used as a third bedroom). This room features extensive custom-built wardrobes, plenty of storage space, and a connection for a washing machine. It also includes a private bathroom with a rain shower and sink, making it ideal for guests, an au pair, or as a luxurious home office.
The hallway also provides access to a separate toilet and a practical coat area, with the central heating system neatly concealed behind sliding doors.
Second floor:
This level houses the remaining bedrooms and the main bathroom. On the right-hand side is a bedroom with a practical mezzanine storage loft of approximately 2 m², located at the ridge of the roof and accessible via a wooden staircase.
Next to this room is the modern bathroom, which is bright and spacious, featuring a bathtub, vanity unit, and a separate walk-in shower with rain shower.
At the end of the landing is the generous master bedroom. This striking space features an impressive ceiling height of over 4 meters, creating a wonderful sense of openness. The room includes a large built-in wardrobe and French doors leading to the terrace.
Attic:
The spacious attic offers extensive additional storage and is multifunctional in use. As the PVC flooring (2024) continues into this space, it forms a fully integrated part of the home. By adding a dormer and with a relatively minor intervention, an additional bedroom can easily be created here.
Terrace:
The large and sunny terrace is accessible from both the landing and the master bedroom. Measuring approximately 26 m², it offers plenty of privacy. Thanks to its favorable orientation, you can enjoy the sun from around 11:00 to 19:00, while always having the option of shade. Additionally, the terrace is well sheltered from the wind, making it more comfortable than many rooftop terraces that are directly exposed.
COMFORT AND MAINTENANCE:
The property is fitted with both double and triple glazing, ensuring excellent insulation and comfort. Energy label B. The apartment is part of a very healthy and active homeowners’ association (VvE), with maintenance kept at a high standard. Exterior painting was completed in 2022, and the rear roof was fully renewed in 2024.
Leasehold:
The property is situated on leasehold land issued by the Municipality of Amsterdam. The annual ground rent amounts to €1,659.50 until 15 September 2054. The sellers have applied under favorable conditions, which can be transferred to the buyers. The perpetual leasehold can be bought off for approximately €50,000.
LOCATION AND ACCESSIBILITY:
The property is located on Maasstraat in the highly desirable Rivierenbuurt, a ???? yet vibrant neighborhood in Amsterdam South. Maasstraat is known as one of the most popular and lively streets in the area, offering a wide range of cozy cafés, restaurants, and shops for daily groceries.
The location is highly central: close to the A10 and A2 motorways, and within short distance of Station Zuid, Station Amstel, and the North/South metro line. Accessibility by both car and public transport is excellent. By bike, you can reach De Pijp, the city center, or the Zuidas within minutes.
The neighborhood is characterized by wide streets, abundant greenery, and a pleasant residential atmosphere with all amenities within easy reach.
HIGHLIGHTES:
* Prime location in Rivierenbuurt
* Living area approx. 167 m²
* Spacious terrace of approx. 26 m² with sun and privacy
* Exceptional natural light due to corner position and four large windows
* Ample storage with three custom-built wardrobes and large attic
* Attic with potential for additional bedroom
* Open kitchen with Quooker, built-in appliances, and space for wine fridge
* Three bedrooms, one with en-suite bathroom
* Modern bathrooms (2020)
* Master bedroom with high ceiling (approx. 4 m), built-in wardrobe, and terrace access
* Move-in ready, including PVC flooring (2024) and window coverings (2024)
* Energy label B; double and triple glazing
* Healthy and active homeowners’ association; exterior painting completed in 2022
* Rear roof renewed in 2024
* Leasehold with option for favorable buy-off or fixation
* Monthly service charges: €542
* Transfer in consultation
Kenmerken
- Koopprijs
- € 1.300.000,-
- Plaats
- Amsterdam
- Status
- Beschikbaar
- Buurt
- Scheldebuurt West
- Aantal kamers
- 5
- Aantal slaapkamers
- 3
- Aantal badkamers
- 2
- Woonoppervlakte
- 167 m2
- Ligging
- In woonwijk
- Bouwjaar
- 1930
- Isolatie
- Dakisolatie, Muurisolatie, HR glas
- Type verwarming
- CV ketel
- Onderhoud buiten
- Goed
- Onderhoud binnen
- Goed
- Voorzieningen
- Mechanische ventilatie, TV kabel, Dakraam, Natuurlijke ventilatie
- Energieklasse
- B
- Soort dak
- Plat dak
- Parkeer faciliteiten
- Betaald parkeren, Parkeervergunningen
- Schuur/bergruimte
- 1
- Woning type
- Appartement
Plattegronden
Uitzicht op straat
Zoek de locatie
kom jij kijken?
Een bezoek vertelt het meest. Onze makelaars nemen graag de tijd voor een rustige rondleiding.
Contacteer ons nu














































