Molenwerf 2, Spaarndam
VerkochtBeschrijving
PUUR* woongeluk met prachtig uitzicht over het water. Dat is wat je bij deze goed onderhouden en energiezuinige (energielabel A) vrijstaande watervilla ervaart. In 2018 is op een van de mooiste plekken van de regio dit prachtige huis met eigen ligplaats, garage en 2 eigen parkeerplaatsen gerealiseerd. Dit ruim opgezette huis beschikt naast een moderne keuken over een ruime woonkamer met zicht over het Spaarne, 4 goed formaat slaapkamers en 2 badkamers. Kom kijken en laat je verrassen door het prachtige uitzicht en de mooie zonsondergang.
Goed om te weten:
* Uniek uitzicht over het water
* Eigen ligplaats voor de deur
* Ruime woning met goede tuin op het zuiden
* Woonoppervlak ca. 189 m2 (zie meetrapport)
* Goed onderhouden en zo te betrekken
* Volledige voorzien van vloerverwarming
* Volledig gestuct
* Extra hoge binnendeuren van vloer tot aan plafond
* Vier ruime slaapkamers en 2 badkamers
* Moderne keuken met inbouwapparatuur
* Energielabel A
* parkeren voor twee auto’s op eigen terrein
* ruime garage
* Aanvaarding in overleg
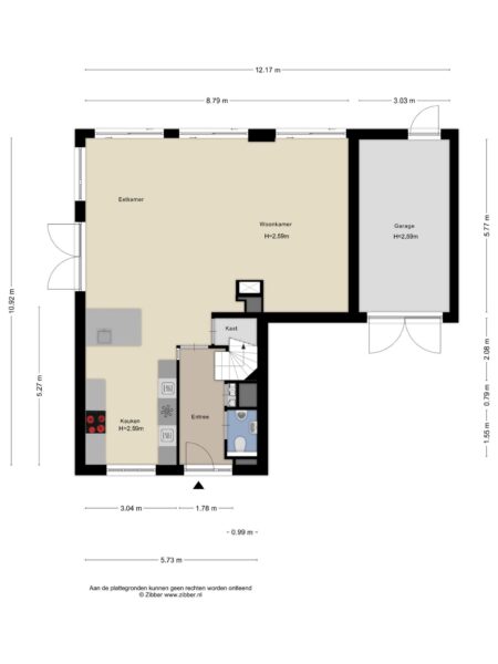
Begane grond: voortuin, oprit voor 2 auto’s, garage, voordeur, ruime hal, toilet met fontein, meterkast glazen deur naar woonkamer met haard en grote glazen puien die prachtig zicht over het Spaarne geven, schuifdeuren en openslaande deuren naar het terras op het westen en naar de tuin op het zuiden, open keuken met schiereiland met diverse inbouwapparatuur o.a. quooker en stoomoven.
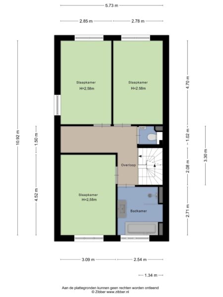
1e etage: overloop met kastenwand, separaat toilet, badkamer aan voorzijde met bad, douche en wastafel, slaapkamer aan voorzijde, 2 slaapkamers aan achterzijde beide met zicht over het water.
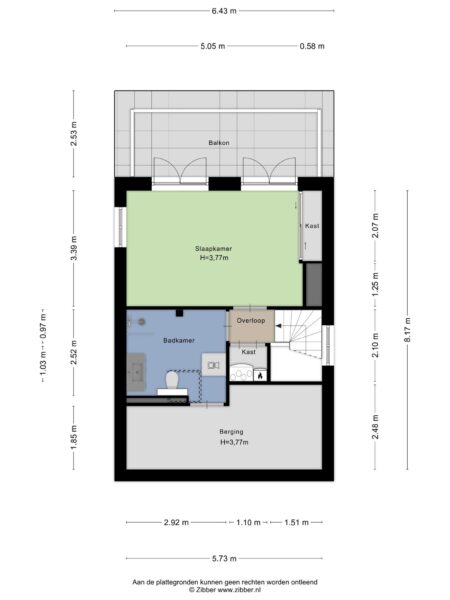
2e etage: overloop met kast voor hybride warmtepomp, badkamer met, aansluitingen wasmachine en droger, inloopdouche, wastafel en wc. Grote slaapkamer over de gehele breedte met vaste kastenwand en 2x dubbele deuren naar riant terras met pracht uitzicht over het water en de ondergaande zon.
*ENGLISH TEXT*
PUUR* living happiness with beautiful views over the water. That is what you experience at this well maintained and energy efficient (energy label A) detached water villa. In 2018, on one of the most beautiful places in the region, this beautiful house with private mooring, garage and 2 private parking spaces was realized. In addition to a modern kitchen, this spacious house features a spacious living room with a view over the Spaarne, 4 good-sized bedrooms and 2 bathrooms. Come take a look and be surprised by the beautiful view and sunset.
Good to know:
* Unique view over the water
* Own mooring in front of the door
* Spacious house with good garden facing south
* Living area approx 189 m2 (see measurement report)
* Well maintained and ready to move in
* Fully equipped with underfloor heating
* Fully plastered
* Extra high interior doors from floor to ceiling
* Four spacious bedrooms and 2 bathrooms
* Modern kitchen with appliances
* Energy label A
* Parking for two cars on private property
* Spacious garage
* Acceptance in consultation
First floor: front garden, driveway for 2 cars, garage, front door, spacious hall, toilet with fountain, cupboard glass door to living room with fireplace and large glass doors that give beautiful views over the Spaarne, sliding doors and patio doors to the terrace on the west and to the garden on the south, open kitchen with peninsula with various appliances including quooker and steam oven.
1st floor: landing with closet, separate toilet, bathroom at the front with bath, shower and sink, bedroom at the front, 2 bedrooms at the rear both with view over the water.
2nd floor: landing with closet for hybrid heat pump, bathroom with, connections for washer and dryer, walk-in shower, sink and toilet.
Algemeen
- Plaats
- Spaarndam
- Status
- Verkocht
- Buurt
- Spaarndam (gedeeltelijk)
- Aantal kamers
- 5
- Aantal slaapkamers
- 4
- Aantal badkamers
- 2
- Woonoppervlakte
- 189 m2
- Perceel oppervlakte
- 262 m2
- Ligging
- In woonwijk, Vrij uitzicht, Aan vaarwater
- Bouwjaar
- 2018
- Isolatie
- Dakisolatie, Muurisolatie, Vloerisolatie, HR glas
- Type verwarming
- CV ketel, Vloerverwarming geheel, Warmtepomp, Houtkachel
- Onderhoud buiten
- Uitstekend
- Onderhoud binnen
- Uitstekend
- Voorzieningen
- Mechanische ventilatie, Rolluiken, TV kabel, Buitenzonwering
- Energieklasse
- A
- Soort dak
- Lessenaardak
- Parkeer faciliteiten
- Openbaar parkeren, Op eigen terrein
- Woning type
- Woonhuis

























































